420,000,000 Ft
1,100,000 €
- 347m²
- 6 Rooms
Privát telken mediterrán hangulatot idéző családi fészek
Magával ragadó privát ház zöldövezetben, ahol a kényelem és az elvonulás lehetősége találkozik. Ha kompromisszummentes otthont keres, olvasson tovább, megtalálta. Üdv itthon!
RÖVID ÖSSZEFOGLALÓ
Egy lenyűgöző 5 hálószobás családi ház a III. kerület kedvelt részén, Testvérhegyen, a Jablonka úton.
Az 1440 m²-es nyeles telken 2002-ben épült, 347 m²-alapterületű, 3 szintes épület DK-i tájolásának köszönhetően egész nap természetes fényben úszik. A modern kialakítás és az időtálló anyagok biztosítják, hogy ez az otthon a mai kor elvárásainak is tökéletesen megfeleljen. A tágas garázs 3 autó számára biztosít helyet, továbbá az ingatlan szaunával, karbantartott nagyméretű kerttel is rendelkezik, így garantált a pihenés és a kikapcsolódás.
A HÁZ RÉSZLETEI
• 5 hálószoba
• 2 fürdőszoba + 1 különálló WC
• 3 állásos garázs
• Szauna, jövőben kiállítható wellness részleggel
• 3 szint, összesen 347 m² alapterülettel
• Nyeles telek, 1440 m²-es zöldterület
ÉPÜLET
Letisztult vonalak és geometrikus formák jellemzik. A nagy ablakok és a fa-üveg kombinációk hangsúlyozzák a természetközeliséget és a fény szerepét. Az épület struktúrája visszafogott, de mégis van benne egyfajta játékosság a kék korlátokkal és a szögletes, letisztult kialakítással. Ez a stílus tökéletesen illik egy exkluzív, zöldövezeti környezethez, ahol a természet és a modern kényelem harmonikusan kapcsolódik össze.
KERT
Gyönyörűen parkosított, gondosan ápolt és karbantartott kert. Örökzöld bokrokkal és fákkal szegélyezett. Maga a megérkezés egy igazi élmény, hosszú, de megfelelően széles nyélen keresztül tudjuk megközelíteni a házat. Egy három állásos garázsban parkolhatja le szeretett autóit. Előtte egy nagyon ötletes "mini körforgalom" lett kiépítve, ami stílusos előteret biztosít az ingatlanhoz. A kert körben gyönyörű örökzöld bokrokkal és fákkal szegélyezett, teljesen privát a szomszédok felől. Az utcai árgus szemek elöl teljesen "rejtőzködő" elhelyezkedésű telek.
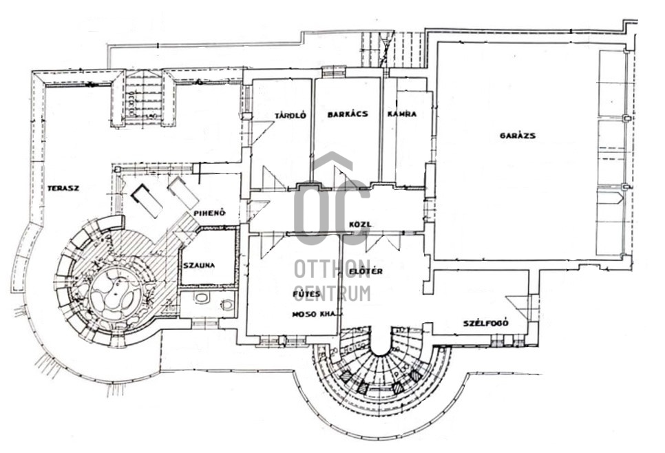
GARÁZSSZINT
Három autót parkoltathat a fűtött garázsban. Ezen a szinten került elhelyezésre a gépészeti helység, tároló, mosókonyha, illetve egy kialakított pihenő rész, ami az elvonulás, feltöltődés helye lehet, ahol lehet szaunázni, kialakítható wellnessrészleg is. A tervező gondos figyelmet fordított arra, hogy ne kerüljön a kiszolgáló rész a föld alá, így itt is szabadon áramolhat a fény. Belső grandiózus lépcsőházból lehet felmenni a következő szintre, ahol a hatalmas üvegfelületek végig kísérik a lépteinket.
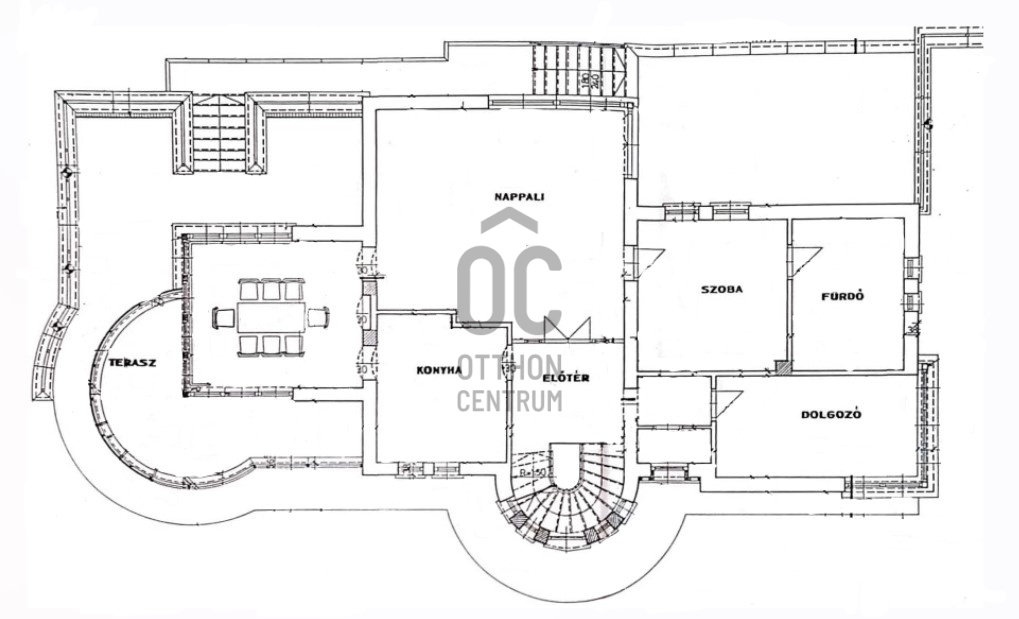
FÖLDSZINT
Egy építészeti remekmű, belűről több játékos elem is visszaköszön, hogy az átlagos hétköznapokat is feldobja, mint például a : A félkör alakú konyha, látszódó fagerendázat, elszeparált terek, amik tökéletes méretűek, de igény szerint egy hatalmas Amerikai konyhás-nappalit lehet belőle varázsolni minimális felújítási koncepcióval. Jól kitalált térelrendezés, amiből már levonhatták azt a következtetést, hogy ez szívvel lélekkel megálmodott családi ház, ami magán célra épült, ügyelve a jó minőségre és az időtálló anyagokra.
A nagyméretű üveg ajtókon keresztül a pompás zöld kertünkbe rögtön kilátást nyerünk, nem tudjuk sem a rohangáló kutyust sem a gyerekeket szem elől veszteni.
Jelenleg a Konyha-Étkező-Nappali le van választva egymástól, de igény szerint könnyen egy légterűvé lehet varázsolni.
EMELET
Az egész család elfér majd itt. Három nagyméretű hálószobával, plusz egy külön gardrób helyiséggel. Itt az összes szoba élhető méretű, nem kell semelyik családtagnak sem kompromisszumukat kötnie. Ugyan tetőtér, de kialakításának köszönhetően kényelmes és teljes értékű szobák kaptak helyet. Az ablakokból gyönyörű kilátás nyílik a Pilisi hegyek vonulataira.
KINEK AJÁNLJUK?
Ez az ingatlan ideális nagyobb családok számára, akik tágas és komfortos életteret keresnek a főváros egyik legkívánatosabb részén. Tökéletes választás azoknak, akik értékelik a visszafogott, de a mindig divatos formákat, ahol megtalálják a privát szférát és a magas színvonalú kivitelezést.
TESTVÉRHEGY
A Jablonka utca III. kerület csendes, Testvérhegy csendes, zöldövezeti részén található, mégis könnyen elérhetőek a város fontosabb pontjai. Kiváló választás azoknak, akik természetközeli, nyugodt életre vágynak anélkül, hogy lemondanának a modern kényelemről. A környék legfőbb tudnivalói:
- kiváló túrázási lehetőségek a természet kedvelőinek
- elsősorban autós megközelítés, tömegközlekedés busszal
- legközelebbi bevásárló központ - Eurocenter
- infrastrukturálisan jól ellátott - Tesco, Lidl, benzinkutak, éttermek, beauty szalon, fodrászat, bank stb.
- egészségügyi problémával a Szent Margit kórházba érdemes menni
- számos sportolási lehetőség a közelben pl.: tenisz, foci, kosárlabda stb.
- kikapcsolódás - Hármashatár-hegy
- Buda belvárosi része könnyen és gyorsan megközelíthető gépjárművel
Itt minden eltöltött nap egy ajándék, elszigetelve az út mellől, gyönyörű örökzöld fákkal szegélyezett kertben, ahol a nyugalom és meghittség kéz a kézben jár. Friss levegő, a környezet és a hegyek biztosítják neked az oxigén dús könnyed levegőt. Jöjjön el, élje át ezt az élményt.
Várom megtisztelő hívását.
RÖVID ÖSSZEFOGLALÓ
Egy lenyűgöző 5 hálószobás családi ház a III. kerület kedvelt részén, Testvérhegyen, a Jablonka úton.
Az 1440 m²-es nyeles telken 2002-ben épült, 347 m²-alapterületű, 3 szintes épület DK-i tájolásának köszönhetően egész nap természetes fényben úszik. A modern kialakítás és az időtálló anyagok biztosítják, hogy ez az otthon a mai kor elvárásainak is tökéletesen megfeleljen. A tágas garázs 3 autó számára biztosít helyet, továbbá az ingatlan szaunával, karbantartott nagyméretű kerttel is rendelkezik, így garantált a pihenés és a kikapcsolódás.
A HÁZ RÉSZLETEI
• 5 hálószoba
• 2 fürdőszoba + 1 különálló WC
• 3 állásos garázs
• Szauna, jövőben kiállítható wellness részleggel
• 3 szint, összesen 347 m² alapterülettel
• Nyeles telek, 1440 m²-es zöldterület
ÉPÜLET
Letisztult vonalak és geometrikus formák jellemzik. A nagy ablakok és a fa-üveg kombinációk hangsúlyozzák a természetközeliséget és a fény szerepét. Az épület struktúrája visszafogott, de mégis van benne egyfajta játékosság a kék korlátokkal és a szögletes, letisztult kialakítással. Ez a stílus tökéletesen illik egy exkluzív, zöldövezeti környezethez, ahol a természet és a modern kényelem harmonikusan kapcsolódik össze.
KERT
Gyönyörűen parkosított, gondosan ápolt és karbantartott kert. Örökzöld bokrokkal és fákkal szegélyezett. Maga a megérkezés egy igazi élmény, hosszú, de megfelelően széles nyélen keresztül tudjuk megközelíteni a házat. Egy három állásos garázsban parkolhatja le szeretett autóit. Előtte egy nagyon ötletes "mini körforgalom" lett kiépítve, ami stílusos előteret biztosít az ingatlanhoz. A kert körben gyönyörű örökzöld bokrokkal és fákkal szegélyezett, teljesen privát a szomszédok felől. Az utcai árgus szemek elöl teljesen "rejtőzködő" elhelyezkedésű telek.
GARÁZSSZINT
Három autót parkoltathat a fűtött garázsban. Ezen a szinten került elhelyezésre a gépészeti helység, tároló, mosókonyha, illetve egy kialakított pihenő rész, ami az elvonulás, feltöltődés helye lehet, ahol lehet szaunázni, kialakítható wellnessrészleg is. A tervező gondos figyelmet fordított arra, hogy ne kerüljön a kiszolgáló rész a föld alá, így itt is szabadon áramolhat a fény. Belső grandiózus lépcsőházból lehet felmenni a következő szintre, ahol a hatalmas üvegfelületek végig kísérik a lépteinket.
FÖLDSZINT
Egy építészeti remekmű, belűről több játékos elem is visszaköszön, hogy az átlagos hétköznapokat is feldobja, mint például a : A félkör alakú konyha, látszódó fagerendázat, elszeparált terek, amik tökéletes méretűek, de igény szerint egy hatalmas Amerikai konyhás-nappalit lehet belőle varázsolni minimális felújítási koncepcióval. Jól kitalált térelrendezés, amiből már levonhatták azt a következtetést, hogy ez szívvel lélekkel megálmodott családi ház, ami magán célra épült, ügyelve a jó minőségre és az időtálló anyagokra.
A nagyméretű üveg ajtókon keresztül a pompás zöld kertünkbe rögtön kilátást nyerünk, nem tudjuk sem a rohangáló kutyust sem a gyerekeket szem elől veszteni.
Jelenleg a Konyha-Étkező-Nappali le van választva egymástól, de igény szerint könnyen egy légterűvé lehet varázsolni.
EMELET
Az egész család elfér majd itt. Három nagyméretű hálószobával, plusz egy külön gardrób helyiséggel. Itt az összes szoba élhető méretű, nem kell semelyik családtagnak sem kompromisszumukat kötnie. Ugyan tetőtér, de kialakításának köszönhetően kényelmes és teljes értékű szobák kaptak helyet. Az ablakokból gyönyörű kilátás nyílik a Pilisi hegyek vonulataira.
KINEK AJÁNLJUK?
Ez az ingatlan ideális nagyobb családok számára, akik tágas és komfortos életteret keresnek a főváros egyik legkívánatosabb részén. Tökéletes választás azoknak, akik értékelik a visszafogott, de a mindig divatos formákat, ahol megtalálják a privát szférát és a magas színvonalú kivitelezést.
TESTVÉRHEGY
A Jablonka utca III. kerület csendes, Testvérhegy csendes, zöldövezeti részén található, mégis könnyen elérhetőek a város fontosabb pontjai. Kiváló választás azoknak, akik természetközeli, nyugodt életre vágynak anélkül, hogy lemondanának a modern kényelemről. A környék legfőbb tudnivalói:
- kiváló túrázási lehetőségek a természet kedvelőinek
- elsősorban autós megközelítés, tömegközlekedés busszal
- legközelebbi bevásárló központ - Eurocenter
- infrastrukturálisan jól ellátott - Tesco, Lidl, benzinkutak, éttermek, beauty szalon, fodrászat, bank stb.
- egészségügyi problémával a Szent Margit kórházba érdemes menni
- számos sportolási lehetőség a közelben pl.: tenisz, foci, kosárlabda stb.
- kikapcsolódás - Hármashatár-hegy
- Buda belvárosi része könnyen és gyorsan megközelíthető gépjárművel
Itt minden eltöltött nap egy ajándék, elszigetelve az út mellől, gyönyörű örökzöld fákkal szegélyezett kertben, ahol a nyugalom és meghittség kéz a kézben jár. Friss levegő, a környezet és a hegyek biztosítják neked az oxigén dús könnyed levegőt. Jöjjön el, élje át ezt az élményt.
Várom megtisztelő hívását.
Registration Number
H490731
Property Details
Sales
for sale
Legal Status
used
Character
house
Construction Method
brick
Net Size
347 m²
Gross Size
347 m²
Plot Size
1,440 m²
Size of Terrace / Balcony
75.3 m²
Heating
Gas circulator
Ceiling Height
300 cm
Number of Levels Within the Property
3
Orientation
South-East
Condition
Good
Condition of Facade
Good
Year of Construction
2002
Number of Bathrooms
2
Garage
Included in the price
Water
Available
Gas
Available
Electricity
Available
Sewer
Available
Rooms
other
8.4 m²
entryway
11 m²
corridor
11.6 m²
utility room
14.4 m²
other room
23.2 m²
sauna
4.2 m²
toilet
2.3 m²
storage
8.7 m²
other room
9.9 m²
pantry
6.3 m²
garage
56 m²
entryway
11 m²
dining room
18.7 m²
living room
36.8 m²
bedroom
16 m²
bathroom
11.6 m²
study
14.7 m²
corridor
2.8 m²
toilet
1.8 m²
corridor
11.5 m²
bathroom
12 m²
wardrobe
4.6 m²
bedroom
10.1 m²
bedroom
14.5 m²
bedroom
11.5 m²
Ruczek János
Credit Expert