800,000,000 Ft
2,053,000 €
- 609m²
- 12 Rooms
Befektetők figyelem! Frekventált helyen kulcsrakész 5 (+2) lakásos újépítésű épület - TÁRSASHÁZ vagy IRODA is kialakítható belőle
Alakalmas székháznak, irodaháznak vagy lakás célú befektetésre.
Eladásra kínálunk egy igényesen, a legmodernebb technológiával épülő, hőszivattyús fűtés/hűtés rendszerrel ellátott, padlófűtéses, klimatizált, 5 szintes (tetőtérrel) társasház, mely irodásvá is átalakítható. Az épület földszintjén teremgarázs található, melyből közvetlenül elérhetők a külső parkolók is. A legfelső emeleten egy penthouse lakás kapott helyet.
Az épület főbb jellemzői:
Nyílászárók: Antracit színű, 3 rétegű hő- és hangszigetelő üvegezéssel ellátott ablakok és dupla elektromos garázskapu.
Hőszigetelés: 15 cm-es hőszigetelő réteg
Fűtés: Padlófűtés.
Lakások elosztása:
Földszint: Teremgarázs és külső parkolók
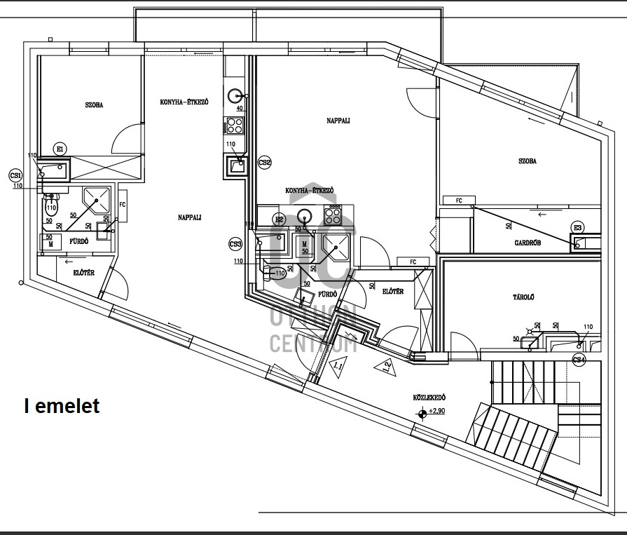
1. emelet:
1.1 lakás: 43 m² + 3,2 m² erkély
1.2 lakás: 52 m² + 5,6 m² erkély
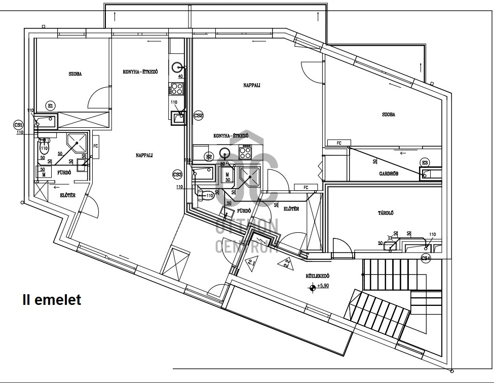
2. emelet:
2.1 lakás: 49 m² + 4,6 m² erkély + 3,2 m² erkély
2.2 lakás: 52 m² + 5,6 m² erkély + 2,8 m² erkély
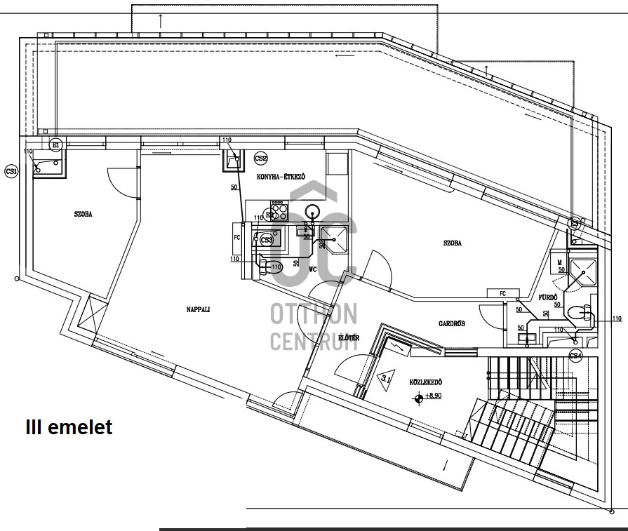
3. emelet:
Penthouse lakás: 77,2 m² + 39 m² terasz + 4,8 m² erkély, 3 hálószobával és hatalmas keleti tájolású terasszal.
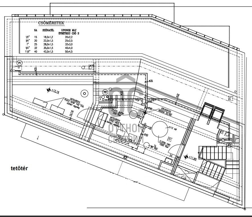
Tetőtér:
Gépészeti helyiség és tárolók kialakítása.
Várható elkészülés: 2024 nyara, ezt követően a műszaki átadás és a használatbavételi engedély megszerzése történik.
Az ár befejezett állapotra vonatkozik, belső módosítás, átalakítás még kérhető.
További információkért és részletekért kérjük, vegye fel velünk a kapcsolatot!
Eladásra kínálunk egy igényesen, a legmodernebb technológiával épülő, hőszivattyús fűtés/hűtés rendszerrel ellátott, padlófűtéses, klimatizált, 5 szintes (tetőtérrel) társasház, mely irodásvá is átalakítható. Az épület földszintjén teremgarázs található, melyből közvetlenül elérhetők a külső parkolók is. A legfelső emeleten egy penthouse lakás kapott helyet.
Az épület főbb jellemzői:
Nyílászárók: Antracit színű, 3 rétegű hő- és hangszigetelő üvegezéssel ellátott ablakok és dupla elektromos garázskapu.
Hőszigetelés: 15 cm-es hőszigetelő réteg
Fűtés: Padlófűtés.
Lakások elosztása:
Földszint: Teremgarázs és külső parkolók
1. emelet:
1.1 lakás: 43 m² + 3,2 m² erkély
1.2 lakás: 52 m² + 5,6 m² erkély
2. emelet:
2.1 lakás: 49 m² + 4,6 m² erkély + 3,2 m² erkély
2.2 lakás: 52 m² + 5,6 m² erkély + 2,8 m² erkély
3. emelet:
Penthouse lakás: 77,2 m² + 39 m² terasz + 4,8 m² erkély, 3 hálószobával és hatalmas keleti tájolású terasszal.
Tetőtér:
Gépészeti helyiség és tárolók kialakítása.
Várható elkészülés: 2024 nyara, ezt követően a műszaki átadás és a használatbavételi engedély megszerzése történik.
Az ár befejezett állapotra vonatkozik, belső módosítás, átalakítás még kérhető.
További információkért és részletekért kérjük, vegye fel velünk a kapcsolatot!
Registration Number
H485607
Property Details
Sales
for sale
Legal Status
used
Character
house
Construction Method
brick
Net Size
609 m²
Gross Size
609 m²
Plot Size
321 m²
Size of Terrace / Balcony
69 m²
Heating
heat pump
Ceiling Height
263 cm
Number of Levels Within the Property
5
Orientation
North-East
View
city view
Condition
Excellent
Condition of Facade
Excellent
Neighborhood
good transport, central
Year of Construction
2024
Number of Bathrooms
8
Garage
Included in the price
Garage Spaces
4
Water
Available
Electricity
Available
Sewer
Available
Multi-Generational
yes
Storage
Independent
Rooms
garage
111.13 m²
storage
3.61 m²
staircase
14.06 m²
entryway
3.61 m²
open-plan kitchen and living room
16.33 m²
open-plan kitchen and dining room
8.48 m²
entryway
1.8 m²
bathroom-toilet
3.8 m²
room
8.9 m²
balcony
3.19 m²
entryway
4.66 m²
bathroom-toilet
4.11 m²
open-plan kitchen and dining room
9.59 m²
storage
0.85 m²
open-plan kitchen and living room
16.39 m²
room
12.08 m²
wardrobe
3.92 m²
balcony
5.62 m²
staircase
9.19 m²
corridor
8.41 m²
storage
9.38 m²
entryway
6.02 m²
open-plan kitchen and living room
19.05 m²
open-plan kitchen and dining room
9.41 m²
entryway
1.8 m²
bathroom-toilet
3.8 m²
room
8.9 m²
balcony
4.63 m²
balcony
3.19 m²
entryway
1.66 m²
bathroom-toilet
4.11 m²
open-plan kitchen and dining room
9.59 m²
storage
0.85 m²
open-plan kitchen and living room
16.39 m²
room
12.08 m²
wardrobe
3.92 m²
balcony
5.62 m²
balcony
2.84 m²
staircase
9.19 m²
corridor
8.41 m²
storage
9.38 m²
entryway
7.36 m²
living room
20.74 m²
room
9.66 m²
open-plan kitchen and dining room
11.47 m²
toilet
3.65 m²
room
16.23 m²
wardrobe
3.64 m²
bathroom
5.15 m²
balcony
39 m²
terrace
4.63 m²
staircase
7.09 m²
corridor
4.33 m²
corridor
4.48 m²
boiler room
16.47 m²
Horváth Eleonóra
Credit Expert