272 900 000 Ft
710 000 €
- 276m²
- 4 szoba
Álmai CSALÁDIHÁZA várja Önt Rákosszentmihály csendes utcájában!
Fedezze fel ezt a kivételes lehetőséget, amely tökéletes választás lehet azok számára, akik egy tágas, kényelmes otthont keresnek Budapest 16. kerületében, Rákosszentmihály csendes és barátságos környezetében.
3 szintes ingatlan :
•Pince szint (106 nm): 45 nm-es dupla állásos garázs biciklitárolóval, beépített gardrób, és egy 37 nm-es hobbiszoba, gépészeti helyiség, WC és zuhanyzó.
•Földszint (90 nm): tágas 30 nm-es nappali, 20 nm-es konyha-étkező a hozzátartozó kamrával, vendég WC, 17 nm-es hálószoba fürdőszobával és gardróbbal.
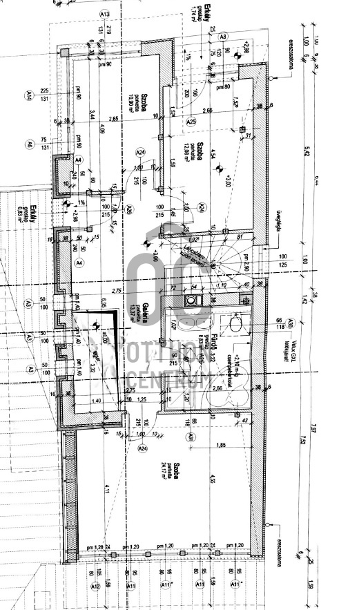
•Emeleti szint (80 nm): három hálószoba, amelyből kettő össze lett nyitva, de könnyedén visszaalakítható (12, 11 és 24 nm), valamint egy 9 nm-es fürdőszoba, 2 kisebb erkély és galéria.
- alapterülete 276 nm
- telek mérete 545 nm
- földszint 90nm, nappali, étkezős-konyha kamrával, hálószoba fürdő- és gardróbbal, vendég WC
- emelet 80 nm, 3 szoba (kettő összenyitva 12 és 11) fürdőszoba, galéria és 2 db erkély
- pince 106 nm, mely dupla beálls garászból, tároló, gardrób, hobbiszoba, gépészeti helyiség, WC és zuhanyzóból áll
- terasz 19 nm
- Enegetikai besorolása: A++
- Napelem (5 kw)
- Dupla garázs + parkolási lehetőség külön bejárati kapuval az udvarban
Így bőven elegendő helyet biztosít nagy családosok számára is. Az ingatlan kiváló állapotban miatt, ezért azonnal költözhető, így Önnek nem kell aggódnia a felújítások miatt. A két fürdőszoba kényelmet biztosít, különösen a reggeli rohanás idején, amikor fontos, hogy mindenki időben elindulhasson.
A 19 nm-es terasz, valamint a 2 nm-es erkély tökéletes helyszínt kínál a pihenésre, ahol élvezheti a szabad levegőt és a gyönyörű panorámát, amely a környéket övezi. Rákosszentmihály egy rendkívül biztonságos és csendes városrész, ahol a szomszédok barátságosak, és a közvetlen környezet kedvező az aktív, családias életvitelhez. A környék kiváló közlekedési lehetőségekkel rendelkezik, így könnyen elérheti Budapest belvárosát autóval vagy tömegközlekedéssel.
Az ingatlan nemcsak otthonául szolgálhat, hanem értékálló befektetésként is megállja a helyét, hiszen a környék folyamatosan fejlődik és bővül. Ha Ön is szeretne egy olyan ingatlanra szert tenni, amely minden szempontból megfelel az elvárásainak, ne habozzon kapcsolatba lépni velünk.
Szívesen válaszolunk kérdéseire, és segítünk Önnek abban, hogy megtalálja álmai otthonát vagy befektetési lehetőségét a hét bármely napján. A bizalom és a szakértelem a mi mottónk, és mindent megteszünk annak érdekében, hogy Ön elégedett legyen választásával.
3 szintes ingatlan :
•Pince szint (106 nm): 45 nm-es dupla állásos garázs biciklitárolóval, beépített gardrób, és egy 37 nm-es hobbiszoba, gépészeti helyiség, WC és zuhanyzó.
•Földszint (90 nm): tágas 30 nm-es nappali, 20 nm-es konyha-étkező a hozzátartozó kamrával, vendég WC, 17 nm-es hálószoba fürdőszobával és gardróbbal.
•Emeleti szint (80 nm): három hálószoba, amelyből kettő össze lett nyitva, de könnyedén visszaalakítható (12, 11 és 24 nm), valamint egy 9 nm-es fürdőszoba, 2 kisebb erkély és galéria.
- alapterülete 276 nm
- telek mérete 545 nm
- földszint 90nm, nappali, étkezős-konyha kamrával, hálószoba fürdő- és gardróbbal, vendég WC
- emelet 80 nm, 3 szoba (kettő összenyitva 12 és 11) fürdőszoba, galéria és 2 db erkély
- pince 106 nm, mely dupla beálls garászból, tároló, gardrób, hobbiszoba, gépészeti helyiség, WC és zuhanyzóból áll
- terasz 19 nm
- Enegetikai besorolása: A++
- Napelem (5 kw)
- Dupla garázs + parkolási lehetőség külön bejárati kapuval az udvarban
Így bőven elegendő helyet biztosít nagy családosok számára is. Az ingatlan kiváló állapotban miatt, ezért azonnal költözhető, így Önnek nem kell aggódnia a felújítások miatt. A két fürdőszoba kényelmet biztosít, különösen a reggeli rohanás idején, amikor fontos, hogy mindenki időben elindulhasson.
A 19 nm-es terasz, valamint a 2 nm-es erkély tökéletes helyszínt kínál a pihenésre, ahol élvezheti a szabad levegőt és a gyönyörű panorámát, amely a környéket övezi. Rákosszentmihály egy rendkívül biztonságos és csendes városrész, ahol a szomszédok barátságosak, és a közvetlen környezet kedvező az aktív, családias életvitelhez. A környék kiváló közlekedési lehetőségekkel rendelkezik, így könnyen elérheti Budapest belvárosát autóval vagy tömegközlekedéssel.
Az ingatlan nemcsak otthonául szolgálhat, hanem értékálló befektetésként is megállja a helyét, hiszen a környék folyamatosan fejlődik és bővül. Ha Ön is szeretne egy olyan ingatlanra szert tenni, amely minden szempontból megfelel az elvárásainak, ne habozzon kapcsolatba lépni velünk.
Szívesen válaszolunk kérdéseire, és segítünk Önnek abban, hogy megtalálja álmai otthonát vagy befektetési lehetőségét a hét bármely napján. A bizalom és a szakértelem a mi mottónk, és mindent megteszünk annak érdekében, hogy Ön elégedett legyen választásával.
Regisztrációs szám
H509136
Az ingatlan adatai
Értékesités
eladó
Jogi státusz
használt
Jelleg
ház
Építési mód
tégla
Méret
276 m²
Bruttó méret
310 m²
Telek méret
545 m²
Terasz / erkély mérete
21 m²
Fűtés
Gáz cirkó
Belmagasság
270 cm
Lakáson belüli szintszám
3
Tájolás
Dél-nyugat
Panoráma
városi panoráma
Állapot
Kiváló
Homlokzat állapota
Kiváló
Környék
csendes
Építés éve
2014
Fürdőszobák száma
2
Garázs
Benne van az árban
Garázs férőhely
2
Víz
Van
Gáz
Van
Villany
Van
Csatorna
Van
Tároló
Önálló
Helyiségek
nappali
26.5 m²
konyha-étkező
20.78 m²
közlekedő
7.18 m²
előszoba
4.5 m²
gardrób
8.58 m²
szoba
17.16 m²
fürdőszoba-wc
5.33 m²
kamra
0.1 m²
wc
3.69 m²
terasz
14.65 m²
szoba
24.17 m²
szoba
12.08 m²
szoba
10.09 m²
galéria
13.37 m²
fürdőszoba-wc
8.83 m²
erkély
0.83 m²
erkély
1.74 m²
garázs
45.32 m²
közlekedő
9.84 m²
raktár
37.61 m²
kamra
5.14 m²
wc
3 m²
egyéb helyiség
5.35 m²
Horváth Eleonóra
Hitelszakértő