158,253,810 Ft
407,000 €
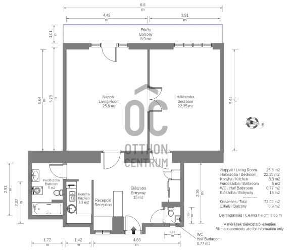
- 74m²
- 2 Rooms
- 2nd floor






close to St. Stephen's Basilica
Fascinaing location!
In 5th district close to St. Stephen's Basilica,
In a historical building, with elevator.
The 74 sqm apartment is on the second floor ( there is a half-floor, so it's on the 3rd level ),
2 rooms are facing to the street, with balcony and AC.
I highly recommend for investment.
In 5th district close to St. Stephen's Basilica,
In a historical building, with elevator.
The 74 sqm apartment is on the second floor ( there is a half-floor, so it's on the 3rd level ),
2 rooms are facing to the street, with balcony and AC.
I highly recommend for investment.
Registration Number
H480378
Property Details
Sales
for sale
Legal Status
used
Character
apartment
Construction Method
brick
Net Size
74 m²
Gross Size
74 m²
Size of Terrace / Balcony
9 m²
Heating
Gas circulator
Ceiling Height
365 cm
Orientation
West
Staircase Type
circular corridor
Condition
Good
Condition of Facade
Good
Condition of Staircase
Good
Year of Construction
1900
Number of Bathrooms
1
Position
street-facing
Water
Available
Gas
Available
Electricity
Available
Sewer
Available
Elevator
available
Rooms
living room
26 m²
room
22 m²
kitchen
4 m²

Ruczek Krisztina
Credit Expert