299,000,000 Ft
771,000 €
- 268m²
- 6 Rooms
Eladó a Rózsadombon panorámás sorházi lakás
II. Rózsadombon a Marcibányi tér közelében eladó egy panorámás, kertkapcsolatos, 248nm-es sorházi lakás.
Az ingatlan egy 840 nm-es telken helyezkedik el. A lakáshoz 2 kocsi beállására alkalmas garázs tartozik, ami a vételár részét képezi.
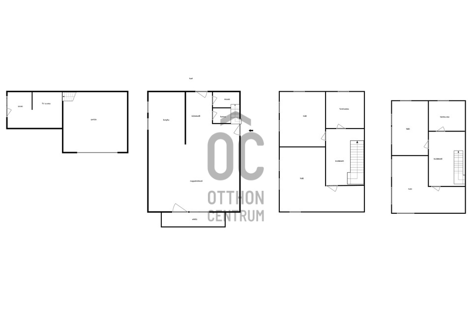
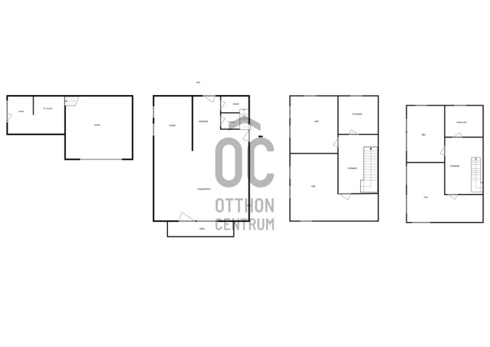
A lakás 4 szintes, szintenként 60nm, + padlás.
0 szint: tároló és média szoba. Innen közelíthető meg egy kis lépcsőházon keresztül a garázs.
1. szint: konyha, nappali étkezővel, kamra, valamint mosdó, és egy 8nm-es erkély.
2.szint: 2 hálószoba, erkély, fürdőszoba zuhanyzóval és mosdóval.
3.szint: 2 hálószoba, fürdőszoba zuhanyzóval és mosdóval.
A lakás 2019-ben felújítva, korszerűsítve lett. Új hő és hangszigetelt fa nyílászárók lettek beépítve.
A fűtést gázkazán biztosítja. A 0 és az 1. szinten padlófűtés, a 2., 3. szinten radiátoros fűtés van.
A lakás per és tehermentes, rövid időn belül költözhető.
Az ingatlan egy 840 nm-es telken helyezkedik el. A lakáshoz 2 kocsi beállására alkalmas garázs tartozik, ami a vételár részét képezi.
A lakás 4 szintes, szintenként 60nm, + padlás.
0 szint: tároló és média szoba. Innen közelíthető meg egy kis lépcsőházon keresztül a garázs.
1. szint: konyha, nappali étkezővel, kamra, valamint mosdó, és egy 8nm-es erkély.
2.szint: 2 hálószoba, erkély, fürdőszoba zuhanyzóval és mosdóval.
3.szint: 2 hálószoba, fürdőszoba zuhanyzóval és mosdóval.
A lakás 2019-ben felújítva, korszerűsítve lett. Új hő és hangszigetelt fa nyílászárók lettek beépítve.
A fűtést gázkazán biztosítja. A 0 és az 1. szinten padlófűtés, a 2., 3. szinten radiátoros fűtés van.
A lakás per és tehermentes, rövid időn belül költözhető.
Registration Number
H475779
Property Details
Sales
for sale
Legal Status
used
Character
house
Construction Method
brick
Net Size
268 m²
Gross Size
268 m²
Plot Size
841 m²
Size of Terrace / Balcony
10 m²
Heating
Gas circulator
Ceiling Height
290 cm
Number of Levels Within the Property
4
Orientation
North-East
Condition
Good
Condition of Facade
Excellent
Year of Construction
1980
Number of Bathrooms
2
Garage
Included in the price
Garage Spaces
2
Water
Available
Gas
Available
Electricity
Available
Sewer
Available
Rooms
open-plan living and dining room
40 m²
kitchen
10 m²
corridor
5 m²
toilet
2.5 m²
pantry
2.5 m²
bedroom
20 m²
bedroom
15 m²
corridor
5 m²
bathroom-toilet
15 m²
staircase
5 m²
bedroom
10 m²
bedroom
10 m²
bathroom-toilet
10 m²
corridor
3 m²
staircase
5 m²
attic
15 m²
room
20 m²
garage
40 m²
Ruczek Krisztina
Credit Expert