data_sheet.details.realestate.section.main.otthonstart_flag.label
For sale family house,
H503703
Nagymaros
69,800,000 Ft
180,000 €
- 70.5m²
- 3 Rooms


































Nagymaros szívében, a Pacsirta utcában található családi ház, amely 765 nm-es telken helyezkedik el,
- kivett gazdasági terület és épületként nyilvántartott,
- nem hitelezhető,
- nettó 71 nm-es alapterületű,
- bruttó 106 nm + teraszok + erkély,
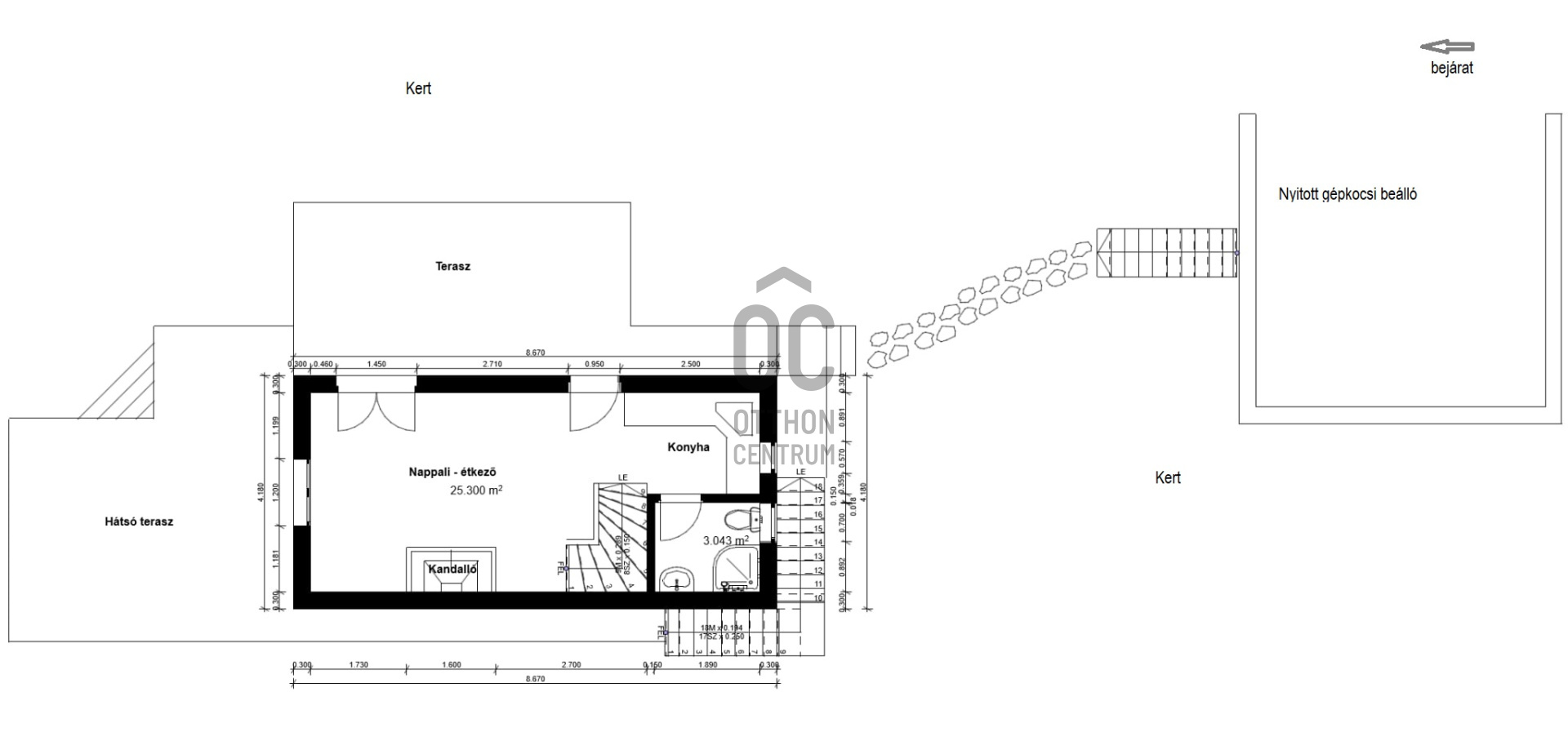
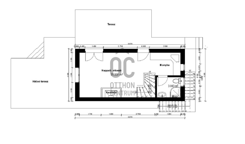
- a földszinten egy kandallós nappali, nyitott konyha és egy fürdőszoba helyezkedik el,
- az emeleten 2 hálószoba + erkély
- 20 nm-es teraszról és az erkélyről a Dunára és a gyönyörű hegyekre nyílik kilátás,
- a szuterén szinten még egy konyha került kialakításra, itt a fűtésre cserépkályha ad lehetőséget.
- a meleg vizet villanybojler biztosítja,
- a ház a 90-es években épült,
- szigetelt,
- telken belül 2 gépkocsi számára van parkolási lehetőség,
- a szuterén szint felújítást igényel,
- kissé meredek úton közelíthető meg,
- a ház környezetében csendes, nyugodt légkör uralkodik, amely ideális a pihenésre és feltöltődésre.
- a közlekedés kitűnő, Nagymaros vasútállomás néhány percnyire található így Budapest gyorsan elérhető.
- a főváros közelsége nemcsak a munkavállalók, hanem a hétvégi kirándulások szerelmesei számára is vonzó.
- a természet közelsége, a közeli kirándulóhelyek és a folyóparti sétányok tökéletes lehetőséget kínálnak a szabadidős tevékenységekhez.
- ez a tehermentes ingatlan remek lehetőséget kínál, hogy valóra váltsa álmait.
Díjmentes, bankfüggetlen hiteltanácsadással támogatjuk vevő ügyfeleinket a számukra legelőnyösebb finanszírozási döntések meghozatalában. Opcionálisan igénybe vehető kiegészítő szolgáltatásainkkal – mint ügyvédi közreműködés, energetikai tanúsítvány vagy villamos biztonsági felülvizsgálat – teljes körű szakmai támogatást nyújtunk az adásvétel folyamatának minden egyes lépésénél.
- kivett gazdasági terület és épületként nyilvántartott,
- nem hitelezhető,
- nettó 71 nm-es alapterületű,
- bruttó 106 nm + teraszok + erkély,
- a földszinten egy kandallós nappali, nyitott konyha és egy fürdőszoba helyezkedik el,
- az emeleten 2 hálószoba + erkély
- 20 nm-es teraszról és az erkélyről a Dunára és a gyönyörű hegyekre nyílik kilátás,
- a szuterén szinten még egy konyha került kialakításra, itt a fűtésre cserépkályha ad lehetőséget.
- a meleg vizet villanybojler biztosítja,
- a ház a 90-es években épült,
- szigetelt,
- telken belül 2 gépkocsi számára van parkolási lehetőség,
- a szuterén szint felújítást igényel,
- kissé meredek úton közelíthető meg,
- a ház környezetében csendes, nyugodt légkör uralkodik, amely ideális a pihenésre és feltöltődésre.
- a közlekedés kitűnő, Nagymaros vasútállomás néhány percnyire található így Budapest gyorsan elérhető.
- a főváros közelsége nemcsak a munkavállalók, hanem a hétvégi kirándulások szerelmesei számára is vonzó.
- a természet közelsége, a közeli kirándulóhelyek és a folyóparti sétányok tökéletes lehetőséget kínálnak a szabadidős tevékenységekhez.
- ez a tehermentes ingatlan remek lehetőséget kínál, hogy valóra váltsa álmait.
Díjmentes, bankfüggetlen hiteltanácsadással támogatjuk vevő ügyfeleinket a számukra legelőnyösebb finanszírozási döntések meghozatalában. Opcionálisan igénybe vehető kiegészítő szolgáltatásainkkal – mint ügyvédi közreműködés, energetikai tanúsítvány vagy villamos biztonsági felülvizsgálat – teljes körű szakmai támogatást nyújtunk az adásvétel folyamatának minden egyes lépésénél.
Registration Number
H503703
Property Details
Sales
for sale
Legal Status
used
Character
house
Construction Method
brick
Net Size
70.5 m²
Gross Size
106 m²
Plot Size
765 m²
Size of Terrace / Balcony
42 m²
Heating
other
Ceiling Height
270 cm
Number of Levels Within the Property
2
Orientation
South-East
View
river or lake view, Green view
Condition
Good
Condition of Facade
Excellent
Neighborhood
quiet, good transport, green
Year of Construction
1990
Number of Bathrooms
1
Water
Available
Electricity
Available
Rooms
open-plan kitchen and living room
25.3 m²
bathroom
3 m²
room
14.4 m²
room
6.7 m²
corridor
1.6 m²
balcony
2 m²
terrace
20 m²
terrace
20 m²
room
18 m²
room
27 m²
parking space
30 m²

Ruczek Krisztina
Credit Expert