1,750,000 Ft
4,500 €
- 540m²
- 8 Rooms


































luxus a város felett, csodás panoráma, nagy terek
luxus a város felett
Kiadásra kínálunk a Szeréna úton egy gyönyörű panorámás 3 szintes luxus igényeket kielégítő családi házat.
Alkalmas egy nagyobb családnak lakhatásra, de akár irodának, vagy cégközpontnak, oktatási célokra, vagy rendelőknek is.
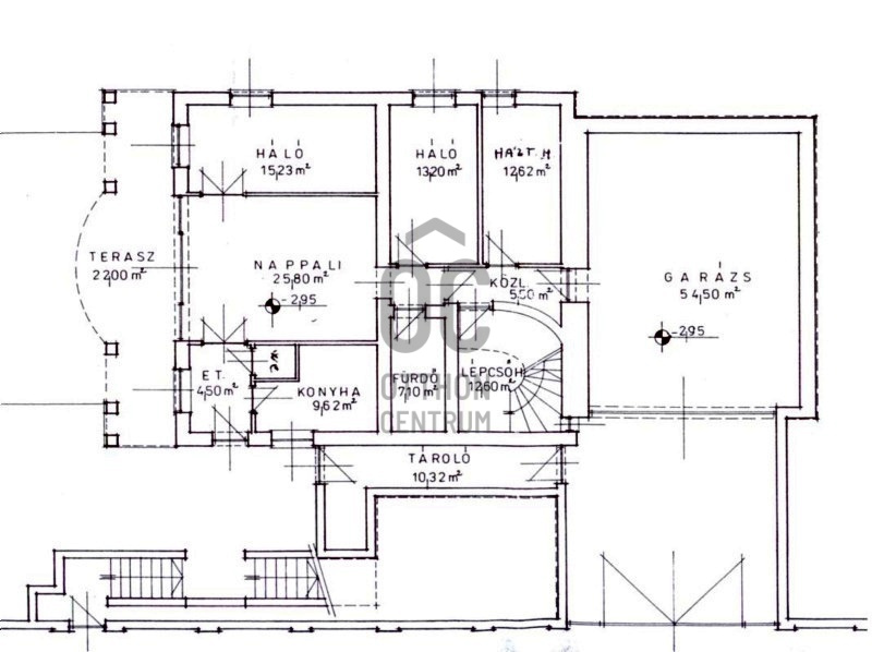
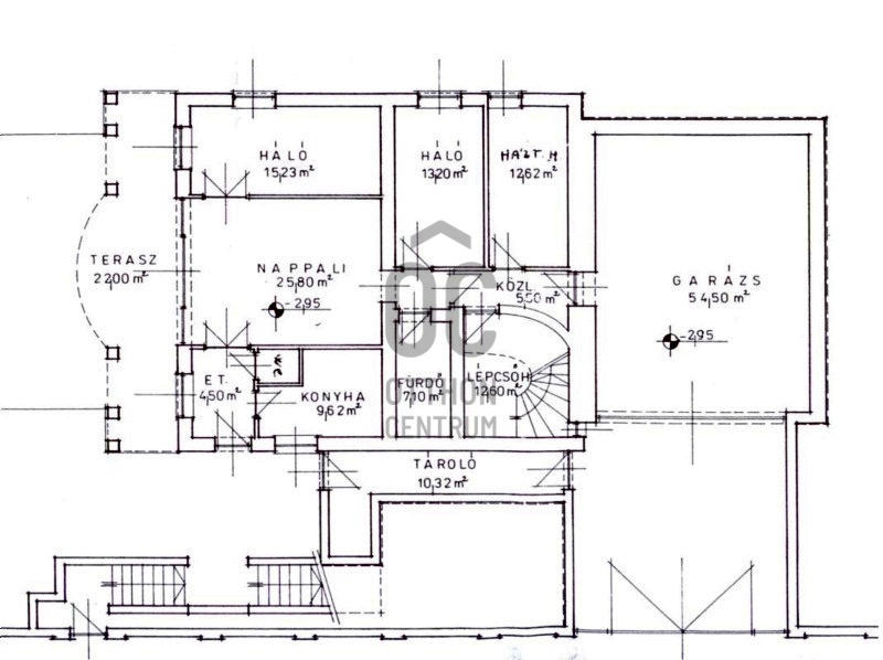
A földszinten 3 állásos garázs, szauna, kiszolgáló helyiségek és egy világos tágas nappali, 3 háló szoba, fürdő és konyha található. Ez a szint is nagyon világos, panorámás és közvetlen kijárata van az alsó teraszra. és a kertbe.
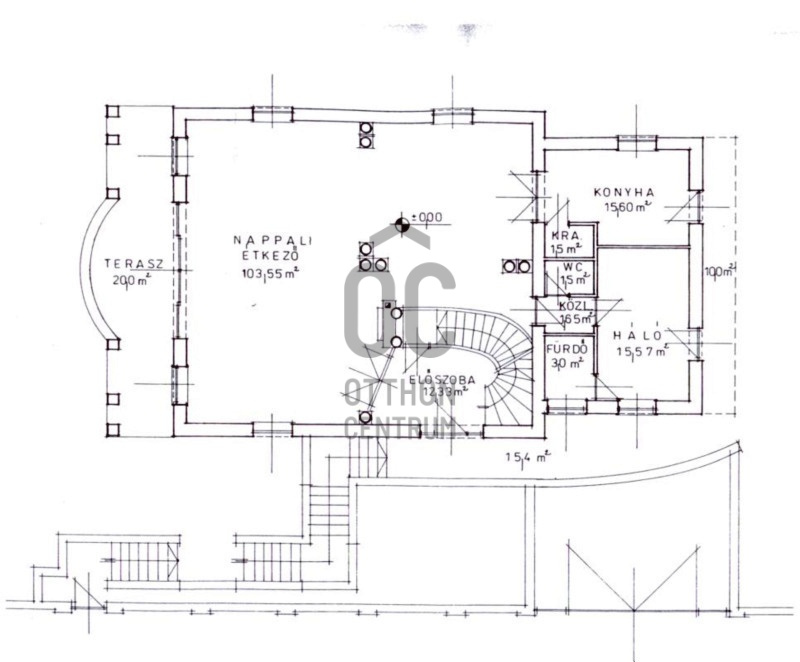
A középső szinten egy óriási étkezőt és nappalit valamint 1 háló szobát és fürdőt alakítottak ki. A napfényes nappaliból jutunk ki az óriási teraszra, ahonnan a lábunk előtt érezhetjük az egész várost.
A felső szinten a halból nyílik 2 hálószoba és 2 fürdő. A teraszról itt is élvezhetjük a csodás panorámát. A halból egy lépcsőn juthatunk fel a tetőteraszra. A ház körüli kert szépen gondozott, elektromos kapun át juthatunk az udvarba. A kertből a ház körüljárható, a középső terasz szintjén is.
A kertben további 4 gépkocsi számára biztosított a beállás.
Érdemes megtekinteni! Várom jelentkezését.
Díjmentes, bankfüggetlen hiteltanácsadással támogatjuk vevő ügyfeleinket a számukra legelőnyösebb finanszírozási döntések meghozatalában. Opcionálisan igénybe vehető kiegészítő szolgáltatásainkkal – mint ügyvédi közreműködés, energetikai tanúsítvány vagy villamos biztonsági felülvizsgálat – teljes körű szakmai támogatást nyújtunk az adásvétel folyamatának minden egyes lépésénél.
Kiadásra kínálunk a Szeréna úton egy gyönyörű panorámás 3 szintes luxus igényeket kielégítő családi házat.
Alkalmas egy nagyobb családnak lakhatásra, de akár irodának, vagy cégközpontnak, oktatási célokra, vagy rendelőknek is.
A földszinten 3 állásos garázs, szauna, kiszolgáló helyiségek és egy világos tágas nappali, 3 háló szoba, fürdő és konyha található. Ez a szint is nagyon világos, panorámás és közvetlen kijárata van az alsó teraszra. és a kertbe.
A középső szinten egy óriási étkezőt és nappalit valamint 1 háló szobát és fürdőt alakítottak ki. A napfényes nappaliból jutunk ki az óriási teraszra, ahonnan a lábunk előtt érezhetjük az egész várost.
A felső szinten a halból nyílik 2 hálószoba és 2 fürdő. A teraszról itt is élvezhetjük a csodás panorámát. A halból egy lépcsőn juthatunk fel a tetőteraszra. A ház körüli kert szépen gondozott, elektromos kapun át juthatunk az udvarba. A kertből a ház körüljárható, a középső terasz szintjén is.
A kertben további 4 gépkocsi számára biztosított a beállás.
Érdemes megtekinteni! Várom jelentkezését.
Díjmentes, bankfüggetlen hiteltanácsadással támogatjuk vevő ügyfeleinket a számukra legelőnyösebb finanszírozási döntések meghozatalában. Opcionálisan igénybe vehető kiegészítő szolgáltatásainkkal – mint ügyvédi közreműködés, energetikai tanúsítvány vagy villamos biztonsági felülvizsgálat – teljes körű szakmai támogatást nyújtunk az adásvétel folyamatának minden egyes lépésénél.
Registration Number
H475050
Property Details
Sales
for rent
Legal Status
used
Character
house
Construction Method
brick
Net Size
540 m²
Gross Size
540 m²
Plot Size
1,000 m²
Size of Terrace / Balcony
102 m²
Heating
Gas circulator
Ceiling Height
270 cm
Number of Levels Within the Property
3
Orientation
South-East
View
city view, river or lake view, Green view
Condition
Good
Condition of Facade
Good
Neighborhood
quiet, good transport, green
Year of Construction
2000
Number of Bathrooms
3
Water
Available
Gas
Available
Electricity
Available
Sewer
Available
Multi-Generational
yes
Rooms
living room
25.8 m²
bedroom
15.23 m²
bedroom
13.2 m²
terrace
22 m²
open-plan living and dining room
12.3 m²
kitchen
15.6 m²
bedroom
15.5 m²
bathroom
3 m²
terrace
20 m²
bedroom
22.2 m²
corridor
17.4 m²
bathroom
11.2 m²
wardrobe
15.35 m²
terrace
60 m²

Ruczek Krisztina
Credit Expert