159,900,000 Ft
421,000 €
- 200m²
- 5 Rooms
Hajdúszoboszlón a Bánomkertben minőségi anyagokból, magas színvonalú, igényes családi ház eladó!
Hajdúszoboszlón kiváló minőségű és modern családi ház eladó. A felújítás és a korszerűsítés során számos kényelmi és energiahatékony funkcióval lett ellátva.
Főbb jellemzők :
-721 nm-es telek, sok fájával a kényelmes helyszín kertészkedéshez vagy szabadidős tevékenységekhez.
-230 nm-es bruttó / 200 nm-es nettó alapterület (tégla és ytong falakat). Az ingatlan bővített és jól tervezett terekkel rendelkezik, amelyek kényelmes lakhatást biztosítanak. Az újragondolás, újratervezés keretében 90 nm új épületrész került kialakításra.
-A ház több funkciónak is megfelel, amellett, hogy több generációs együttélésre is tökéletes, a felső szint vendég fogadásra is alkalmassá tehető, szükség esetén konyha is kialakítható.
- A teljeskörű felújítás során a főfalakon kívül az ingatlan számos részét megújították, így modern és letisztult kinézetet kapott.
-Az új tetőszerkezet Tondach cseréppel biztosítja az eső és időjárás elleni védelmet.
-A Schüco műanyag nyílászárók és az alumínium, elektromos, távirányítású redőnyök hozzájárulnak az energiahatékonysághoz és a biztonsághoz.
-A Mitsubishi hőszivattyú és a padlófűtés (szobánként egyedi termosztát) kényelmes és hatékony fűtési megoldást nyújtanak.
-A meglévő kéménynek köszönhetően kandalló kialakítása lehetséges.
-Az épület elektromos rendszere alkalmas napelemek telepítésére.
-A 4 db Fischer, inverteles klíma segít a hőmérséklet szabályozásában a szobákban.
-Az emeleti kertre néző nagy szoba osztható és galériázható.
-A fürdőszobák és konyha bútorzata most készül.
-Az ingatlanban 3 fürdőszoba található, amelyek kényelmet biztosítanak a lakók számára.
- A 34 nm-es terasz kiváló helyszín a kikapcsolódásra, és lehetőség van jakuzzi kiépítésére.
-A fűtött garázs (25nm) megközelítését az utcáról távirányítással működtethető úszókapu biztosítja, ami része az utcafronti 25m hosszú (lézervágott elemeket tartalmazó) kerítésnek.
-Az új építésű garázs a jó helykihasználás érdekében galériázható, műhely sarok kialakítható.
- A külső szigetelés hatékonyan segíti az ingatlan hőszigetelését.
- A külső és belső rejtett LED világítások modern és hangulatos megjelenést biztosítanak.
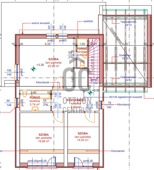
A hirdetésben szereplő információk a megbízótól kapott adatok alapján készültek, pontosságukért felelősséget nem vállalunk! Az alaprajz csak tájékoztató jellegű!
Amennyiben vásárláshoz hitelre is szüksége van független hitel tanácsadónk ingyenesen tud Önnek segítséget
nyújtani a legjobb konstrukciók kiválasztásában és a folyamat lebonyolításában.
Irodánk kereső ügyfeleinknek teljes körű szolgáltatást nyújt, szakszerű tanácsadással, energetikai
tanúsítvány elkészítésével, hitelügyintézéssel és profi ügyvédi segítséggel.
Abban az esetben ha az ingatlan felkeltette érdeklődését keressen bizalommal!
Főbb jellemzők :
-721 nm-es telek, sok fájával a kényelmes helyszín kertészkedéshez vagy szabadidős tevékenységekhez.
-230 nm-es bruttó / 200 nm-es nettó alapterület (tégla és ytong falakat). Az ingatlan bővített és jól tervezett terekkel rendelkezik, amelyek kényelmes lakhatást biztosítanak. Az újragondolás, újratervezés keretében 90 nm új épületrész került kialakításra.
-A ház több funkciónak is megfelel, amellett, hogy több generációs együttélésre is tökéletes, a felső szint vendég fogadásra is alkalmassá tehető, szükség esetén konyha is kialakítható.
- A teljeskörű felújítás során a főfalakon kívül az ingatlan számos részét megújították, így modern és letisztult kinézetet kapott.
-Az új tetőszerkezet Tondach cseréppel biztosítja az eső és időjárás elleni védelmet.
-A Schüco műanyag nyílászárók és az alumínium, elektromos, távirányítású redőnyök hozzájárulnak az energiahatékonysághoz és a biztonsághoz.
-A Mitsubishi hőszivattyú és a padlófűtés (szobánként egyedi termosztát) kényelmes és hatékony fűtési megoldást nyújtanak.
-A meglévő kéménynek köszönhetően kandalló kialakítása lehetséges.
-Az épület elektromos rendszere alkalmas napelemek telepítésére.
-A 4 db Fischer, inverteles klíma segít a hőmérséklet szabályozásában a szobákban.
-Az emeleti kertre néző nagy szoba osztható és galériázható.
-A fürdőszobák és konyha bútorzata most készül.
-Az ingatlanban 3 fürdőszoba található, amelyek kényelmet biztosítanak a lakók számára.
- A 34 nm-es terasz kiváló helyszín a kikapcsolódásra, és lehetőség van jakuzzi kiépítésére.
-A fűtött garázs (25nm) megközelítését az utcáról távirányítással működtethető úszókapu biztosítja, ami része az utcafronti 25m hosszú (lézervágott elemeket tartalmazó) kerítésnek.
-Az új építésű garázs a jó helykihasználás érdekében galériázható, műhely sarok kialakítható.
- A külső szigetelés hatékonyan segíti az ingatlan hőszigetelését.
- A külső és belső rejtett LED világítások modern és hangulatos megjelenést biztosítanak.
A hirdetésben szereplő információk a megbízótól kapott adatok alapján készültek, pontosságukért felelősséget nem vállalunk! Az alaprajz csak tájékoztató jellegű!
Amennyiben vásárláshoz hitelre is szüksége van független hitel tanácsadónk ingyenesen tud Önnek segítséget
nyújtani a legjobb konstrukciók kiválasztásában és a folyamat lebonyolításában.
Irodánk kereső ügyfeleinknek teljes körű szolgáltatást nyújt, szakszerű tanácsadással, energetikai
tanúsítvány elkészítésével, hitelügyintézéssel és profi ügyvédi segítséggel.
Abban az esetben ha az ingatlan felkeltette érdeklődését keressen bizalommal!
Registration Number
H473074
Property Details
Sales
for sale
Legal Status
used
Character
house
Construction Method
brick
Net Size
200 m²
Gross Size
230 m²
Plot Size
721 m²
Heating
heat pump
Ceiling Height
270 cm
Number of Levels Within the Property
2
Orientation
South
Condition
Excellent
Condition of Facade
Excellent
Year of Construction
1980
Number of Bathrooms
3
Water
Available
Electricity
Available
Sewer
Available
Rooms
open-plan living and dining room
29 m²
room
12 m²
room
26 m²
room
20 m²
room
14 m²
entryway
24 m²
bathroom
8.2 m²
bathroom
5.7 m²
bathroom
2.75 m²
garage
25.2 m²
terrace
34.14 m²
storage
1.6 m²
toilet
1.65 m²
corridor
3.5 m²
corridor
8.8 m²
Katonáné Boruzs Ildikó
Credit Expert