142,000,000 Ft
363,000 €
- 61m²
- 3 Rooms
- ground floor














Balaton közeli luxus lakás
Zamárdi , Somogy megyében a Balaton déli partján található.
2008 óta város és a régió legdinamikusabban fejlődő települése, amely a 2007 óta minden éveben megrendezett Balaton sound Fesztivállal feliratkozott Európa turisztikai térképére.
Valóban megdobban az ember szíve Zamárdiban.
Egyesek boldog szívvel emlékeznek az itt eltöltött bulikra, a Balaton soundra, vagy a Strand Fesztiválra, másokat a gyönyörű környezettel rendelkező üdülőhely családias hangulata varázsol el.
A település vízközeli utcájában 2020- ban épült társasházi luxus lakás keresi új tulajdonosát.
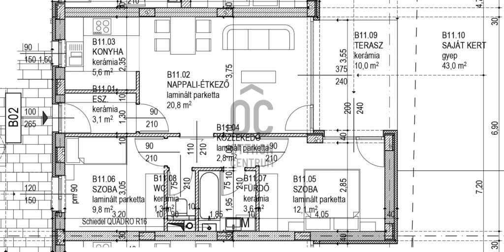
A földszinti lakás 61 nm alapterületű , 10 nm terasz és 40 nm kertkapcsolattal rendelkezik.
Elosztása - 2 hálószoba,nappali, amerikai konyha-étkező, közlekedő, fürdőszoba,, WC, terasz,
Az otthon melegét gáz( cirkó) és padló fűtés biztosítja.
A műanyag nyílászárók 3 rétegű üvegezéssel ,elektromos redőnnyel, szúnyoghálóval felszereltek.
A nappaliban beépített panoráma nyílászárók teszik lehetővé hogy a Balaton lenyűgöző látványát minden évszakban megcsodálhassuk.
A kivitelezés során minőségi alapanyagok, burkolatok kerültek felhasználásra .
A lakáshoz kizárólagos használatú autóparkoló tartozik.
A Balaton part, szabad strand közvetlen közelben található ,központi elhelyezkedés .
A lakás kifogástalan állapotban, teljes felszereléssel együtt kerül értékesítésre.
A gépkocsi beálló a vételár részét képezi.
A társasház minden apró részletét a minőségi és igényes kialakítás jellemzi, kiváló választás lehet állandó lakásnak, nyaralónak vagy befektetésnek is.
Ha szeretne egy luxus minőségű lakást , a Balaton közvetlen közelében , hívjon bizalommal /
2008 óta város és a régió legdinamikusabban fejlődő települése, amely a 2007 óta minden éveben megrendezett Balaton sound Fesztivállal feliratkozott Európa turisztikai térképére.
Valóban megdobban az ember szíve Zamárdiban.
Egyesek boldog szívvel emlékeznek az itt eltöltött bulikra, a Balaton soundra, vagy a Strand Fesztiválra, másokat a gyönyörű környezettel rendelkező üdülőhely családias hangulata varázsol el.
A település vízközeli utcájában 2020- ban épült társasházi luxus lakás keresi új tulajdonosát.
A földszinti lakás 61 nm alapterületű , 10 nm terasz és 40 nm kertkapcsolattal rendelkezik.
Elosztása - 2 hálószoba,nappali, amerikai konyha-étkező, közlekedő, fürdőszoba,, WC, terasz,
Az otthon melegét gáz( cirkó) és padló fűtés biztosítja.
A műanyag nyílászárók 3 rétegű üvegezéssel ,elektromos redőnnyel, szúnyoghálóval felszereltek.
A nappaliban beépített panoráma nyílászárók teszik lehetővé hogy a Balaton lenyűgöző látványát minden évszakban megcsodálhassuk.
A kivitelezés során minőségi alapanyagok, burkolatok kerültek felhasználásra .
A lakáshoz kizárólagos használatú autóparkoló tartozik.
A Balaton part, szabad strand közvetlen közelben található ,központi elhelyezkedés .
A lakás kifogástalan állapotban, teljes felszereléssel együtt kerül értékesítésre.
A gépkocsi beálló a vételár részét képezi.
A társasház minden apró részletét a minőségi és igényes kialakítás jellemzi, kiváló választás lehet állandó lakásnak, nyaralónak vagy befektetésnek is.
Ha szeretne egy luxus minőségű lakást , a Balaton közvetlen közelében , hívjon bizalommal /
Registration Number
H469497
Property Details
Sales
for sale
Legal Status
used
Character
apartment
Construction Method
brick
Net Size
61 m²
Gross Size
65 m²
Size of Terrace / Balcony
10 m²
Heating
Gas circulator
Ceiling Height
270 cm
Orientation
South-West
Staircase Type
circular corridor
Condition
Excellent
Condition of Facade
Excellent
Condition of Staircase
Excellent
Neighborhood
quiet, good transport, green, central
Year of Construction
2020
Number of Bathrooms
1
Position
street-facing
Common Costs
15000
Water
Available
Gas
Available
Electricity
Available
Sewer
Available
Connected to Garden
yes
Distance to Waterfront
waterfront
Rooms
bedroom
1 m²
bedroom
1 m²
living room
1 m²
open-plan kitchen and dining room
1 m²
bathroom
1 m²
terrace
1 m²

Edve János
Credit Expert