935,000,000 Ft
2,399,000 €
- 578m²
- 8 Rooms
2.kerület, Pálvölgy DUNAI PANORÁMÁS, 578 nm + 130 nm terasszal, LIFTTEL, intim kerttel, MEDENCÉVEL, SZAUNÁVAL rendelkező erdőszéli családi otthon eladó!
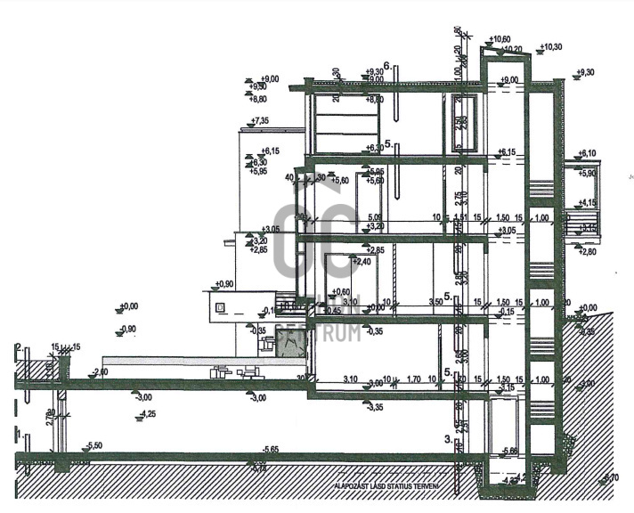
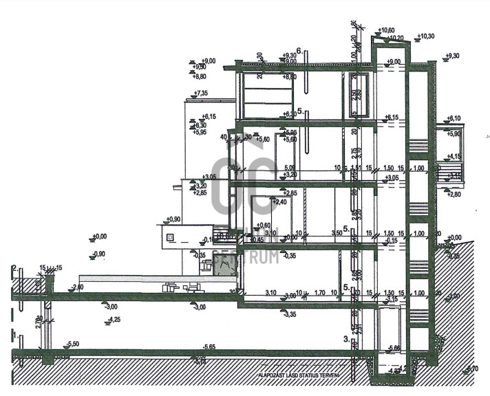
Megvételre kínálok a 2. kerület Pálvölgyben DUNAI PANORÁMÁVAL egy 2004 -ben épült, nettó 578 nm, 8 szobás családi házat, mely összesen 5 szinten helyezkedik el! A szintek közötti átjárást jelentősen megkönnyíti, hogy a házban egy 4 személyes lift is üzemel! Az ingatlan 3 helyrajzi számon található és akár 3 lakássá is alakítható. Ekkor a szintek közötti mozgás a lift programozásával, egy kulcskártyával megoldható lehet!
Az ingatlan 745 nm gyönyörűen parkosított és gondozott telken fekszikk közvetlenül a Pilisi Parkerdő mellett.
A ház 4 terasszal rendelkezik, melyek összterülete 130 nm. Három nagy teraszról valamint a tágas nappali étkezőjéből is gyönyörködhetünk az elvehetetlen panorámában!
Parkolni a pinceszinten lévő garázsban lehet, mely jelenleg 3 autó befogadását teszi lehetővé, de ez akár bővíthető még 2 gépjármű befogadására.
A környék rendkivül biztonságos, a 2. kerület egy presztizs környékén, erdő szélén, intim környezetben helyezkedik el.
Ház jellemzői:
- nettó 578 nm, 5 szint, 8 szoba,
- 745 nm INTIM TELEK,
- a házban LIFT üzemel,
- kültéri MEDENCE ( 10m x 3m) sóbontó készülékkel,
- a ház 3 lakássá alakítható (3 helyrajzi számon),
- több generáció együttélésére is alkalmas,
- két utcai bejárat,
- DUNAI PANORÁMA,
- összesen 130 nm terasz (60, 30, 25, 15 nm),
- 3 szinten panorámás teraszok,
- 285 cm belmagasság,
- gázkazán (kedvező rezsivel),
- klíma minden szinten, minden szobában,
- fa tüzelésű kandalló a nappaliban,
- INFRASZAUNA (2 személyes),
- megújult homlokzat (2022)
- kültéri gránit burkolatok (2022-ben készült el),
- DK-i tájolás,
- hatalmas fa nyílászárók, ragyogóan napfényes helyiségek,
- riasztó,
- 3 állásos garázs, mely még bővíthető 2 autó beállási lehetőséggel,
- 2 felszíni beálló
Szintenként:
Garázs, azaz pinceszint:
- 65 nm garázs, elektromos kapuval, tároló helyiségek, gépészet,
Földszint (akár 1.lakrész)
- akár egy önálló lakrész is lehet étkezős nappalival, hálószobával valamint konyhával és fürdőszobával. A nappaliból nyílik egy 15 nm terasz és a kert egy nagyobb része.
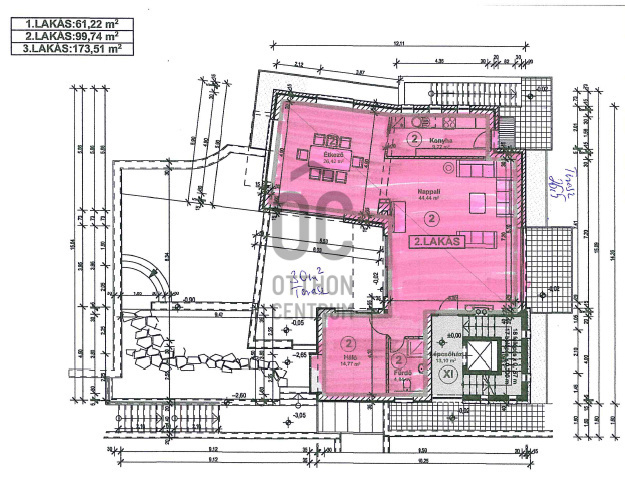
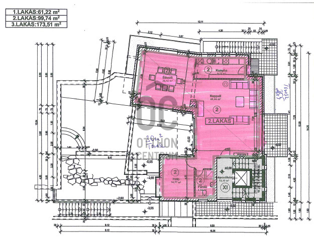
1. szint (akár 2. lakrész)
Itt helyezkedik el egy hatalmas étkezős nappalit, melynek étkezőrészét hatalmas üveg nyílászárók ölelik körbe, így étkezés közben az egész család gyönyörködhet az elvehetetlen panorámában. A nappaliból két terasz is nyílik az egyik a kültéri medencés kertrész és a Pilis erdő tárul elénk, a másik 30 nm es teraszról a panorámát csodálhatjuk újra meg! Találunk itt még egy szobát, fürdőszobát és egy nagy konyhát is.
2. szint ( a 3. szinttel akár 3. lakrész lehet)
Ezen az emeleten jelenleg a hálószobák helyezkednek el, köztük a szülői hálóval, melynek különlegessége a az infraszauna, gardrób szoba és a hatalmas szülői fürdőszoba pihenősarokkal. Itt a teljes komfortérzetet növelve egy plusz fürdőszoba is beépítésre került, így ezen a szinten 2 fürdő is található.
3. szint (a 2. szinttel együtt akár 3. lakrész kialakítható)
A 3. szinten 2 hálószoba , egy fürdőszoba és egy kis teakonyhát alakítottak ki! Az egyik hálószoba ablakai gyönyörű panorámával büszkélkedhetnek, míg a másik szobából közvetlen kijárás biztosított a ház legnagyobb 60 nm-es tetőteraszára. A panoráma természetesen itt is lenyűgöző, sőt!!
Környék:
A ház a Pilisi Parkerdő közvetelen szomszédságában fekszik, annyira, hogy hátsó kertrészéből kilépve közvetlen az erdőben találjuk magunk!
Igazán intim, egyedülálló környezet! Az utcában szebbnél szebb és impozánsabb házak sorakoznak! A környék kimondottan presztizs milliő.
A közelben buszmegálló található.
Csend és nyugalom egy karnyújtásnyira a pezsgő várostól. Ide igazán hazatér az ember!
Jöjjön és helyezze magát kényelembe új otthonában!
Várom megtisztelő hívását a hét minden napján!
Az ingatlan 745 nm gyönyörűen parkosított és gondozott telken fekszikk közvetlenül a Pilisi Parkerdő mellett.
A ház 4 terasszal rendelkezik, melyek összterülete 130 nm. Három nagy teraszról valamint a tágas nappali étkezőjéből is gyönyörködhetünk az elvehetetlen panorámában!
Parkolni a pinceszinten lévő garázsban lehet, mely jelenleg 3 autó befogadását teszi lehetővé, de ez akár bővíthető még 2 gépjármű befogadására.
A környék rendkivül biztonságos, a 2. kerület egy presztizs környékén, erdő szélén, intim környezetben helyezkedik el.
Ház jellemzői:
- nettó 578 nm, 5 szint, 8 szoba,
- 745 nm INTIM TELEK,
- a házban LIFT üzemel,
- kültéri MEDENCE ( 10m x 3m) sóbontó készülékkel,
- a ház 3 lakássá alakítható (3 helyrajzi számon),
- több generáció együttélésére is alkalmas,
- két utcai bejárat,
- DUNAI PANORÁMA,
- összesen 130 nm terasz (60, 30, 25, 15 nm),
- 3 szinten panorámás teraszok,
- 285 cm belmagasság,
- gázkazán (kedvező rezsivel),
- klíma minden szinten, minden szobában,
- fa tüzelésű kandalló a nappaliban,
- INFRASZAUNA (2 személyes),
- megújult homlokzat (2022)
- kültéri gránit burkolatok (2022-ben készült el),
- DK-i tájolás,
- hatalmas fa nyílászárók, ragyogóan napfényes helyiségek,
- riasztó,
- 3 állásos garázs, mely még bővíthető 2 autó beállási lehetőséggel,
- 2 felszíni beálló
Szintenként:
Garázs, azaz pinceszint:
- 65 nm garázs, elektromos kapuval, tároló helyiségek, gépészet,
Földszint (akár 1.lakrész)
- akár egy önálló lakrész is lehet étkezős nappalival, hálószobával valamint konyhával és fürdőszobával. A nappaliból nyílik egy 15 nm terasz és a kert egy nagyobb része.
1. szint (akár 2. lakrész)
Itt helyezkedik el egy hatalmas étkezős nappalit, melynek étkezőrészét hatalmas üveg nyílászárók ölelik körbe, így étkezés közben az egész család gyönyörködhet az elvehetetlen panorámában. A nappaliból két terasz is nyílik az egyik a kültéri medencés kertrész és a Pilis erdő tárul elénk, a másik 30 nm es teraszról a panorámát csodálhatjuk újra meg! Találunk itt még egy szobát, fürdőszobát és egy nagy konyhát is.
2. szint ( a 3. szinttel akár 3. lakrész lehet)
Ezen az emeleten jelenleg a hálószobák helyezkednek el, köztük a szülői hálóval, melynek különlegessége a az infraszauna, gardrób szoba és a hatalmas szülői fürdőszoba pihenősarokkal. Itt a teljes komfortérzetet növelve egy plusz fürdőszoba is beépítésre került, így ezen a szinten 2 fürdő is található.
3. szint (a 2. szinttel együtt akár 3. lakrész kialakítható)
A 3. szinten 2 hálószoba , egy fürdőszoba és egy kis teakonyhát alakítottak ki! Az egyik hálószoba ablakai gyönyörű panorámával büszkélkedhetnek, míg a másik szobából közvetlen kijárás biztosított a ház legnagyobb 60 nm-es tetőteraszára. A panoráma természetesen itt is lenyűgöző, sőt!!
Környék:
A ház a Pilisi Parkerdő közvetelen szomszédságában fekszik, annyira, hogy hátsó kertrészéből kilépve közvetlen az erdőben találjuk magunk!
Igazán intim, egyedülálló környezet! Az utcában szebbnél szebb és impozánsabb házak sorakoznak! A környék kimondottan presztizs milliő.
A közelben buszmegálló található.
Csend és nyugalom egy karnyújtásnyira a pezsgő várostól. Ide igazán hazatér az ember!
Jöjjön és helyezze magát kényelembe új otthonában!
Várom megtisztelő hívását a hét minden napján!
Registration Number
H464984
Property Details
Sales
for sale
Legal Status
used
Character
house
Construction Method
brick
Net Size
578 m²
Gross Size
708 m²
Plot Size
745 m²
Size of Terrace / Balcony
130 m²
Heating
Gas circulator
Ceiling Height
275 cm
Number of Levels Within the Property
5
Orientation
South-East
View
city view, river or lake view, Green view
Condition
Good
Condition of Facade
Excellent
Neighborhood
quiet, good transport, green
Year of Construction
2004
Number of Bathrooms
5
Garage
Included in the price
Garage Spaces
3
Water
Available
Gas
Available
Electricity
Available
Sewer
Available
Multi-Generational
yes
Rooms
room
20.4 m²
room
30.04 m²
entryway
3.38 m²
bathroom-toilet
3.75 m²
values.realestate.szobatipus.49
60 m²
open-plan kitchen and living room
57.18 m²
room
24.14 m²
bathroom-toilet
13.62 m²
wardrobe
4.6 m²
entryway
3.31 m²
bathroom-toilet
5.2 m²
staircase
3 m²
open-plan living and dining room
70.86 m²
kitchen
9.27 m²
room
14.77 m²
bathroom-toilet
4.84 m²
staircase
13.1 m²
terrace
25.5 m²
terrace
30 m²
living room
25.9 m²
dining room
20.68 m²
bathroom-toilet
6 m²
wardrobe
3.24 m²
kitchen
5.4 m²
entryway
8.3 m²
laundry room
15.48 m²
boiler room
11.03 m²
staircase
33.16 m²
toilet-washbasin
8.13 m²
terrace
15 m²
corridor
19.33 m²
other room
13.12 m²
storage
11.84 m²
storage
32.5 m²
garage
65.13 m²
Ruczek Krisztina
Credit Expert