data_sheet.details.realestate.section.main.otthonstart_flag.label
For sale family house,
H365977
Szálka
55,000,000 Ft
141,000 €
- 112m²
- 3 Rooms



























Egyedülálló lehetőség Szálkán!
Szálka legcsendesebb részén található ez az egyedülálló ingatlan. A közel 5000 négyzetméteres telken 2 családi ház kapott helyet, melyek közül az egyik még csak félig készült el, befejezése új gazdájára vár.
A két épület külön is megvásárolható, az elől lévő, amely befejezésre vár 25 millióFt-ért, a másik, amelyik lakható 30 millió Ft-ért.
A hátsó, kész épületben egy amerikai konyhás nappali és két, külső bejárattal is rendelkező szoba kapott helyet saját fürdőszobával és WC-vel. A téli napok kellemes hangulatáról a ház szívében helyett kapott kandalló gondoskodik, melyet elektromos kazán egészít ki. A radiátorok újak, a helyiségeket műanyag nyílászárók szigetelik mind az udvar felől, mind pedig a pincék felől, melyek a nyári melegben is hűvösen tarthatják nem csak az ott eltárolt finom borokat, hanem a lakóteret is. Lapostető szigeteléssel ellátott.
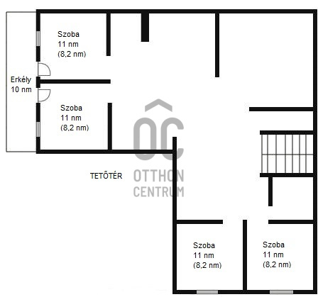
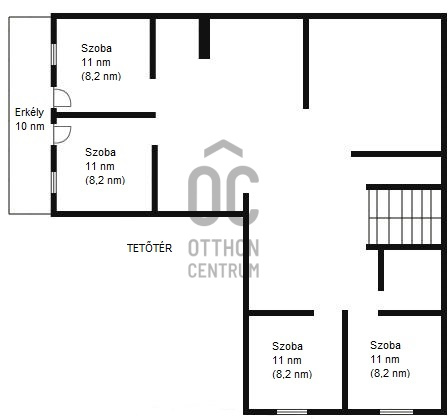
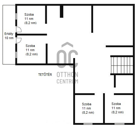
A befejezésre váró ház a tervek szerint kétszintes. Az alsó szinten hatalmas teraszról jutunk az előszobába, ahonnan beljebb haladva a közel 100 négyzetméteres amerikai konyhás nappaliban találhatjuk magunkat. A földszinten kapott helyet továbbá két szoba, kamra, fürdőszoba és egy külön WC. Az emeleten 4 szoba, fürdő és szintén egy WC kap helyet a tervek szerint, de a végleges kialakítása gazdag fantáziájú, új tulajdonosára vár.
Földszintes családi házként is van lehetőség az építkezés befejezésére, lapostetővel, tetőtéri terasszal, jacuzzi-val, kerti sütögetővel. A lehetőségeknek csak a képzelet szab határt.
Ajánlom az ingatlant azoknak, akik igényes, nyugodt környezetben képzelik el a mindennapjaikat. Ideális nagycsaládosoknak, a két épület több generáció ellátására alkalmas. Befektetőknek is komoly lehetőség, bármely épület könnyen panzióvá alakítható.
Számos lehetőség van az ingatlanban, ha Ön is lát benne fantáziát, nézzük meg együtt! Hívjon!
Regisztrációs szám: H365977
Teljes körű pénzügyi megoldások ügyintézése díjmentesen.
Minden élethelyzetre végzünk pénzügyi elemzést - ha vásárolni szeretne, segítünk, hogy ezt a legjobb feltételek mellett tegye; ha eladni szeretné ingatlanát, nézzük meg, hátha érdemes meglévő hitelét átváltani.
Keressen bizalommal, szakértők vagyunk!
A két épület külön is megvásárolható, az elől lévő, amely befejezésre vár 25 millióFt-ért, a másik, amelyik lakható 30 millió Ft-ért.
A hátsó, kész épületben egy amerikai konyhás nappali és két, külső bejárattal is rendelkező szoba kapott helyet saját fürdőszobával és WC-vel. A téli napok kellemes hangulatáról a ház szívében helyett kapott kandalló gondoskodik, melyet elektromos kazán egészít ki. A radiátorok újak, a helyiségeket műanyag nyílászárók szigetelik mind az udvar felől, mind pedig a pincék felől, melyek a nyári melegben is hűvösen tarthatják nem csak az ott eltárolt finom borokat, hanem a lakóteret is. Lapostető szigeteléssel ellátott.
A befejezésre váró ház a tervek szerint kétszintes. Az alsó szinten hatalmas teraszról jutunk az előszobába, ahonnan beljebb haladva a közel 100 négyzetméteres amerikai konyhás nappaliban találhatjuk magunkat. A földszinten kapott helyet továbbá két szoba, kamra, fürdőszoba és egy külön WC. Az emeleten 4 szoba, fürdő és szintén egy WC kap helyet a tervek szerint, de a végleges kialakítása gazdag fantáziájú, új tulajdonosára vár.
Földszintes családi házként is van lehetőség az építkezés befejezésére, lapostetővel, tetőtéri terasszal, jacuzzi-val, kerti sütögetővel. A lehetőségeknek csak a képzelet szab határt.
Ajánlom az ingatlant azoknak, akik igényes, nyugodt környezetben képzelik el a mindennapjaikat. Ideális nagycsaládosoknak, a két épület több generáció ellátására alkalmas. Befektetőknek is komoly lehetőség, bármely épület könnyen panzióvá alakítható.
Számos lehetőség van az ingatlanban, ha Ön is lát benne fantáziát, nézzük meg együtt! Hívjon!
Regisztrációs szám: H365977
Teljes körű pénzügyi megoldások ügyintézése díjmentesen.
Minden élethelyzetre végzünk pénzügyi elemzést - ha vásárolni szeretne, segítünk, hogy ezt a legjobb feltételek mellett tegye; ha eladni szeretné ingatlanát, nézzük meg, hátha érdemes meglévő hitelét átváltani.
Keressen bizalommal, szakértők vagyunk!
Registration Number
H365977
Property Details
Sales
for sale
Legal Status
used
Character
house
Construction Method
brick
Net Size
112 m²
Gross Size
160 m²
Plot Size
4,337 m²
Size of Terrace / Balcony
47 m²
Heating
other
Ceiling Height
244 cm
Orientation
North-East
View
Green view
Condition
Average
Condition of Facade
Average
Basement
values.realestate.pince.1
Neighborhood
quiet, green
Year of Construction
1990
Number of Bathrooms
3
Water
Available
Gas
Available
Electricity
Available
Sewer
Available
Rooms
open-plan kitchen and living room
64 m²
bedroom
12 m²
bedroom
18.7 m²
bathroom-toilet
3.7 m²
bathroom-toilet
4.8 m²
bathroom
3.4 m²
boiler room
2 m²

Moczok Ágnes
Credit Expert