data_sheet.details.realestate.section.main.otthonstart_flag.label
For sale apartment,
DLK066022
Budapest IX. kerület, Külső Ferencváros
87,900,000 Ft
227,000 €
- 66m²
- 3 Rooms
- 1st floor
Teljesen felújított, fiatalos design lakás külső-Ferencvárosban.
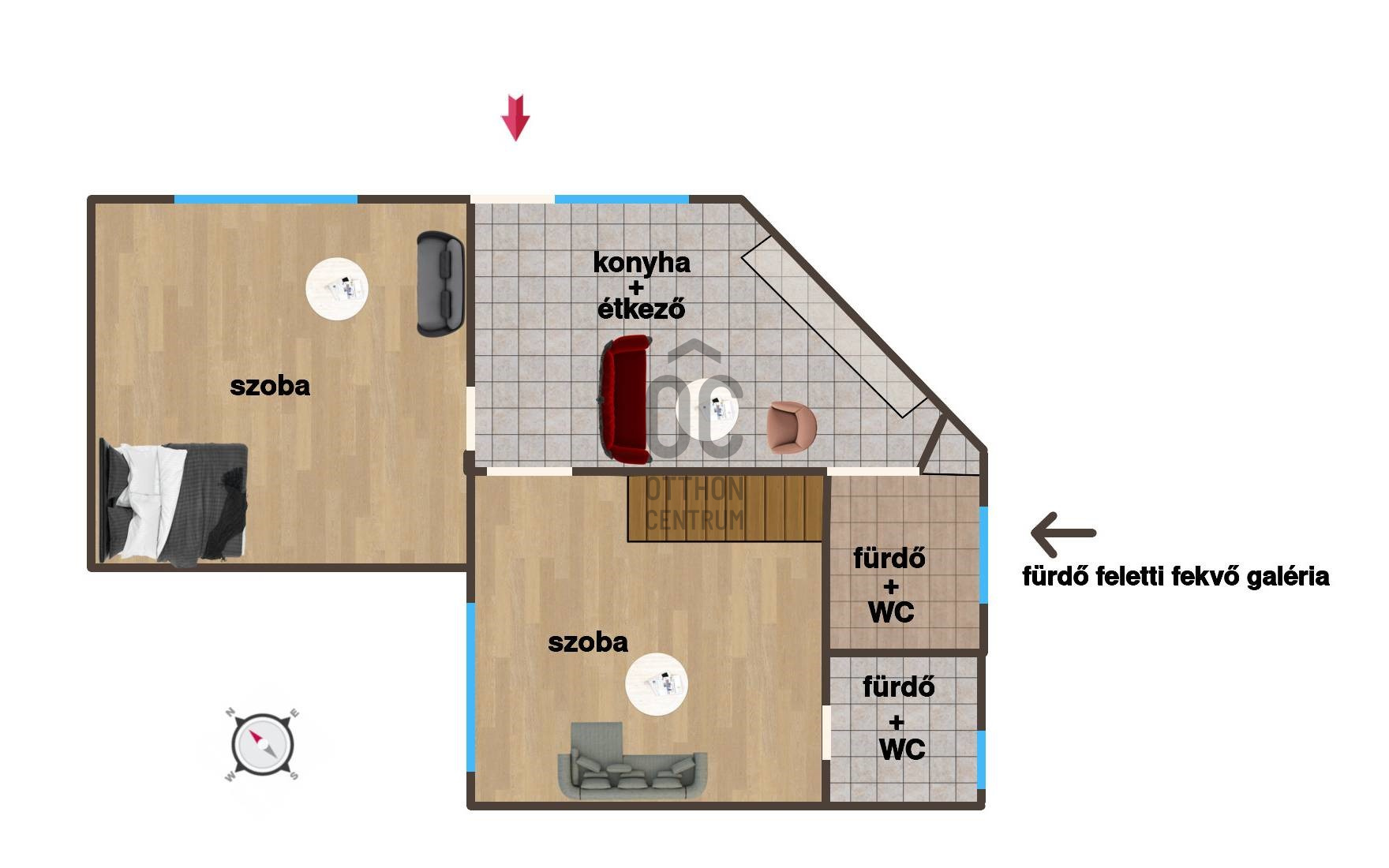
Budapest IX. kerületében, a Hentes utcában, 66 négyzetméteres, háromszobás, (tulajdoni lapon 2 szobás) teljes körűen felújított tégla lakás eladó. Az ingatlan lifttel felszerelt, rendezett társasház első emeletén található. A lakás minden helyiségében hűtő-fűtő klímák gondoskodnak a kellemes hőérzetről egész évben, fűtési szezonban "H" tarifával, így télen is alacsony a rezsi.
A felújítás során modern nyílászárók, redőnyök, beépített bútorok és teljesen gépesített konyha került kialakításra. A konyha indukciós főzőlappal, légkeveréses sütővel, elszívóval, mosogatógéppel, mosógéppel és fagyasztós hűtővel felszerelt. A két fürdőszobában törölközőszárítós radiátor és igényes burkolat, valamint épített zuhanykabin található.
A bejáraton belépve egy közös térbe, a konyhás nappaliba érkezünk, ahol az étkező és a pihenőtér is kényelmesen elfér. Innen nyílik a két külön szoba.
Az egyik 21 m², udvarra néző, világos és csendes, a másik, 18 m²-es szoba belső udvarra néz, kulturált módon épített háló galériával kialakított, és saját, ablakos fürdőszobával rendelkezik.
A második, szintén zuhanyzós fürdőszoba a nappaliból közelíthető meg, és mellette külön kis tároló helyiség is van a galéria lépcsője alatt. A lakás praktikus elrendezésű, minden helyiség funkcionális, a beépített tárolók pedig kifejezetten jól kihasználják a teret.
A közös költség 14 000 Ft, a rezsi alacsony, így a fenntartása kifejezetten gazdaságos. Az épület 1950 előtt épült, a több mint 3 méteres belmagasság tágas és elegáns térérzetet biztosít. A lakás udvari nézetű, csendes, nyugodt.
A lakás Külső-Ferencvárosban, a Hentes utca és a Gubacsi út közötti, csendes szakaszon található. A környék parkolási zónája ingyenes, és mindig található szabad hely az utcában.
A közlekedés kiváló: a ház előtt megáll a 2B villamos, amellyel néhány megálló alatt elérhető a belváros, a Duna-part vagy a Lurdy Ház. A környéken elérhető a 2A és 51-es villamos, valamint több buszjárat (54, 55, 224, 923), így minden irányban jól megközelíthető.
A közelben több bevásárlási lehetőség is adott a Tesco hipermarket és az Illa Center gyalogosan is elérhető. Az oktatási intézmények közül a Semmelweis Egyetem és a Corvinus is jól megközelíthető. A környék folyamatosan fejlődik, a Duna-parti fejlesztések és a barnamezős beruházások további értéknövekedést vetítenek előre.
Ez az ingatlan tökéletes választás fiatal pároknak, akik modern, kulcsrakész otthont keresnek jó közlekedéssel, két diák vagy fiatal szakember számára, akik külön háló- és fürdőszobát szeretnének, vagy befektetőknek, akik azonnal kiadható, gondozásmentes lakást keresnek.
A lakás tehermentes, gyorsan birtokba vehető.
Ha szeretné megtekinteni, hívjon bizalommal, és előzetes időpont egyeztetést követően nézze meg ezt a lakást!
Igényelje hitelét nálunk! Bank semleges és díjmentes pénzügyi tanácsadással és teljes körű ingyenes hitel előminősítéssel és ügyintézéssel állunk rendelkezésére abban az esetben is, ha nem nálunk vásárol.
A standard banki feltételeknél kedvezőbben, akár a saját bankjánál is, egyedi kedvezményekkel. CSOK, babaváró, bármilyen állami támogatás, vagy a 3%-os kedvezményes hitel érdekli? Hívjon bizalommal, mi képben vagyunk az összes lehetőséggel, hogy Ön a legkedvezőbbet kaphassa, ami elérhető!
Budapest IX. kerületében, a Hentes utcában, 66 négyzetméteres, háromszobás, (tulajdoni lapon 2 szobás) teljes körűen felújított tégla lakás eladó. Az ingatlan lifttel felszerelt, rendezett társasház első emeletén található. A lakás minden helyiségében hűtő-fűtő klímák gondoskodnak a kellemes hőérzetről egész évben, fűtési szezonban "H" tarifával, így télen is alacsony a rezsi.
A felújítás során modern nyílászárók, redőnyök, beépített bútorok és teljesen gépesített konyha került kialakításra. A konyha indukciós főzőlappal, légkeveréses sütővel, elszívóval, mosogatógéppel, mosógéppel és fagyasztós hűtővel felszerelt. A két fürdőszobában törölközőszárítós radiátor és igényes burkolat, valamint épített zuhanykabin található.
A bejáraton belépve egy közös térbe, a konyhás nappaliba érkezünk, ahol az étkező és a pihenőtér is kényelmesen elfér. Innen nyílik a két külön szoba.
Az egyik 21 m², udvarra néző, világos és csendes, a másik, 18 m²-es szoba belső udvarra néz, kulturált módon épített háló galériával kialakított, és saját, ablakos fürdőszobával rendelkezik.
A második, szintén zuhanyzós fürdőszoba a nappaliból közelíthető meg, és mellette külön kis tároló helyiség is van a galéria lépcsője alatt. A lakás praktikus elrendezésű, minden helyiség funkcionális, a beépített tárolók pedig kifejezetten jól kihasználják a teret.
A közös költség 14 000 Ft, a rezsi alacsony, így a fenntartása kifejezetten gazdaságos. Az épület 1950 előtt épült, a több mint 3 méteres belmagasság tágas és elegáns térérzetet biztosít. A lakás udvari nézetű, csendes, nyugodt.
A lakás Külső-Ferencvárosban, a Hentes utca és a Gubacsi út közötti, csendes szakaszon található. A környék parkolási zónája ingyenes, és mindig található szabad hely az utcában.
A közlekedés kiváló: a ház előtt megáll a 2B villamos, amellyel néhány megálló alatt elérhető a belváros, a Duna-part vagy a Lurdy Ház. A környéken elérhető a 2A és 51-es villamos, valamint több buszjárat (54, 55, 224, 923), így minden irányban jól megközelíthető.
A közelben több bevásárlási lehetőség is adott a Tesco hipermarket és az Illa Center gyalogosan is elérhető. Az oktatási intézmények közül a Semmelweis Egyetem és a Corvinus is jól megközelíthető. A környék folyamatosan fejlődik, a Duna-parti fejlesztések és a barnamezős beruházások további értéknövekedést vetítenek előre.
Ez az ingatlan tökéletes választás fiatal pároknak, akik modern, kulcsrakész otthont keresnek jó közlekedéssel, két diák vagy fiatal szakember számára, akik külön háló- és fürdőszobát szeretnének, vagy befektetőknek, akik azonnal kiadható, gondozásmentes lakást keresnek.
A lakás tehermentes, gyorsan birtokba vehető.
Ha szeretné megtekinteni, hívjon bizalommal, és előzetes időpont egyeztetést követően nézze meg ezt a lakást!
Igényelje hitelét nálunk! Bank semleges és díjmentes pénzügyi tanácsadással és teljes körű ingyenes hitel előminősítéssel és ügyintézéssel állunk rendelkezésére abban az esetben is, ha nem nálunk vásárol.
A standard banki feltételeknél kedvezőbben, akár a saját bankjánál is, egyedi kedvezményekkel. CSOK, babaváró, bármilyen állami támogatás, vagy a 3%-os kedvezményes hitel érdekli? Hívjon bizalommal, mi képben vagyunk az összes lehetőséggel, hogy Ön a legkedvezőbbet kaphassa, ami elérhető!
Registration Number
DLK066022
Property Details
Sales
for sale
Legal Status
used
Character
apartment
Construction Method
brick
Net Size
66 m²
Gross Size
66 m²
Ceiling Height
345 cm
Orientation
East
Condition
Excellent
Condition of Facade
Good
Year of Construction
1930
Number of Bathrooms
2
Position
courtyard-facing
Common Costs
14203
Elevator
available
Rooms
room
21 m²
open-plan kitchen and living room
19 m²
room
18 m²
bathroom-toilet
4.5 m²
bathroom-toilet
3.5 m²