data_sheet.details.realestate.section.main.otthonstart_flag.label
For sale family house,
DHZ044268
Budapest XXIII. kerület, Millennium telep
84,990,000 Ft
217,000 €
- 120m²
- 4 Rooms
Kétgenerációs, sokoldalúan hasznosítható családi ház Soroksár Millenniumtelepen!
A XXIII. kerület kedvelt és nyugodt részén kínálom megvételre ezt az önálló épületet,
mely kialakításának köszönhetően egyszerre nyújt kényelmes megoldást akár több
generáció együttélésére, illetve kiváló lehetőség befektetési célú hasznosításra is. A
ház két külön lakrészből áll, amelyek igény szerint egybenyithatók, ugyanakkor
teljesen szeparáltan is használható, vagy külön-külön albérletbe kiadható.
Az ingatlan összesen 120 négyzetméter lakóterülettel rendelkezik, és egy 573
négyzetméteres, különlegességként két utcára nyíló telken helyezkedik el. A kertben
önálló garázs, valamint több melléképület is található, amelyek alkalmasak tárolásra,
műhelynek vagy egyéb kiegészítő funkciókra. A nagyobb lakrészbe belépve egy
előszobába érkezünk, ahonnan az étkezővel egybekötött konyha nyílik, amihez
egy praktikus spejz kapcsolódik. A lakrészben helyet kapott egy tágas nappali, két
hálószoba, valamint két fürdőszoba, így egy nagyobb család számára is kényelmes.
A kisebb 37 négyzetméteres lakrész szintén önálló bejárattal rendelkezik, elosztása
előszoba, szoba, konyha és fürdőszoba, ami ideálissá teszi külön élő családtag,
vendéglakás vagy bérbeadás céljára.
A műszaki kialakítás is a praktikumot szolgálja: a nagyobb lakrész fűtése gáz cirkóval
történik, emellett a földszinten elhelyezésre került egy klíma berendezés, így alternatív
fűtési és hűtési lehetőség is adott. A kisebb lakrész klímával fűthető, és a lakrészek
külön mérőórákkal rendelkeznek. Az ingatlanban minden közmű megtalálható.
A házon az utolsó jelentősebb felújítási munkálatok körülbelül tíz évvel ezelőtt történtek,
ekkor korszerű hő-és hangszigetelt műanyag nyílászárók kerültek beépítésre, megújult
a földszinti fürdőszoba, valamint új bojler került beépítésre. A betonfödémes
kialakításnak köszönhetően a padlástér tovább bővíthető, így az ingatlanban komoly
értéknövelő potenciál rejlik. Emellett egy 24 nm-es pince is rendelkezésre áll, ahol
jelenleg a gépészet kapott helyet, de akár műhelyként, tárolóként vagy hobbitérként is
kiválóan hasznosítható.
Az ingatlan tehermentes, rugalmasan birtokba vehető, így ideális választás lehet mindazok
számára, akik egy jól alakítható, több funkcióra alkalmas családi házat keresnek Soroksár
egyik kedvelt részén.
A XXIII. kerület kedvelt és nyugodt részén kínálom megvételre ezt az önálló épületet,
mely kialakításának köszönhetően egyszerre nyújt kényelmes megoldást akár több
generáció együttélésére, illetve kiváló lehetőség befektetési célú hasznosításra is. A
ház két külön lakrészből áll, amelyek igény szerint egybenyithatók, ugyanakkor
teljesen szeparáltan is használható, vagy külön-külön albérletbe kiadható.
Az ingatlan összesen 120 négyzetméter lakóterülettel rendelkezik, és egy 573
négyzetméteres, különlegességként két utcára nyíló telken helyezkedik el. A kertben
önálló garázs, valamint több melléképület is található, amelyek alkalmasak tárolásra,
műhelynek vagy egyéb kiegészítő funkciókra. A nagyobb lakrészbe belépve egy
előszobába érkezünk, ahonnan az étkezővel egybekötött konyha nyílik, amihez
egy praktikus spejz kapcsolódik. A lakrészben helyet kapott egy tágas nappali, két
hálószoba, valamint két fürdőszoba, így egy nagyobb család számára is kényelmes.
A kisebb 37 négyzetméteres lakrész szintén önálló bejárattal rendelkezik, elosztása
előszoba, szoba, konyha és fürdőszoba, ami ideálissá teszi külön élő családtag,
vendéglakás vagy bérbeadás céljára.
A műszaki kialakítás is a praktikumot szolgálja: a nagyobb lakrész fűtése gáz cirkóval
történik, emellett a földszinten elhelyezésre került egy klíma berendezés, így alternatív
fűtési és hűtési lehetőség is adott. A kisebb lakrész klímával fűthető, és a lakrészek
külön mérőórákkal rendelkeznek. Az ingatlanban minden közmű megtalálható.
A házon az utolsó jelentősebb felújítási munkálatok körülbelül tíz évvel ezelőtt történtek,
ekkor korszerű hő-és hangszigetelt műanyag nyílászárók kerültek beépítésre, megújult
a földszinti fürdőszoba, valamint új bojler került beépítésre. A betonfödémes
kialakításnak köszönhetően a padlástér tovább bővíthető, így az ingatlanban komoly
értéknövelő potenciál rejlik. Emellett egy 24 nm-es pince is rendelkezésre áll, ahol
jelenleg a gépészet kapott helyet, de akár műhelyként, tárolóként vagy hobbitérként is
kiválóan hasznosítható.
Az ingatlan tehermentes, rugalmasan birtokba vehető, így ideális választás lehet mindazok
számára, akik egy jól alakítható, több funkcióra alkalmas családi házat keresnek Soroksár
egyik kedvelt részén.
Registration Number
DHZ044268
Property Details
Sales
for sale
Legal Status
used
Character
house
Construction Method
brick
Net Size
120 m²
Gross Size
120 m²
Plot Size
573 m²
Size of Terrace / Balcony
9.8 m²
Heating
Gas circulator
Ceiling Height
283 cm
Number of Levels Within the Property
2
Orientation
South-West
Condition
Good
Condition of Facade
Average
Year of Construction
1910
Number of Bathrooms
3
Position
street-facing
Water
Available
Gas
Available
Electricity
Available
Sewer
Available
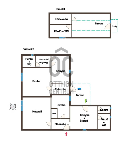
Rooms
entryway
3.86 m²
bathroom-toilet
3.23 m²
open-plan kitchen and dining room
10.57 m²
utility room
3.66 m²
living room
18.02 m²
room
10.93 m²
entryway
3.98 m²
open-plan kitchen and dining room
12.68 m²
bathroom-toilet
3.85 m²
pantry
1.9 m²
staircase
1.13 m²
room
17.63 m²
balcony
1.72 m²
corridor
4.3 m²
bathroom-toilet
5.54 m²
veranda
8.14 m²
room
15.91 m²
Pados - Burján Renáta Zita
Credit Expert