data_sheet.details.realestate.section.main.otthonstart_flag.label
For sale family house,
DHZ035072
Biatorbágy,
90,000,000 Ft
230,000 €
- 116m²
- 3 Rooms




































Modern INDUSZTRIÁLIS stílus a természet ölelésében panorámás otthon Biatorbágy Szarvashegyen
Elbújna a világ elől? Vagy inkább stílusosan újrakezdené egy különleges helyen?
Ez a Biatorbágy Szarvashegy zártkerti részén található egyedi ingatlan nem csupán egy ház hanem egy életforma.
Egy régebbi épület alapjain, teljes újragondolással és felújítással született újjá ez a különleges otthon, ahol indusztriális dizájn találkozik a természet közelségével.
A látszó acél és fa gerendák, a padlótól plafonig érő panorámaablakok és a nagy, napfényes terasz karakteres, mégis otthonos hangulatot teremtenek, ahol minden részlet mögött tudatosság rejlik.
Nincs teljesen kész de épp ez benne a lehetőség! Az új tulajdonos saját ízlésére szabhatja a befejezést, így valóban egyedi otthon születhet.
Műszaki részletek:
Alapos statikai tervezés során az épület kapott egy teljesen új tetőt, kifejezetten ügyelve a látszódó vas és fa gerendák letisztult használatára és a nagy belmagasságban elhelyezett, szinte lebegő galéria látványának fontosságára.
Cserélve lettek a villanyvezetékek, kapott 10 cm kőzetgyapot szigetelést, a 3 rétegű nyílászárók pedig segítik az energiatakarékos működést.
A szennyvíz: 3 m³-es felújított szikkasztóba érkezik.
Vízellátás: 6 db 1 m³-es esővíz-tartály a pincében, professzionális szűrőrendszerrel látja el vizzel a teljes házat.
Nincs vezetékes víz, de a rendszer önellátásra tervezett
Ez az otthon nem azoknak szól, akik minden sarkon boltot keresnek. Ez az ingatlan azoknak való, akik értékelik az intimitást, a függetlenséget és a természet csendjét és közben nem mondanának le a modern élettér kényelméről sem.
Szarvashegy Biatorbágy egyik legkülönlegesebb része: dombos, zöld környezet, kevés szomszéd, madárcsicsergés, és egy csipetnyi szabadság.
Tudta? Egyes kutatások szerint az önellátó vízrendszerek nemcsak fenntarthatóbbak, de a helyes szűréssel sokszor tisztább vizet biztosítanak, mint a közüzemi források.
Olyanoknak, akik valódi otthont keresnek. Nem csak egy házat.
Az ingatlan bizonyos feltételekkel hitelezhető.
Érdekli? Írjon üzenetet vagy kérjen időpontot megtekintésre!
Elbújna a világ elől? Vagy inkább stílusosan újrakezdené egy különleges helyen?
Ez a Biatorbágy Szarvashegy zártkerti részén található egyedi ingatlan nem csupán egy ház hanem egy életforma.
Egy régebbi épület alapjain, teljes újragondolással és felújítással született újjá ez a különleges otthon, ahol indusztriális dizájn találkozik a természet közelségével.
A látszó acél és fa gerendák, a padlótól plafonig érő panorámaablakok és a nagy, napfényes terasz karakteres, mégis otthonos hangulatot teremtenek, ahol minden részlet mögött tudatosság rejlik.
Nincs teljesen kész de épp ez benne a lehetőség! Az új tulajdonos saját ízlésére szabhatja a befejezést, így valóban egyedi otthon születhet.
Műszaki részletek:
Alapos statikai tervezés során az épület kapott egy teljesen új tetőt, kifejezetten ügyelve a látszódó vas és fa gerendák letisztult használatára és a nagy belmagasságban elhelyezett, szinte lebegő galéria látványának fontosságára.
Cserélve lettek a villanyvezetékek, kapott 10 cm kőzetgyapot szigetelést, a 3 rétegű nyílászárók pedig segítik az energiatakarékos működést.
A szennyvíz: 3 m³-es felújított szikkasztóba érkezik.
Vízellátás: 6 db 1 m³-es esővíz-tartály a pincében, professzionális szűrőrendszerrel látja el vizzel a teljes házat.
Nincs vezetékes víz, de a rendszer önellátásra tervezett
Ez az otthon nem azoknak szól, akik minden sarkon boltot keresnek. Ez az ingatlan azoknak való, akik értékelik az intimitást, a függetlenséget és a természet csendjét és közben nem mondanának le a modern élettér kényelméről sem.
Szarvashegy Biatorbágy egyik legkülönlegesebb része: dombos, zöld környezet, kevés szomszéd, madárcsicsergés, és egy csipetnyi szabadság.
Tudta? Egyes kutatások szerint az önellátó vízrendszerek nemcsak fenntarthatóbbak, de a helyes szűréssel sokszor tisztább vizet biztosítanak, mint a közüzemi források.
Olyanoknak, akik valódi otthont keresnek. Nem csak egy házat.
Az ingatlan bizonyos feltételekkel hitelezhető.
Érdekli? Írjon üzenetet vagy kérjen időpontot megtekintésre!
Registration Number
DHZ035072
Property Details
Sales
for sale
Legal Status
used
Character
house
Construction Method
other
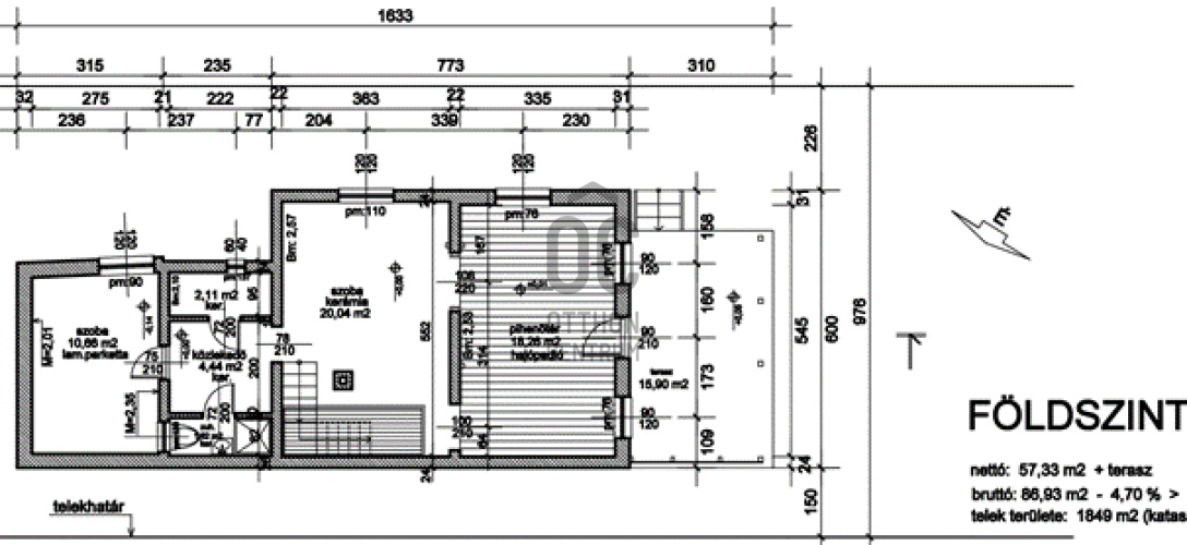
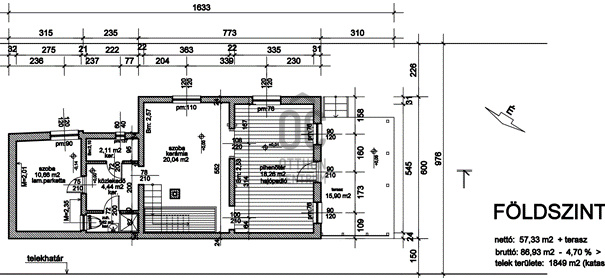
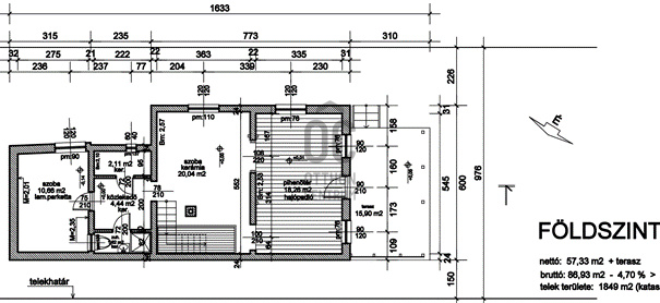
Net Size
116 m²
Gross Size
116 m²
Plot Size
1,848 m²
Size of Terrace / Balcony
16.7 m²
Number of Levels Within the Property
2
Orientation
North-West
View
Other
Condition
Excellent
Condition of Facade
Excellent
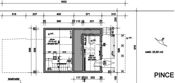
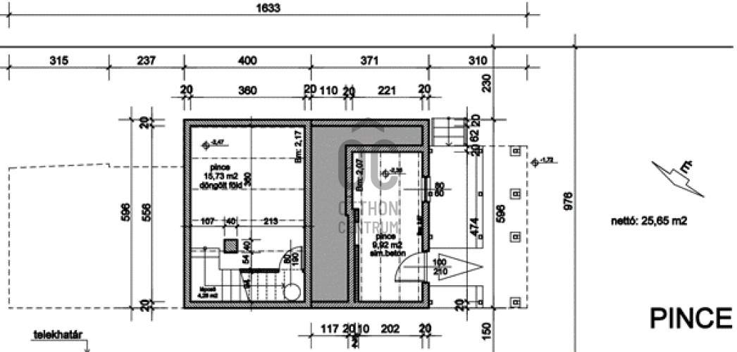
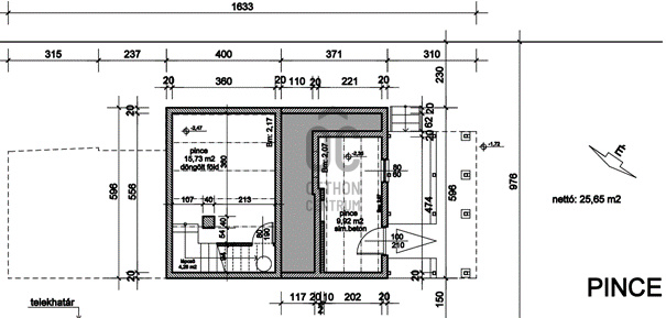
Basement
values.realestate.pince.1
Year of Construction
2024
Number of Bathrooms
1
Electricity
Available
Rooms
cellar
45 m²
room
10.66 m²
corridor
6.5 m²
bathroom-toilet
1.8 m²
open-plan kitchen and living room
46 m²
veranda
16.7 m²
room
8 m²

Bitó István
Credit Expert