390,000,000 Ft
1,029,000 €
- 1,230m²
XX. Önálló Épület ELADÓ
XX. kerület központjában, forgalmas utcáról nyíló, Önálló Épület Eladó.
Telek mérete: 1179nm
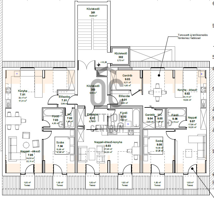
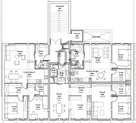
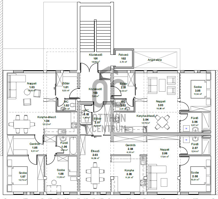
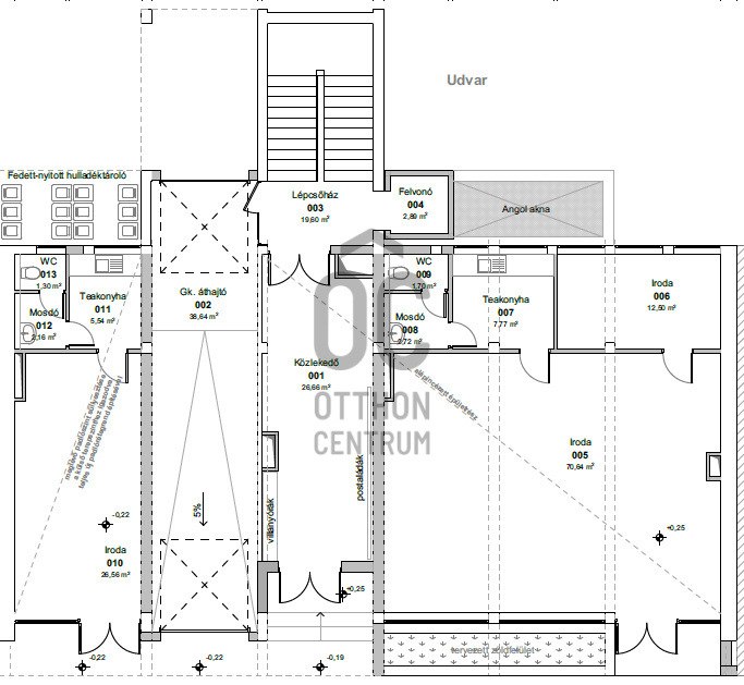
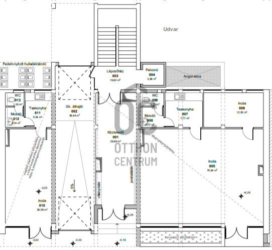
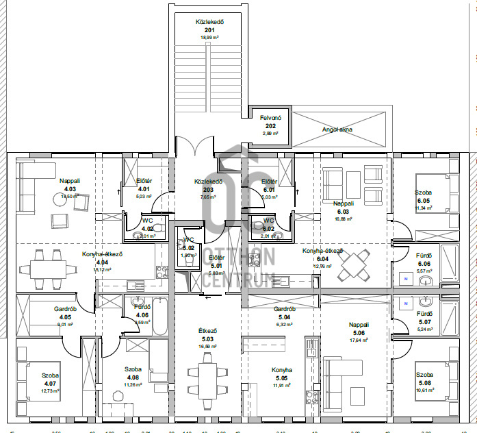
Épület: pince szint, földszint + 2 emelet + tetőtér
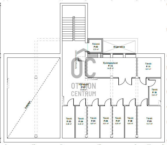
Pince hasznos mérete: 152nm
Földszint hasznos mérete: 218nm
I. és II. emelet hasznos mérete: 235nm
Tetőtér hasznos mérete: 187nm
Lépcsőház mérete ezekben nincs benne
Hátsó melléképület mérete: 198nm
Hasznosítható: 10 lakásos Társasház kocsi beállókkal, Intézmény épület, Szálloda, Iroda, Oktatási Intézmény, Iskola, Óvoda
Hasznosítási javaslat: Társasház, garázzsal, tárolókkal - Építési osztály 9-11 lakásra ad engedélyt
Műszaki jellemzők: száraz masszív pince, megerősített alapozás, tégla falak: épület váza rendben van, tégláig kell csak visszabontani
Ipari árammal is el van látva
Tulajdoni lap szerinti besorolás: Kivett Tanműhely, Udvar
Cég a tulajdonos, az ár nettó ár, fordított áfás
Villany, víz, gáz, csatorna kiépítve
Építési övezet: Vt-H/Ln3
Üres, már nem működik benne semmi, felújítandó az állapot
Lokáció tökéletes, közelben Iskola, Óvoda, Bevásárlási lehetőségek, tömegközlekedés szempontjából is ideális, számtalan busz és villamos megálló van a közelben, megközelíthető bármelyik kerület
Telek mérete: 1179nm
Épület: pince szint, földszint + 2 emelet + tetőtér
Pince hasznos mérete: 152nm
Földszint hasznos mérete: 218nm
I. és II. emelet hasznos mérete: 235nm
Tetőtér hasznos mérete: 187nm
Lépcsőház mérete ezekben nincs benne
Hátsó melléképület mérete: 198nm
Hasznosítható: 10 lakásos Társasház kocsi beállókkal, Intézmény épület, Szálloda, Iroda, Oktatási Intézmény, Iskola, Óvoda
Hasznosítási javaslat: Társasház, garázzsal, tárolókkal - Építési osztály 9-11 lakásra ad engedélyt
Műszaki jellemzők: száraz masszív pince, megerősített alapozás, tégla falak: épület váza rendben van, tégláig kell csak visszabontani
Ipari árammal is el van látva
Tulajdoni lap szerinti besorolás: Kivett Tanműhely, Udvar
Cég a tulajdonos, az ár nettó ár, fordított áfás
Villany, víz, gáz, csatorna kiépítve
Építési övezet: Vt-H/Ln3
Üres, már nem működik benne semmi, felújítandó az állapot
Lokáció tökéletes, közelben Iskola, Óvoda, Bevásárlási lehetőségek, tömegközlekedés szempontjából is ideális, számtalan busz és villamos megálló van a közelben, megközelíthető bármelyik kerület
Registration Number
BI000577
Property Details
Sales
for sale
Character
developmental
Type of Development
Entire building
Subtype of Development
institutional
Net Size
1,230 m²
Plot Size
1,179 m²
Above-Ground Net Size
1,230 m²
Developable Net Size
2,000 m²
Developable Above-Ground Net Size
2,000 m²
Heating
Gas circulator
Ceiling Height
360 cm
Number of Levels Within the Property
3
View
city view
Condition
To be renovated
Condition of Facade
Average
Year of Construction
1975
Condominium Garden
yes
Garage Spaces
15
Water
Available
Gas
Available
Electricity
Available
Sewer
Available
Developable Property
Apartment 1-20 units, Office, Hotel, Guesthouse, Educational, healthcare institution
Visibility
Easily visible from busy main road
Accessibility
Entrance from busy main road
Térmegi László
Credit Expert