60,000,000 Ft
157,000 €
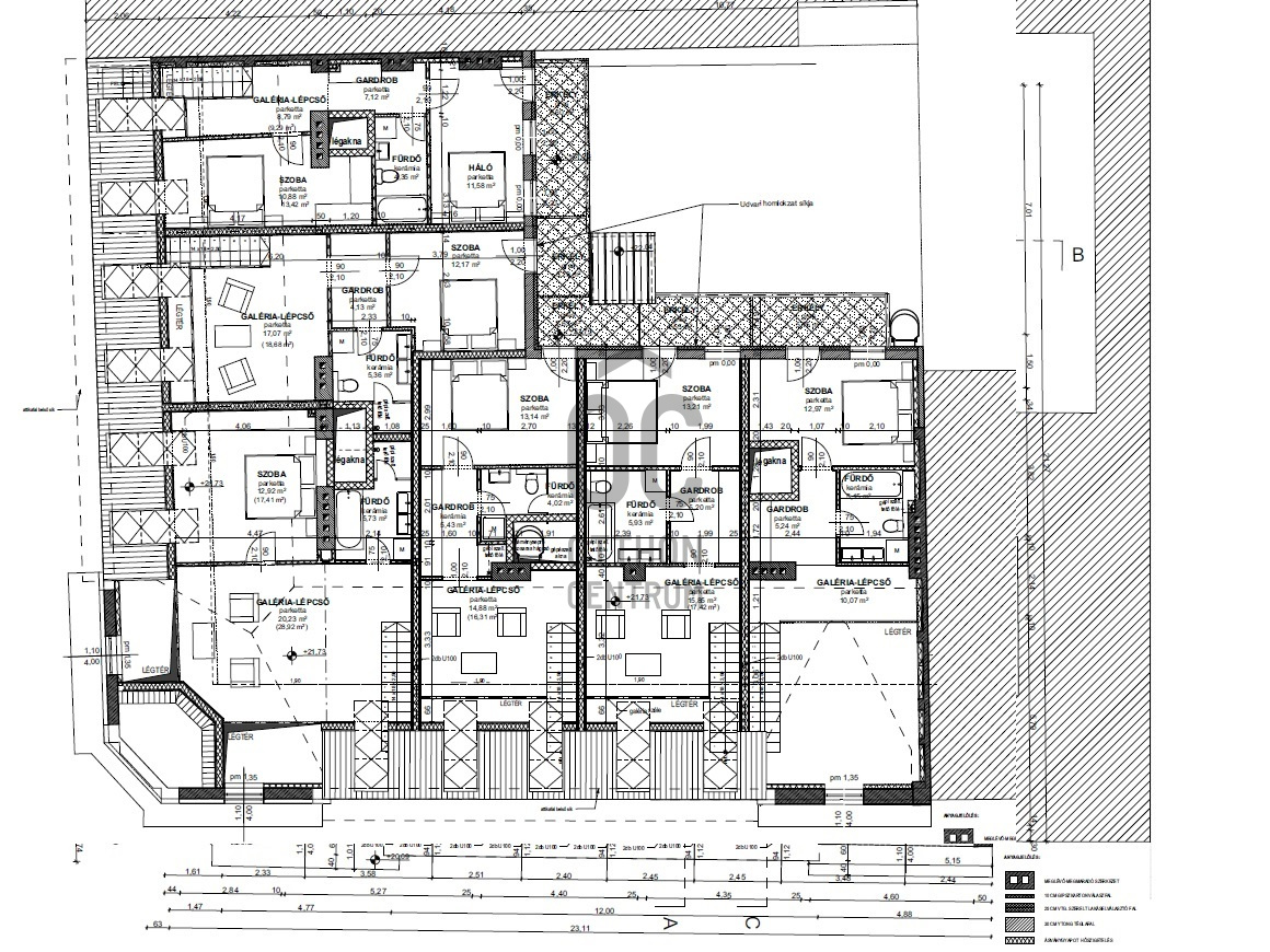
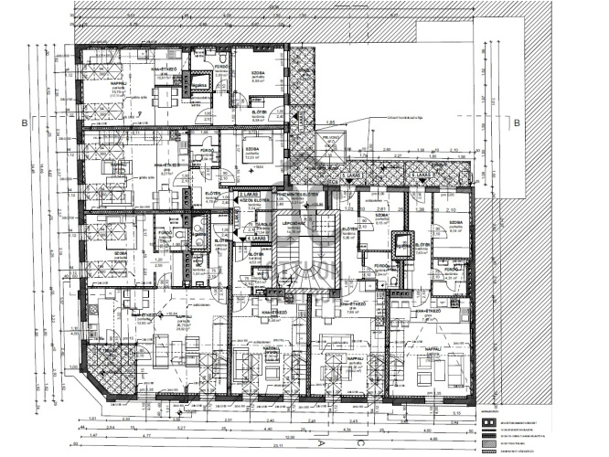
- 566m²
- 4th floor
Építeni vagy építtetni szeretne, kiadás céljából vagy eladásra, akkor ehhez a Bajcsy-Zsilinszky út közelében DNy-i tájolású sarokház tetőtere kiváló alapanyag.
- előkészített projekt eladó (az ár csak a projektcéget és az engedélyes terveket tartalmazza)
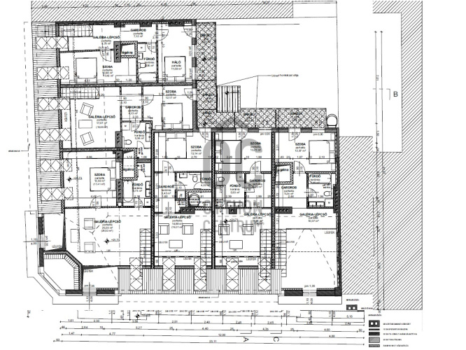
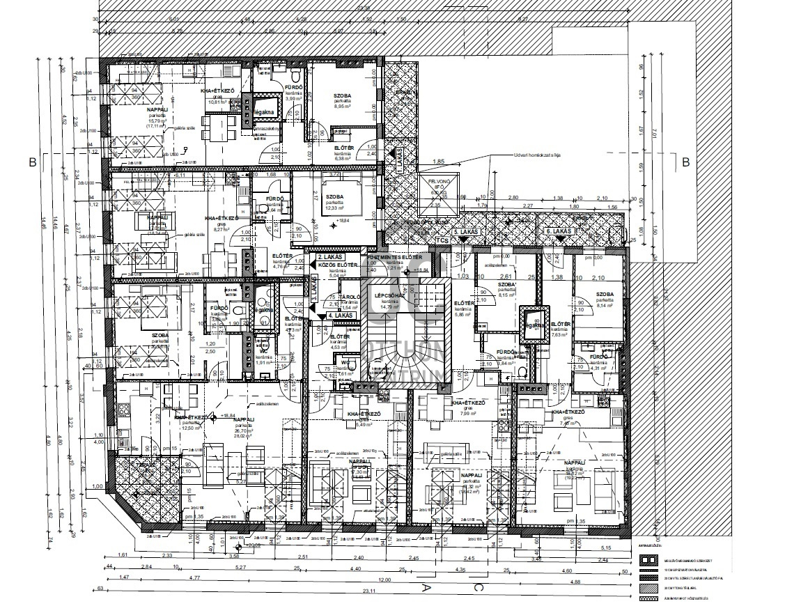
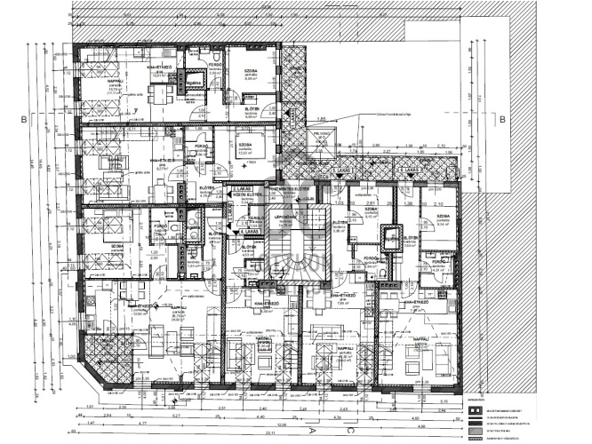
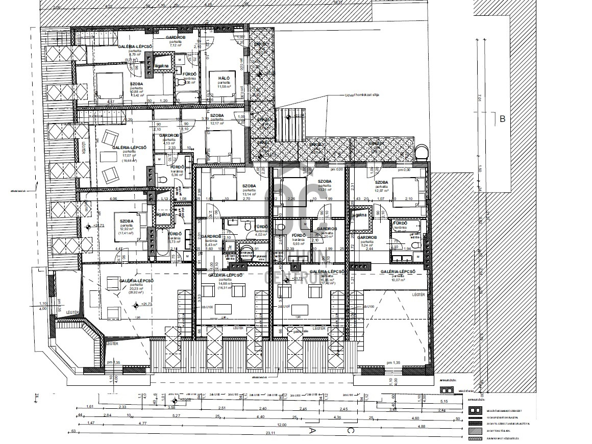
- nettó 566 nm eladható alapterület, 6 db belső kétszintes lakásra osztva
- 3 emeletes épület
- engedélyeztetés utolsó szakaszban
- terveink szerint szeptemberben akár a kivitelezés is elkezdődhet
- társasházzal és a tulajdonosokkal a megállapodás előkészítve
A projektgazda tetőtér beépítésben rutinos, ezért a projekt előkészítése a lehető legmagasabb színvonalon történt. A későbbi kiadás és az eladás kapcsán is remek lehetőségeket kínál.
- előkészített projekt eladó (az ár csak a projektcéget és az engedélyes terveket tartalmazza)
- nettó 566 nm eladható alapterület, 6 db belső kétszintes lakásra osztva
- 3 emeletes épület
- engedélyeztetés utolsó szakaszban
- terveink szerint szeptemberben akár a kivitelezés is elkezdődhet
- társasházzal és a tulajdonosokkal a megállapodás előkészítve
A projektgazda tetőtér beépítésben rutinos, ezért a projekt előkészítése a lehető legmagasabb színvonalon történt. A későbbi kiadás és az eladás kapcsán is remek lehetőségeket kínál.
Registration Number
BI000399
Property Details
Sales
for sale
Character
developmental
Type of Development
Part of building
Subtype of Development
Attic
Net Size
566 m²
Above-Ground Net Size
566 m²
Developable Net Size
566 m²
Developable Above-Ground Net Size
566 m²
Heating
heat pump
Ceiling Height
270 cm
Condition
To be renovated
Condition of Facade
Good
Condition of Staircase
Good
Pongó Miklós
Credit Expert