126,000,000 Ft
327,000 €
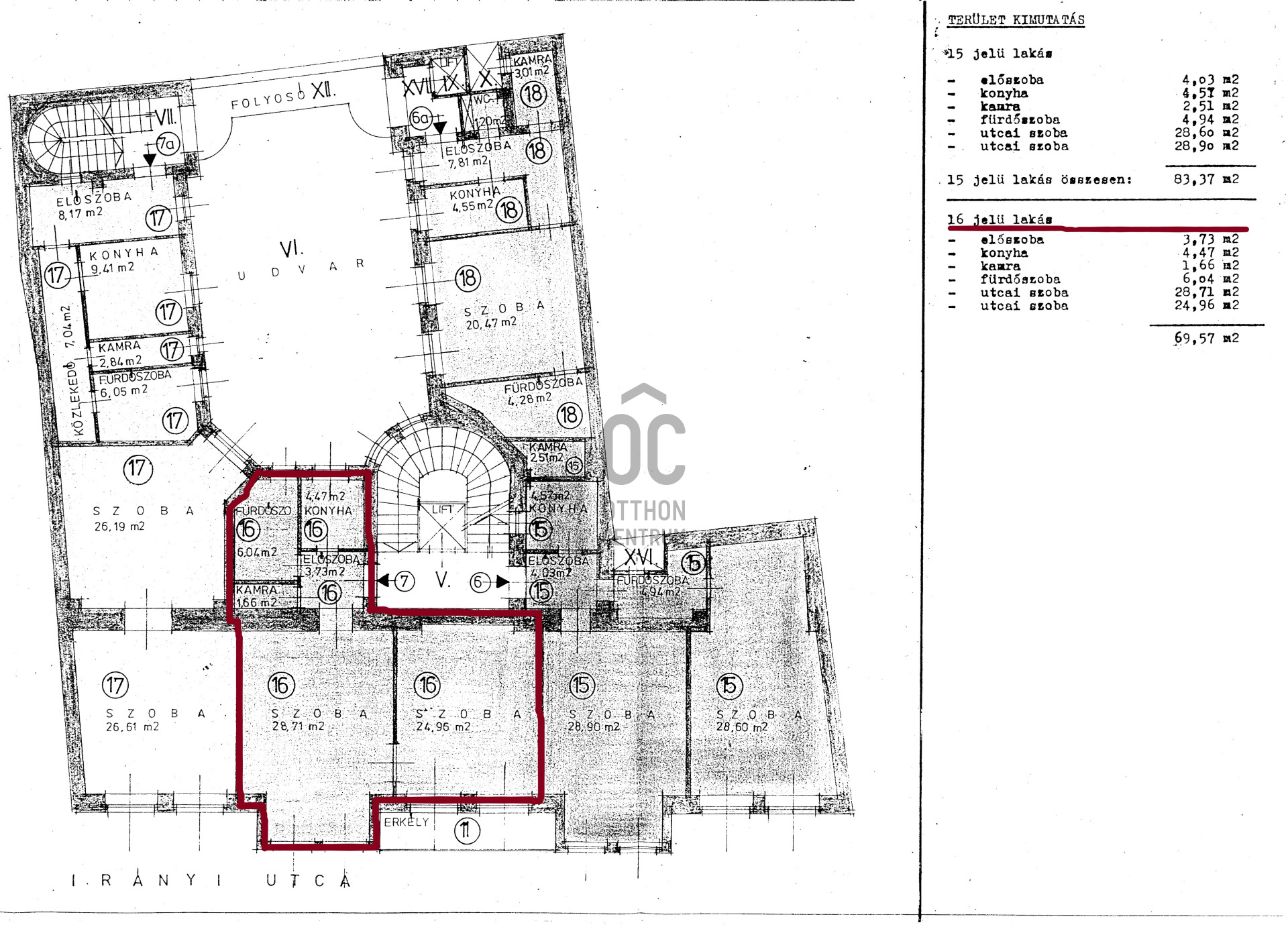
- 70m²
- 2 Rooms
- 2nd floor
Felújítandó lakást keres a belvárosban, közel a Duna-parthoz? Megtalálta!
Eladó Budapest V. kerületében, az Irányi utcában egy gyönyörűen felújított műemlék ház 2. emeletén egy 2 szobás felújítandó lakás. Varázsoljon egy álomotthont, ebből a SZÉP ÉPÜLETBEN LÉVŐ, tágas lakásból és éljen Budapest szívében.
A környék kifejezetten elegáns, a Lechner Ödön által tervezett ház 1 percnyire van a Váci utcától. Az utcában exkluzív boltok, éttermek, és minden más is megtalálható, amelyek tovább növelik a kellemes életérzést.
A 70 m2-es, 2 szobás, Irányi utca egyik legszebb épületében található. Amennyiben saját ízlésére alakítaná következő otthonát vagy befektetési célból vásárolná, ez a számára ideális ingatlan.
Az ingatlanról:
-Az ingatlan a LIFTES ház 2. EMELETÉN található, minden szobájának az ablaka utcára néz.
-Az új gázcirkó, ami a fűtést és a meleg víz előállítására szolgál.
-Az ingatlan per és tehermentes, 1/1-es tulajdonban van
-Az ingatlan állapota felújítandó.
A lakóház:
-A lakóház homlokzata nagyon szép.
-A lakóház körfolyosós
-LIFT VAN!
A környék:
-Kimagaslóan jó tömegközlekedési lehetőség a 3 perc séta távolságra található Ferenciek teréről. 3-as metró és számtalan buszjárat elérhető a megállóból.
-4 perc sétára található a Jane Haining rakpart, ahonnan bármikor gyönyörködhetünk a Duna és a Budai oldal szépségében.
-A lakóház aljában található egy patika, de 5 perc séta távolságon belül, könnyen elérhető nagyobb szupermarket is.
-A környéken és a lakóház közvetlen szomszédságában számos kávézó, étterem és pub is található.
A Lechner Ödön által tervezett és a Grünwald testvérek által kivitelezett, 1911-eben átadott szecessziós épület a korabeli bérházak között luxuskivitelűnek számított. Nemcsak korszerű villanyvilágítással és fürdőszobákkal szerelték fel, de központi porszívó-berendezéssel is. Ez a ház az építész utolsó autentikus műve. Belépve a szürke és sötétzöld Zsolnay csempeborítású előtérbe, két oldalt halványkék virágos stukkók között, oldalt csiszolt tükör négyzetek fokozzák a szépség élményét.
Amennyiben felkeltettem érdeklődését kérem forduljon hozzám bizalommal!
A környék kifejezetten elegáns, a Lechner Ödön által tervezett ház 1 percnyire van a Váci utcától. Az utcában exkluzív boltok, éttermek, és minden más is megtalálható, amelyek tovább növelik a kellemes életérzést.
A 70 m2-es, 2 szobás, Irányi utca egyik legszebb épületében található. Amennyiben saját ízlésére alakítaná következő otthonát vagy befektetési célból vásárolná, ez a számára ideális ingatlan.
Az ingatlanról:
-Az ingatlan a LIFTES ház 2. EMELETÉN található, minden szobájának az ablaka utcára néz.
-Az új gázcirkó, ami a fűtést és a meleg víz előállítására szolgál.
-Az ingatlan per és tehermentes, 1/1-es tulajdonban van
-Az ingatlan állapota felújítandó.
A lakóház:
-A lakóház homlokzata nagyon szép.
-A lakóház körfolyosós
-LIFT VAN!
A környék:
-Kimagaslóan jó tömegközlekedési lehetőség a 3 perc séta távolságra található Ferenciek teréről. 3-as metró és számtalan buszjárat elérhető a megállóból.
-4 perc sétára található a Jane Haining rakpart, ahonnan bármikor gyönyörködhetünk a Duna és a Budai oldal szépségében.
-A lakóház aljában található egy patika, de 5 perc séta távolságon belül, könnyen elérhető nagyobb szupermarket is.
-A környéken és a lakóház közvetlen szomszédságában számos kávézó, étterem és pub is található.
A Lechner Ödön által tervezett és a Grünwald testvérek által kivitelezett, 1911-eben átadott szecessziós épület a korabeli bérházak között luxuskivitelűnek számított. Nemcsak korszerű villanyvilágítással és fürdőszobákkal szerelték fel, de központi porszívó-berendezéssel is. Ez a ház az építész utolsó autentikus műve. Belépve a szürke és sötétzöld Zsolnay csempeborítású előtérbe, két oldalt halványkék virágos stukkók között, oldalt csiszolt tükör négyzetek fokozzák a szépség élményét.
Amennyiben felkeltettem érdeklődését kérem forduljon hozzám bizalommal!
Registration Number
H511753
Property Details
Sales
for sale
Legal Status
used
Character
apartment
Construction Method
brick
Net Size
70 m²
Gross Size
70 m²
Heating
Gas circulator
Ceiling Height
350 cm
Orientation
North-West
Staircase Type
circular corridor
Condition
To be renovated
Condition of Facade
Excellent
Condition of Staircase
Good
Basement
Shared
Neighborhood
quiet, good transport, central
Year of Construction
1900
Number of Bathrooms
1
Position
street-facing
Common Costs
25000
Water
Available
Gas
Available
Electricity
Available
Sewer
Available
Elevator
available
Storage
Independent
Rooms
living room
28.71 m²
bedroom
24.96 m²
bathroom-toilet
6.04 m²
entryway
3.73 m²
kitchen
4.47 m²
pantry
1.66 m²
Pongó Miklós
Credit Expert