Igényes otthonok Zuglóban
Zugló új városnegyedének központjában kimagasló műszaki felszereltséggel rendelkező lakások várják új tulajdonosaikat.
Az ingatlanok modern kialakítása, látványos homlokzata, valamint a hőszivattyús fűtésrendszerük által biztosított alacsony rezsiköltség ideális választást jelentenek igényes, tudatos vásárlók és ingatlanbefektetők számára.
Az épületek között zöld parkok és sétálóutcák kerülnek kialakításra, a beruházás átadása pedig 2026 első negyedévében várható.
LOKÁCIÓ
A társasház közvetlenül az Uzsoki utcai kórház mögött található, a XIV. kerület egyik fő közlekedési csomópontjánál. A belvárosból és az agglomerációból egyaránt könnyen megközelíthető. Az Erzsébet királyné útján több buszjárat biztosít közvetlen kapcsolatot a belvárossal, míg a Mexikói úti M1 metróállomás gyalog mindössze 5 percre helyezkedik el. Az épület közelében található az M3 autópálya, amely az M0 körgyűrűvel összeköttetést biztosít, megkönnyítve az utazást.
AZ ÉPÜLET JELLEMZŐI
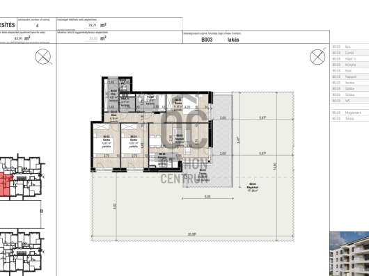
A társasház 44 lakásból áll, amelyekhez mélygarázsban elhelyezett tárolók és parkolóhelyek tartoznak.
Nyílászárók és bejárati ajtók:
A főbejárati ajtók szürke porszórt alumínium szerkezetűek, hő- és biztonságtechnikai szempontoknak megfelelő hőszigetelt üvegezéssel. A homlokzati nyílászárók 6 légkamrás Deco típusú, 3 rétegű hőszigetelő üvegezéssel rendelkeznek, vakolható rejtett redőnydobozzal és távirányítóval vezérelhető elektromos alumínium redőnnyel.
Lakások jellemzői:
A földszinti lakásokhoz terasz és kert is tartozik. Az épületekben födémbe integrált mennyezeti hűtő-fűtő rendszert építettek ki, amely egyedi hőmennyiség-mérőkkel szabályozható.
Közösségi terek és zöld környezet:
A belső udvar tájépítész által megtervezett, pihenésre alkalmas zöld környezetet kínál, ahol ültetett fák árnyékolnak, és a szezonális növények díszítik a területet. A locsolás automata öntözőrendszerrel biztosított.
MŰSZAKI MEGOLDÁSOK
Fűtés és hűtés:
Az épület energiatakarékos LG/SAMSUNG vagy azzal egyenértékű levegős hőszivattyús rendszert használ, mennyezeti fűtés-hűtés kialakítással.
Az új lakók modern, környezetbarát megoldásokkal és kellemes zöld környezetben találhatják meg álomotthonukat.
Az ingatlanok modern kialakítása, látványos homlokzata, valamint a hőszivattyús fűtésrendszerük által biztosított alacsony rezsiköltség ideális választást jelentenek igényes, tudatos vásárlók és ingatlanbefektetők számára.
Az épületek között zöld parkok és sétálóutcák kerülnek kialakításra, a beruházás átadása pedig 2026 első negyedévében várható.
LOKÁCIÓ
A társasház közvetlenül az Uzsoki utcai kórház mögött található, a XIV. kerület egyik fő közlekedési csomópontjánál. A belvárosból és az agglomerációból egyaránt könnyen megközelíthető. Az Erzsébet királyné útján több buszjárat biztosít közvetlen kapcsolatot a belvárossal, míg a Mexikói úti M1 metróállomás gyalog mindössze 5 percre helyezkedik el. Az épület közelében található az M3 autópálya, amely az M0 körgyűrűvel összeköttetést biztosít, megkönnyítve az utazást.
AZ ÉPÜLET JELLEMZŐI
A társasház 44 lakásból áll, amelyekhez mélygarázsban elhelyezett tárolók és parkolóhelyek tartoznak.
Nyílászárók és bejárati ajtók:
A főbejárati ajtók szürke porszórt alumínium szerkezetűek, hő- és biztonságtechnikai szempontoknak megfelelő hőszigetelt üvegezéssel. A homlokzati nyílászárók 6 légkamrás Deco típusú, 3 rétegű hőszigetelő üvegezéssel rendelkeznek, vakolható rejtett redőnydobozzal és távirányítóval vezérelhető elektromos alumínium redőnnyel.
Lakások jellemzői:
A földszinti lakásokhoz terasz és kert is tartozik. Az épületekben födémbe integrált mennyezeti hűtő-fűtő rendszert építettek ki, amely egyedi hőmennyiség-mérőkkel szabályozható.
Közösségi terek és zöld környezet:
A belső udvar tájépítész által megtervezett, pihenésre alkalmas zöld környezetet kínál, ahol ültetett fák árnyékolnak, és a szezonális növények díszítik a területet. A locsolás automata öntözőrendszerrel biztosított.
MŰSZAKI MEGOLDÁSOK
Fűtés és hűtés:
Az épület energiatakarékos LG/SAMSUNG vagy azzal egyenértékű levegős hőszivattyús rendszert használ, mennyezeti fűtés-hűtés kialakítással.
Az új lakók modern, környezetbarát megoldásokkal és kellemes zöld környezetben találhatják meg álomotthonukat.