Fedezze fel álmai lakását a belvárosban!

Megvételre kínálok egy olyan otthont, ahol a design, a kényelem és a funkcionalítás tökéletes harmóniában van. A Mártírok úti társasházban várja Önt álmai lakása, amely minden igényt kielégít. A legjobb minőségű anyagok felhasználásával és precíz kivitelezéssel épül.

GALERI társasház Zalaegerszeg belvárosában, csendes lakóövezetben épül, három emeletével mindössze 14 lakásnak, két földszinti üzlethelyiségnek nyújtva tökéletes helyszínt. Modern tervezésének és praktikus kialakításának köszönhetően az álmaik otthonát keresőknek és a befektetőknek is ideális választás!

A társasház további főbb jellemzői:
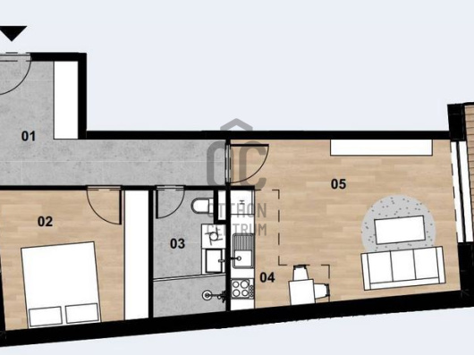
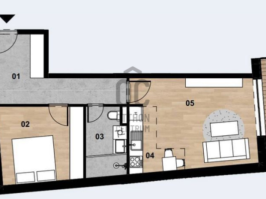
- 32-115 négyzetméter közötti, alacsony energiaigényű, teraszos lakások
- Leier LKF kéregelemmel készülő vasbeton falszerkezet
-3 rétegű hőszigetelt üvegezésű műanyag ablakok és erkélyajtók, lakások bejárati ajtaja acélborítású, biztonsági ajtó
- lift
- extra hő- és hangszigetelt falazatok, födémek
- fűtés: lakás -termosztát vezérléssel ellátott egyedileg mért házközponti levegő- víz hőszivattyús rendszer, padlófűtés hőleadással
- hűtés: lakás -termosztát vezérléssel ellátott egyedileg mért házközponti levegő- víz hőszivattyús rendszer,magasfali fan-coil hűtéssel

További információért keressen bizalommal!



Igény esetén gépkocsi beálló vásárolható. Várható átadás: 2026. június 01.

Properties in the Project

for sale new construction apartment

Index image
data_sheet.details.realestate.section.main.otthonstart_flag.label
4

for sale new construction apartment

Index image
data_sheet.details.realestate.section.main.otthonstart_flag.label
5

for sale new construction apartment

Index image
data_sheet.details.realestate.section.main.otthonstart_flag.label
5

for sale new construction apartment

Index image
data_sheet.details.realestate.section.main.otthonstart_flag.label
5

for sale new construction apartment

Index image
data_sheet.details.realestate.section.main.otthonstart_flag.label
4

for sale new construction apartment

Index image
data_sheet.details.realestate.section.main.otthonstart_flag.label
5

for sale new construction apartment

Index image
data_sheet.details.realestate.section.main.otthonstart_flag.label
4

for sale new construction apartment

Index image
data_sheet.details.realestate.section.main.otthonstart_flag.label
5

for sale new construction apartment

Index image
data_sheet.details.realestate.section.main.otthonstart_flag.label
5

for sale new construction apartment

Index image
data_sheet.details.realestate.section.main.otthonstart_flag.label
5

for sale new construction apartment

Index image
5

Newly Built Homes in the Area

Galeri

Index image
data_sheet.details.realestate.section.main.otthonstart_flag.label
11

sMART-27

Index image
data_sheet.details.realestate.section.main.otthonstart_flag.label
3