Ajka-Bakonygyepesen 9db új építésű sorház eladó!
Ajka-Bakonygyepesen 9db új építésű sorház Eladó!
Sikeresen működő, tapasztalt, megbízható kivitelezőtől eladó sorház.
Építkezés folyamatban, várható kulcsrakész kivitelezés, átadás 2025. harmadik negyedév.
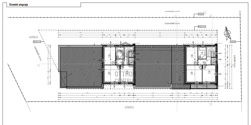
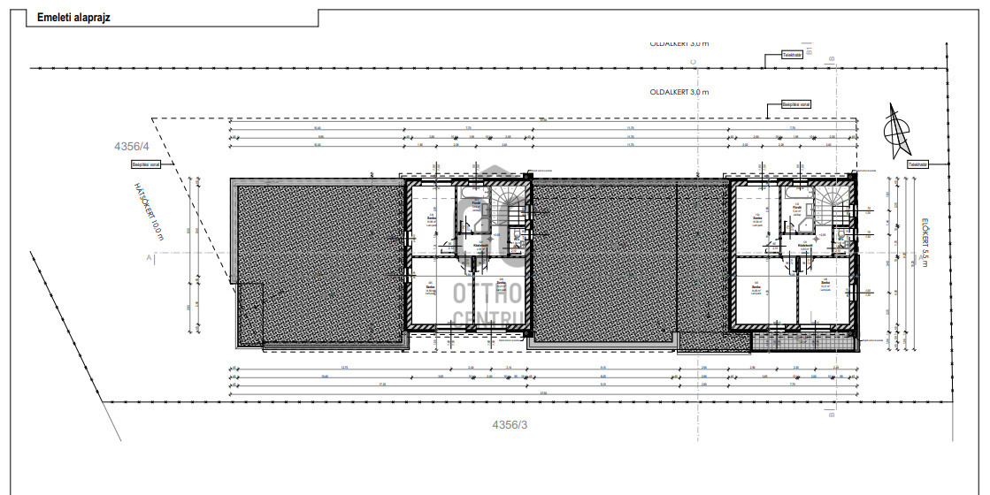
Lakások műszaki tartalma:
- az épület alápincézetlen 1 illetve 2 szintes lapostetős épület.
- az épület vasalt sávalapokkal lesz alapozva. Az alapok felett lábazati fal készül 30 cm
szélességgel zsalukőből amelyre kifut a vasalt aljzat, betonhálóval. A vasalt aljzatbeton alatt
kavics feltöltés készül, geotextíliára.
- A 1- és 2 szintes épület vb pillérjei, betonfalai szerkezeti méretű oszlopokkal, vasalva,
zsaluzva, illetve esetenként zsalukőből kialakítva.
- Főfalak: 25 és 30 cm-es Porotherm N+F falazattal készülnek.
- Lakáselválasztó falak: Leiertherm 25 cm-es dupla falazat, hangszigeteléssel.
- Áthidalók: monolit és kerámia áthidalók.
- Födém: monolit vasbeton lemezek, szükséges áttörésekkel és attikaképzésekkel.
- Lépcső: monolit vasbeton lépcső amely főfalakra és a födémekre támaszkodik fel.
- Válaszfalak: Leier 10/50 cm-es válaszfaltéglából készülnek.
- Korlátok: a külső erkélykorlátok saválló acél szerkezetek, illetve biztonsági üvegkorlátok
minimum 95 cm magassággal, a kiviteli és a látványterveknek megfelelően. A belső korlátok
saválló acél szerkezetek illetve biztonsági üvegkorlátok.
Bővebb műszaki tartalomról érdeklődjön a megadott elérhetőségeken!
Amennyiben Ön egy igényes ingatlant, kíván vásárolni gyönyörű környezetben, hívjon bizalommal, segítek a gyors, pontos ügyintézésben!
Irodánk teljes körű hitel-, babaváró és CSOK ügyintézéssel, biztosítással, energetikai tanúsítvány készítéssel, valamint megbízható ügyvédi háttérrel segíti ügyfeleit.
Valósítsa meg álmai otthonát velünk!
Sikeresen működő, tapasztalt, megbízható kivitelezőtől eladó sorház.
Építkezés folyamatban, várható kulcsrakész kivitelezés, átadás 2025. harmadik negyedév.
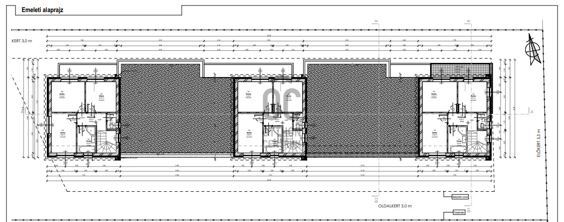
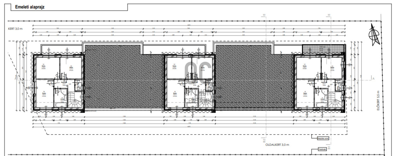
Lakások műszaki tartalma:
- az épület alápincézetlen 1 illetve 2 szintes lapostetős épület.
- az épület vasalt sávalapokkal lesz alapozva. Az alapok felett lábazati fal készül 30 cm
szélességgel zsalukőből amelyre kifut a vasalt aljzat, betonhálóval. A vasalt aljzatbeton alatt
kavics feltöltés készül, geotextíliára.
- A 1- és 2 szintes épület vb pillérjei, betonfalai szerkezeti méretű oszlopokkal, vasalva,
zsaluzva, illetve esetenként zsalukőből kialakítva.
- Főfalak: 25 és 30 cm-es Porotherm N+F falazattal készülnek.
- Lakáselválasztó falak: Leiertherm 25 cm-es dupla falazat, hangszigeteléssel.
- Áthidalók: monolit és kerámia áthidalók.
- Födém: monolit vasbeton lemezek, szükséges áttörésekkel és attikaképzésekkel.
- Lépcső: monolit vasbeton lépcső amely főfalakra és a födémekre támaszkodik fel.
- Válaszfalak: Leier 10/50 cm-es válaszfaltéglából készülnek.
- Korlátok: a külső erkélykorlátok saválló acél szerkezetek, illetve biztonsági üvegkorlátok
minimum 95 cm magassággal, a kiviteli és a látványterveknek megfelelően. A belső korlátok
saválló acél szerkezetek illetve biztonsági üvegkorlátok.
Bővebb műszaki tartalomról érdeklődjön a megadott elérhetőségeken!
Amennyiben Ön egy igényes ingatlant, kíván vásárolni gyönyörű környezetben, hívjon bizalommal, segítek a gyors, pontos ügyintézésben!
Irodánk teljes körű hitel-, babaváró és CSOK ügyintézéssel, biztosítással, energetikai tanúsítvány készítéssel, valamint megbízható ügyvédi háttérrel segíti ügyfeleit.
Valósítsa meg álmai otthonát velünk!