Modern lakópark kertvárosi környezetben

Igényes, modern tervezésű tárasházi lakások foglalhatók Egerben, Felnémeten. Az első társasház építése 2023. április 10-én kezdődik és 2023. október 31-én lesz átvehető. Míg a másik építése 2023. szeptember 1-én kezdődik és 2024. március 31-én vehetik birtokba az új tulajdonosok.
A falak 30-as Wienerberger téglából épülnek, majd 10 cm-es szigetelést kapnak. A fűtésről hőszivattyú-rendszer gondoskodik, valamint egy-egy hűtő-fűtő inverteres klímát is tartalmaz az ár szintenként.
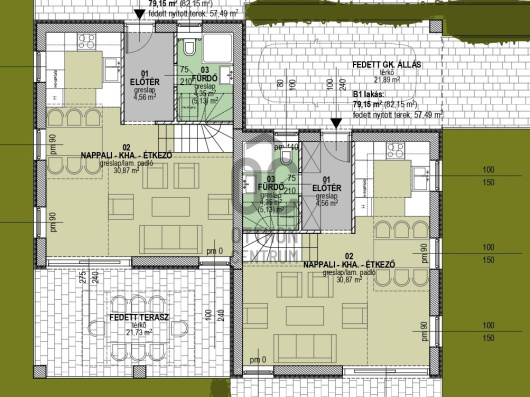
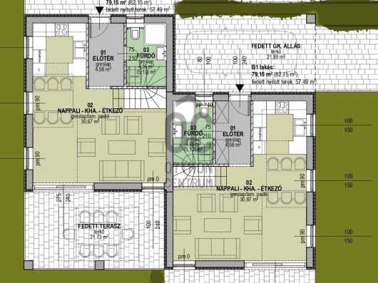
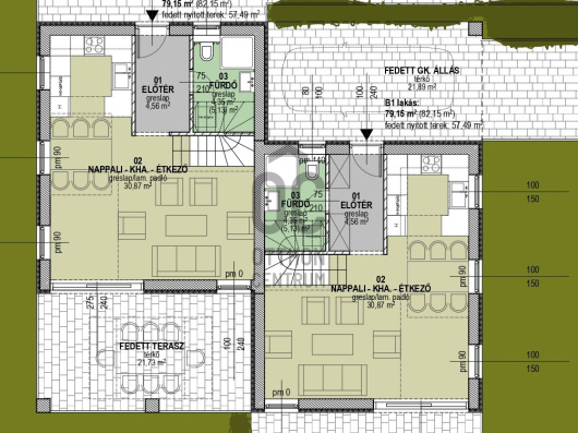
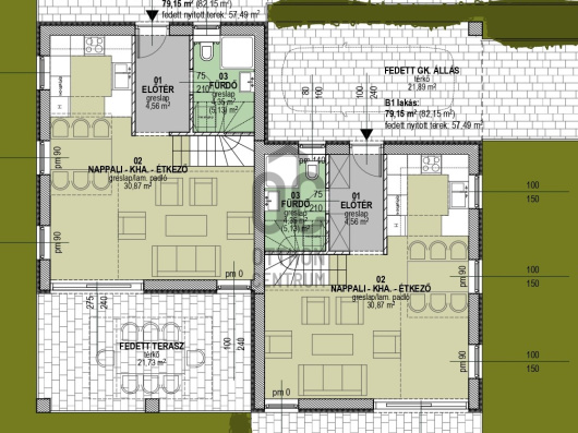
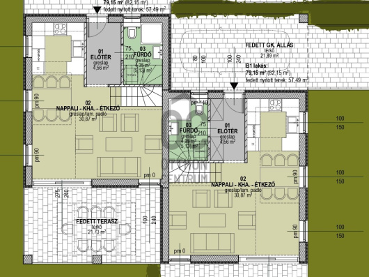
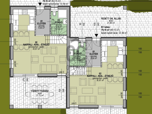
Hideg-, meleg-burkolatok: elszámolás alapja a bolti kiskereskedelmi bruttó listaár, melynek összegét a folyamatos áremelkedések okán az adásvétel napján kerül aktualizálásra. Az előtér, konyha, étkező és nappali rész valamint a fürdőszoba kerámia burkolatot kap, míg a szobák laminált parkettával lesznek burkolva.
Főbejárati- és ikerházanként a garázskapu: Hörmann típusú automatikával és motorral, a kerítés stílusában, lakatos szerkezetből , motoros mozgatású, 1db távirányító lakásonként. További távirányítók igény szerint vásárolható ráhangolással 11.000.- Ft/db áron.
Az épület 3 rétegű, magas minőségű nyílászárókat kap.
Mindegyik lakáshoz tartozik terasz valamint loggia. Továbbá kötelezően vásárolandó nyitott autóbeálló térkő aljzattal ellátva. Az épületeket térköves járda veszi körül.

Properties in the Project

for sale new construction semi-detached house

Index image
data_sheet.details.realestate.section.main.otthonstart_flag.label
6

for sale new construction semi-detached house

Index image
data_sheet.details.realestate.section.main.otthonstart_flag.label
5

for sale new construction semi-detached house

Index image
data_sheet.details.realestate.section.main.otthonstart_flag.label
5

for sale new construction semi-detached house

Index image
data_sheet.details.realestate.section.main.otthonstart_flag.label
5

for sale new construction semi-detached house

Index image
data_sheet.details.realestate.section.main.otthonstart_flag.label
5

for sale new construction semi-detached house

Index image
data_sheet.details.realestate.section.main.otthonstart_flag.label
5

for sale new construction semi-detached house

Index image
data_sheet.details.realestate.section.main.otthonstart_flag.label
5

for sale new construction semi-detached house

Index image
data_sheet.details.realestate.section.main.otthonstart_flag.label
5

Newly Built Homes in the Area

Modern lakópark kertvárosi környezetben

Index image
data_sheet.details.realestate.section.main.otthonstart_flag.label
8