Kőszegen új építésű A+ kategóriás családi ház elad
UTOLSÓ SZABADONÁLLÓ CSALÁDI HÁZ !
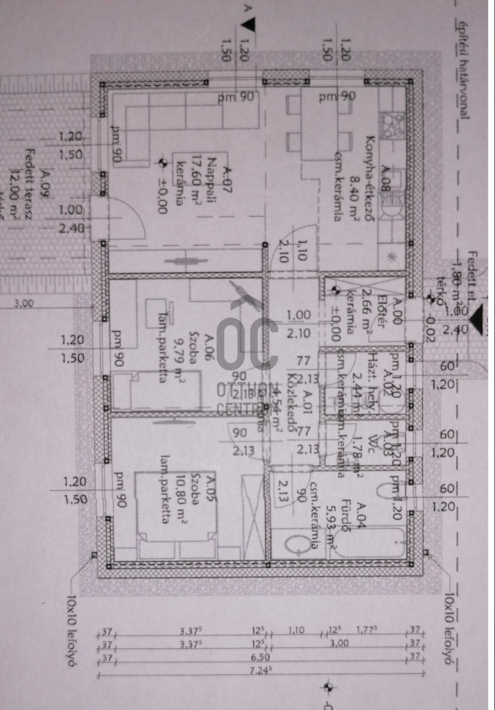
Kőszegen a Borostyánkő lakóparkban eladó fémvázas, könnyűszerkezetes családi ház 440 nm-es önálló helyrajzi számú telken.
A település klímája szubalpin, egyedülállóan az országban. Kőszeg infrastruktúrája kiváló, bölcsőde, óvoda, általános és középiskola egyaránt rendelkezésre áll a családok számára.
Határváros révén 20 km-en belül ausztriai autópálya és az M86 gyorsforgalmi útra csatlakozás teszi könnyen elérhetővé.
Kőszeg történelmi múltján kívül turistaútvonalai, a környéken lévő rendezvények, programok miatt népszerű az idelátogató turisták körében. Munkalehetőséget a közeli városok (Szombathely, Bük, Sárvár), illetve az osztrák munkaadók biztosítanak.
A telkek saját úttal rendelkeznek, átmenő forgalom nincs az utcában. Fekvésük miatt örök-panorámás kilátással rendelkeznek a telkek a Kőszegi hegységre.
Közművek közül víz, csatorna, villany áll rendelkezésre.
Az ingatlanok fémvázas, könnyűszerkezetes technológiával épülnek, kívülről 20 cm-es nikecellel burkolva.A tető fémlemezes fedésű cellulóz alapú öko fújt födém szigeteléssel.
Nyílászárók prémium minőségű 3 légkamrás antracit szürke műanyag ablakok. Fűtése hőtükrös, modern infra padlófűtés, szabályozással.
A meleg víz-ellátásról Ariston villanybojler gondoskodik.
A hirdetési ár tartalmazza: telekár, szaniterek, lámpák-kapcsolók-dugaljak ,burkolatokat.
Nappaliban split klíma és szilárd tüzelésű kandalló kiépítéséhez kémény áll a rendelkezésre.
CSOK és egyéb hiteltermékek igénybevétele lehetséges!
Kőszegen a Borostyánkő lakóparkban eladó fémvázas, könnyűszerkezetes családi ház 440 nm-es önálló helyrajzi számú telken.
A település klímája szubalpin, egyedülállóan az országban. Kőszeg infrastruktúrája kiváló, bölcsőde, óvoda, általános és középiskola egyaránt rendelkezésre áll a családok számára.
Határváros révén 20 km-en belül ausztriai autópálya és az M86 gyorsforgalmi útra csatlakozás teszi könnyen elérhetővé.
Kőszeg történelmi múltján kívül turistaútvonalai, a környéken lévő rendezvények, programok miatt népszerű az idelátogató turisták körében. Munkalehetőséget a közeli városok (Szombathely, Bük, Sárvár), illetve az osztrák munkaadók biztosítanak.
A telkek saját úttal rendelkeznek, átmenő forgalom nincs az utcában. Fekvésük miatt örök-panorámás kilátással rendelkeznek a telkek a Kőszegi hegységre.
Közművek közül víz, csatorna, villany áll rendelkezésre.
Az ingatlanok fémvázas, könnyűszerkezetes technológiával épülnek, kívülről 20 cm-es nikecellel burkolva.A tető fémlemezes fedésű cellulóz alapú öko fújt födém szigeteléssel.
Nyílászárók prémium minőségű 3 légkamrás antracit szürke műanyag ablakok. Fűtése hőtükrös, modern infra padlófűtés, szabályozással.
A meleg víz-ellátásról Ariston villanybojler gondoskodik.
A hirdetési ár tartalmazza: telekár, szaniterek, lámpák-kapcsolók-dugaljak ,burkolatokat.
Nappaliban split klíma és szilárd tüzelésű kandalló kiépítéséhez kémény áll a rendelkezésre.
CSOK és egyéb hiteltermékek igénybevétele lehetséges!


