135 000 000 Ft
357 000 €
- 252,6m²
Fő út mellett, jól megközelíthető helyen üzlethelyiség eladó
Frekventált helyen, korábban autó- és motor-szalonként működő üzlethelyiség várja új tulajdonosát.
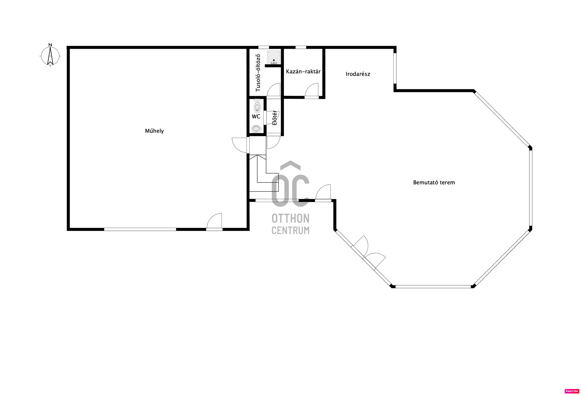
Az épület szigetelt, LINDAB szerkezetű csarnok.
Az épület fűtése gázkazánnal megoldott, a bemutató terem részen padló fűtéssel, a műhely részen radiátoros fűtéssel.
A nyári melegebb időszak klímával hűsíthető a bemutató teremnél.
A műhely 2 beállásos, egyik szerelőaknás, ipari árammal, 100 m2 alapterületű.
Menjünk, nézzük meg ezt a nem mindennapi ajánlatot!
Teljes körű pénzügyi megoldások ügyintézése díjmentesen.
Minden élethelyzetre végzünk pénzügyi elemzést - ha vásárolni szeretne, segítünk, hogy ezt a legjobb feltételek mellett tegye; ha eladni szeretné ingatlanát, nézzük meg, hátha érdemes meglévő hitelét átváltani.
Keressen bizalommal, szakértők vagyunk!
Az épület szigetelt, LINDAB szerkezetű csarnok.
Az épület fűtése gázkazánnal megoldott, a bemutató terem részen padló fűtéssel, a műhely részen radiátoros fűtéssel.
A nyári melegebb időszak klímával hűsíthető a bemutató teremnél.
A műhely 2 beállásos, egyik szerelőaknás, ipari árammal, 100 m2 alapterületű.
Menjünk, nézzük meg ezt a nem mindennapi ajánlatot!
Teljes körű pénzügyi megoldások ügyintézése díjmentesen.
Minden élethelyzetre végzünk pénzügyi elemzést - ha vásárolni szeretne, segítünk, hogy ezt a legjobb feltételek mellett tegye; ha eladni szeretné ingatlanát, nézzük meg, hátha érdemes meglévő hitelét átváltani.
Keressen bizalommal, szakértők vagyunk!
Regisztrációs szám
UZ019328
Az ingatlan adatai
Értékesités
eladó
Jogi státusz
használt
Jelleg
üzleti célú
Típus
teljes épület
Építési mód
könnyűszerkezetes
Méret
252,6 m²
Telek méret
1 316 m²
Föld feletti nettó méret
252 m²
Fűtés
Gáz cirkó
Belmagasság
495 cm
Állapot
Jó
Homlokzat állapota
Jó
Építés éve
1995
Víz
Van
Gáz
Van
Villany
Van
Csatorna
Van
Lehetséges funkciók
iroda, iroda és bemutatóterem, vagy üzlet, iroda és raktár, bemutatóterem, bemutatóterem és szervíz, vagy raktár, ipari csarnok vagy raktár, mezőgazdasági telephely
Láthatóság
Forgalmas főútról jól látható
Megközelíthetőseg
Mellékutcára nyíló bejárat
Hasznosítás
üres
Moczok Ágnes
Hitelszakértő