Eladó kereskedelmi ingatlan bérleti joga, UZ018971
Budapest V. kerület, Dél-Belváros

195 000 000 Ft

502 000 €

  • 352m²
  • -1. emelet
Kiemelt megbízás

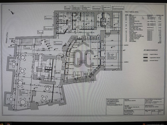
Eladó pince színház vendéglátó egységgel – Budapest, V. kerület

Különleges befektetési lehetőség a belváros szívében!
Eladásra kínálunk egy egyedi hangulatú, pince színházként működő ingatlant, amelyhez saját vendéglátó egység is tartozik.
Az ingatlanhoz hosszútávú bérleti jog kapcsolódik, így stabil, biztos lehetőséget nyújt kulturális és gasztronómiai vállalkozások számára.
Az ingatlan főbb jellemzői:

*Budapest V. kerületének frekventált részén található
*Hangulatos, boltíves pincehelyiségek
*Színházi, előadói tér, több funkcióval
*Teljesen kialakított vendéglátó egység kiszolgáló helyiségekkel
*Rendezvények, kulturális események, gasztronómiai programok lebonyolítására ideális

Miért érdemes megtekinteni?
Egyedi atmoszféra: a belvárosi pince színház hangulata különleges élményt nyújt
Sokoldalú hasznosíthatóság: kulturális események, klub, étterem, kávézó vagy bármilyen kreatív koncepció számára kiváló
Kiváló befektetés: a hosszútávú bérleti jog biztonságot ad, a lokáció pedig kiemelkedően értékes

Regisztrációs szám

UZ018971

Az ingatlan adatai

Értékesités
eladó bérleti jog
Jogi státusz
használt
Jelleg
üzleti célú
Típus
épületrész
Építési mód
tégla
Méret
352 m²
Föld feletti nettó méret
352 m²
Belmagasság
360 cm
Állapot
Homlokzat állapota
Lépcsőház állapota
Víz
Van
Gáz
Van
Villany
Van
Csatorna
Van

 

Lehetséges funkciók
kiskereskedelem, vendéglátóipari egység, oktatási központ
Hasznosítás
bérbe adott
Havi bérleti díj
340000
Ruczek Krisztina
Ruczek Krisztina

Hitelszakértő

Irodánk kínálatából - VI. kerület - Ó utca

eladó lakás

Index image
19

eladó családi ház

Index image
37

eladó lakás

Index image
10

eladó kereskedelmi ingatlan

Index image
23

eladó családi ház

Index image
37