Eladó kereskedelmi ingatlan, UZ018874
Budapest XIII. kerület, Angyalföld - Kertváros

43 901 000 Ft

113 000 €

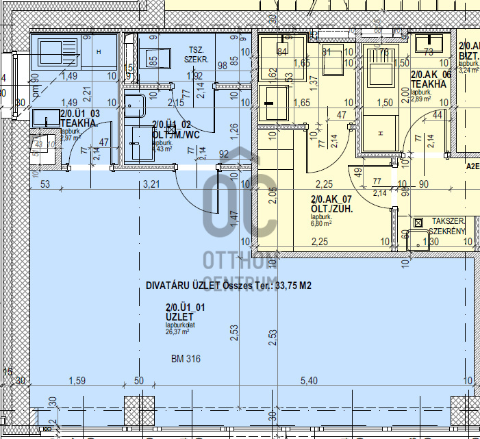
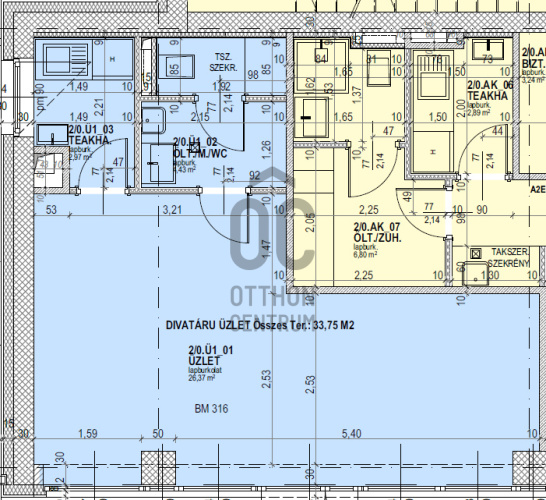
  • 33,7m²
  • földszint
Kiemelt megbízás

A XIII. kerületben - Angyalföldön - 2025 év végén átadásra kerülő társasház földszintjén eladó egy 33,77 nm-es üzlethelyiség.
Felszíni beálló vásárolható az üzlethelyiséghez.
A vételárat áfa-fizetési kötelezettség terheli! (27%).

Regisztrációs szám

UZ018874

Az ingatlan adatai

Értékesités
eladó
Jogi státusz
új
Jelleg
üzleti célú
Típus
épületrész
Építési mód
tégla
Méret
33,7 m²
Föld feletti nettó méret
33 m²
Belmagasság
313 cm
Állapot
Kiváló
Homlokzat állapota
Kiváló
Lépcsőház állapota
Kiváló
Víz
Van
Villany
Van
Csatorna
Van
Lift
van

 

Lehetséges funkciók
iroda és bemutatóterem, vagy üzlet
Hasznosítás
üres
Berkes-Jakus Kinga
Berkes-Jakus Kinga

Hitelszakértő

Irodánk kínálatából - XIII. kerület - Béke Residence

eladó lakás

Index image
Elérhető Otthon Start hitellel
8

for sale apartment

Index image
data_sheet.details.realestate.section.main.otthonstart_flag.label
12

eladó lakás

Index image
22

eladó lakás

Index image
11

eladó újépítésű lakás

Index image
6

eladó lakás

Index image
16

eladó újépítésű lakás

Index image
4

eladó családi ház

Index image
Elérhető Otthon Start hitellel
26

eladó panel lakás

Index image
Elérhető Otthon Start hitellel
20