159 000 000 Ft
406 000 €
- 806m²









Móricz Zsigmond körtérnél 809 nm nagyságú kereskedemi ingatlan eladó!
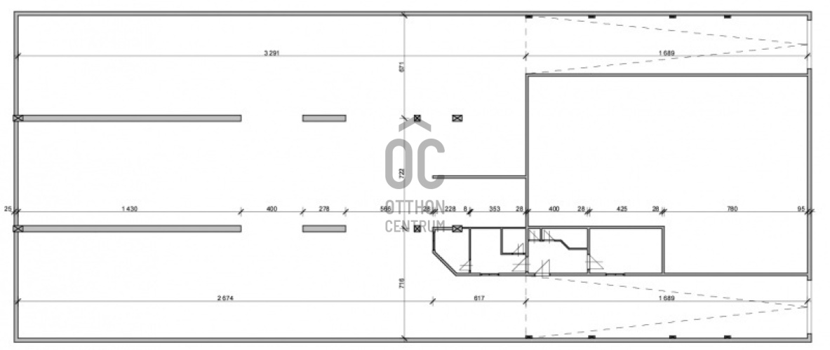
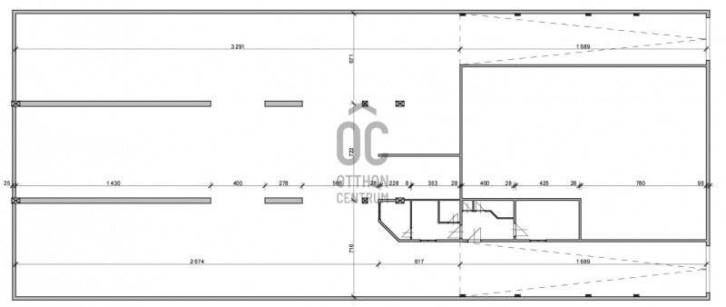
Budapest egyik legnagyobb forgalmú közlekedési csomópontjánál a Móricz Zsigmond körtérnél 809 nm nagyságú kereskedelmi ingatlan eladó.
Az 1942-43 épült ingatlan alagsorában, belső udvarában elhelyezkedő ingatlan két önálló bejárattal rendelkezik megkönnyítve a ki és behajtást.
A 809 nm területből a lehajtókat és a szociális részeket leszámítva 600nm egybefüggő terület állrendelkezésre ahol szinte bármilyen felhasználás elképzelhető.
Az ingatlan azonnal használható azonban a födémszerkezet és a kiszolgáló helyiségek felújításra szorulnak.
Közös költség 90.000Ft rezsi átlag 30.000Ft /hó
Ideális választás lehet amennyiben nagy alapterületű, központi helyen elhelyezkedő, gépkocsi beállóval is rendelkező ingatlanra van szüksége.
Az 1942-43 épült ingatlan alagsorában, belső udvarában elhelyezkedő ingatlan két önálló bejárattal rendelkezik megkönnyítve a ki és behajtást.
A 809 nm területből a lehajtókat és a szociális részeket leszámítva 600nm egybefüggő terület állrendelkezésre ahol szinte bármilyen felhasználás elképzelhető.
Az ingatlan azonnal használható azonban a födémszerkezet és a kiszolgáló helyiségek felújításra szorulnak.
Közös költség 90.000Ft rezsi átlag 30.000Ft /hó
Ideális választás lehet amennyiben nagy alapterületű, központi helyen elhelyezkedő, gépkocsi beállóval is rendelkező ingatlanra van szüksége.
Regisztrációs szám
UZ018818
Az ingatlan adatai
Értékesités
eladó
Jogi státusz
használt
Jelleg
üzleti célú
Típus
épületrész
Építési mód
tégla
Méret
806 m²
Föld feletti nettó méret
806 m²
Belmagasság
380 cm
Állapot
Felújítandó
Homlokzat állapota
Jó
Lépcsőház állapota
Jó
Víz
Van
Villany
Van
Csatorna
Van
Hasznosítás
tulajdosnos használja

Vitéz Kornél
Hitelszakértő