689 000 000 Ft
1 769 000 €
- 450m²
Apartment Hotel for Sale in the Heart of Siófok – Attention Investors!
Located in Siófok's Aranypart (Golden Shore), the city's main tourist hub and surrounded by impressive villas, we are offering for sale a well-functioning, impeccably maintained apartment hotel.
It is currently operating successfully and offers an excellent opportunity for those interested in hospitality or long-term investment.
Features:
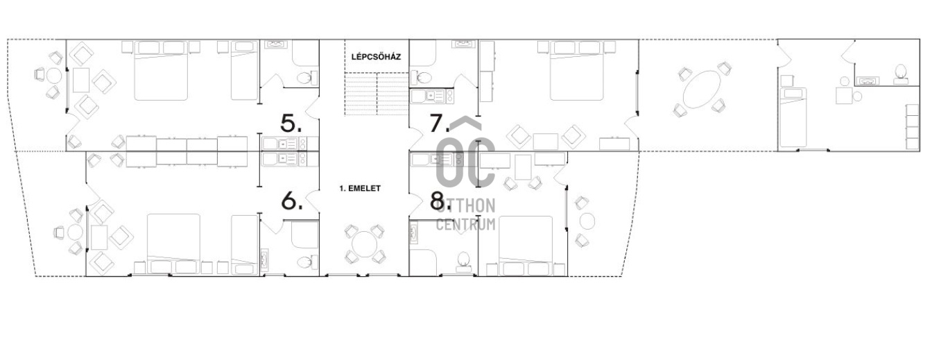
12 fully equipped, air-conditioned apartments
Gated courtyard parking with security camera system
Breakfast room, bar counter, food prep areas
Reception with a separate room and bathroom
Gas central heating – low operating costs
Free Wi-Fi, TV, phone, movie channels
Quiet setting with mature trees, in a classic villa neighborhood
Location:
The property is just a few hundred meters from Lake Balaton, the port, the Main Beach, and Petőfi Promenade.
Shops, restaurants, entertainment venues, the Water Tower, Sió Plaza, and Jókai Park are all within easy reach – a perfect location for guests!
Why is this a great investment?
Operable year-round with a stable clientele
Situated in one of Siófok’s most desirable areas – the Aranypart
Increasing demand for high-quality tourist accommodations
Excellent transport connections: easily accessible by car, bus, and train
Development potential: expansion, new functions can be added
Even in its current form, the apartment hotel provides high-quality service, but it also holds great potential for further development.
An ideal choice for business purposes, investment, or even for bringing your own hospitality vision to life.
For more information or to schedule a viewing, feel free to contact us!
It is currently operating successfully and offers an excellent opportunity for those interested in hospitality or long-term investment.
Features:
12 fully equipped, air-conditioned apartments
Gated courtyard parking with security camera system
Breakfast room, bar counter, food prep areas
Reception with a separate room and bathroom
Gas central heating – low operating costs
Free Wi-Fi, TV, phone, movie channels
Quiet setting with mature trees, in a classic villa neighborhood
Location:
The property is just a few hundred meters from Lake Balaton, the port, the Main Beach, and Petőfi Promenade.
Shops, restaurants, entertainment venues, the Water Tower, Sió Plaza, and Jókai Park are all within easy reach – a perfect location for guests!
Why is this a great investment?
Operable year-round with a stable clientele
Situated in one of Siófok’s most desirable areas – the Aranypart
Increasing demand for high-quality tourist accommodations
Excellent transport connections: easily accessible by car, bus, and train
Development potential: expansion, new functions can be added
Even in its current form, the apartment hotel provides high-quality service, but it also holds great potential for further development.
An ideal choice for business purposes, investment, or even for bringing your own hospitality vision to life.
For more information or to schedule a viewing, feel free to contact us!
Regisztrációs szám
UZ018451
Az ingatlan adatai
Értékesités
eladó
Jogi státusz
használt
Jelleg
üzleti célú
Típus
teljes épület
Építési mód
tégla
Méret
450 m²
Telek méret
1 016 m²
Föld feletti nettó méret
450 m²
Fűtés
Gáz cirkó
Belmagasság
270 cm
Lakáson belüli szintszám
4
Állapot
Jó
Homlokzat állapota
Jó
Lépcsőház állapota
Jó
Építés éve
2005
Víz
Van
Gáz
Van
Villany
Van
Csatorna
Van
Vízpart távolsága
500 méterre
Lehetséges funkciók
szálloda, panzió, hostel, egészségügyi központ, oktatási központ
Láthatóság
Mellékutcában utcafronton lévő
Hasznosítás
tulajdosnos használja