690 000 Ft
1 780 €
- 468m²
KIADÓ IRODAHÁZ KIVÁLÓ LOKÁCIÓVAL!
IRODAÉPÜLETET BÉRELNE?
A POZSONY utcában KIADÓ ez az önálló családi házból kialakított IRODAHÁZ.
Tömegközlekedéssel és autóval is könnyen megközelíthető: az M3-as és M0-s autópályákhoz KÖZEL, vasútállomástól 10 perc sétára (800 méterre) található, BUSZ- ÉS VILLAMOSMEGÁLLÓ A KAPU ELŐTT.
Közelben elérhető a Pólus, Metró, Lidl, Stop Shop.
Az infrastruktúra kiváló, a környezet mégis idilli és megnyugtató a lekerített teleknek és a fáknak köszönhetően.
Kerten belül 13 autónak van parkolási lehetőség, amelyek KIZÁRÓLAGOS használatát tartalmazza a bérleti díj. Az autókat mobiltelefonról távirányítható ELEKTROMOS KAPU védi.
Első sorban irodának, bemutatóteremnek, kiskereskedésnek ajánljuk.
(Munkásszállás kizárva.)
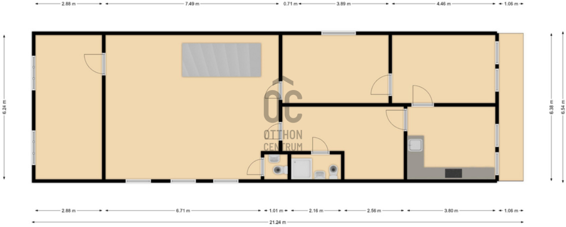
Az ingatlan 4 SZINTES: szuterén, földszint és még két emelet, összesen 469 nm.
Tágas, VILÁGOS, praktikusan ALAKÍTHATÓ terek és nagy ablakok jellemzik, amelyek jól szigetelnek.
Minden szinten van illemhely, két szinten van fürdőszoba, egy szinten pedig egy nagy konyha terasszal.
A földszinten ÜGYFÉLFOGADÓ PULT, a szuterénben pedig egy 3,3m belmagasságú, 117 nm-es egybefüggő terület lett kialakítva, ami belülről lépcsőn és kívülről autóval is megközelíthető és akár raktárnak is alkalmas.
JELLEMZŐK:
-Biztonsági ajtó
-Riasztó
-Rácsos ablakok a földszinten
-Kamerarendszer előkészítés
-Mobilról távirányítható elektromos kapu
-Klíma előkészítés
-Gázcirkó (fölső két szint) és gázkazán (alsó két szint)
-Mobil termosztát
-13 db zárt parkolóhely
-Azonnal használatba vehető
-1 Konyha, 2 fürdő, 5 illemhely
-Ügyfélfogadó pult
-Tovább alakítható terek
A tulajdonos megbízható, korrekt, az egyéni igények és elképzelések megvalósításában megegyezés szerint partner.
Elsősorban hosszútávú bérlőt keresünk.
Két havi kaucióval és az első havi bérleti díjjal lefoglalható.
Közjegyzői okiratba foglalás szükséges, amelynek díját a tulajdonos állja.
A havonta fizetendő bérleti díj nem tartalmazza a rezsit, ami önálló almérők alapján kerül elszámolásra és igen kedvező.
Víz 5-10 ezer, villany 50-70 ezer, gáz 80-100 ezer forint havonta.
További információért hívjon bizalommal a hét bármely napján!
A POZSONY utcában KIADÓ ez az önálló családi házból kialakított IRODAHÁZ.
Tömegközlekedéssel és autóval is könnyen megközelíthető: az M3-as és M0-s autópályákhoz KÖZEL, vasútállomástól 10 perc sétára (800 méterre) található, BUSZ- ÉS VILLAMOSMEGÁLLÓ A KAPU ELŐTT.
Közelben elérhető a Pólus, Metró, Lidl, Stop Shop.
Az infrastruktúra kiváló, a környezet mégis idilli és megnyugtató a lekerített teleknek és a fáknak köszönhetően.
Kerten belül 13 autónak van parkolási lehetőség, amelyek KIZÁRÓLAGOS használatát tartalmazza a bérleti díj. Az autókat mobiltelefonról távirányítható ELEKTROMOS KAPU védi.
Első sorban irodának, bemutatóteremnek, kiskereskedésnek ajánljuk.
(Munkásszállás kizárva.)
Az ingatlan 4 SZINTES: szuterén, földszint és még két emelet, összesen 469 nm.
Tágas, VILÁGOS, praktikusan ALAKÍTHATÓ terek és nagy ablakok jellemzik, amelyek jól szigetelnek.
Minden szinten van illemhely, két szinten van fürdőszoba, egy szinten pedig egy nagy konyha terasszal.
A földszinten ÜGYFÉLFOGADÓ PULT, a szuterénben pedig egy 3,3m belmagasságú, 117 nm-es egybefüggő terület lett kialakítva, ami belülről lépcsőn és kívülről autóval is megközelíthető és akár raktárnak is alkalmas.
JELLEMZŐK:
-Biztonsági ajtó
-Riasztó
-Rácsos ablakok a földszinten
-Kamerarendszer előkészítés
-Mobilról távirányítható elektromos kapu
-Klíma előkészítés
-Gázcirkó (fölső két szint) és gázkazán (alsó két szint)
-Mobil termosztát
-13 db zárt parkolóhely
-Azonnal használatba vehető
-1 Konyha, 2 fürdő, 5 illemhely
-Ügyfélfogadó pult
-Tovább alakítható terek
A tulajdonos megbízható, korrekt, az egyéni igények és elképzelések megvalósításában megegyezés szerint partner.
Elsősorban hosszútávú bérlőt keresünk.
Két havi kaucióval és az első havi bérleti díjjal lefoglalható.
Közjegyzői okiratba foglalás szükséges, amelynek díját a tulajdonos állja.
A havonta fizetendő bérleti díj nem tartalmazza a rezsit, ami önálló almérők alapján kerül elszámolásra és igen kedvező.
Víz 5-10 ezer, villany 50-70 ezer, gáz 80-100 ezer forint havonta.
További információért hívjon bizalommal a hét bármely napján!
Regisztrációs szám
UZ018255
Az ingatlan adatai
Értékesités
kiadó
Jogi státusz
használt
Jelleg
üzleti célú
Típus
teljes épület
Építési mód
tégla
Méret
468 m²
Telek méret
1 500 m²
Terasz / erkély mérete
8 m²
Föld feletti nettó méret
351 m²
Fűtés
Gáz cirkó
Belmagasság
263 cm
Lakáson belüli szintszám
4
Panoráma
városi panoráma
Állapot
Jó
Homlokzat állapota
Jó
Garázs férőhely
7
Víz
Van
Gáz
Van
Villany
Van
Csatorna
Van
Lehetséges funkciók
kiskereskedelem, ipari csarnok vagy raktár, oktatási központ
Láthatóság
Forgalmas főútról jól látható
Megközelíthetőseg
Forgalmas főútról nyíló bejárat
Hasznosítás
üres