320 000 000 Ft
820 000 €
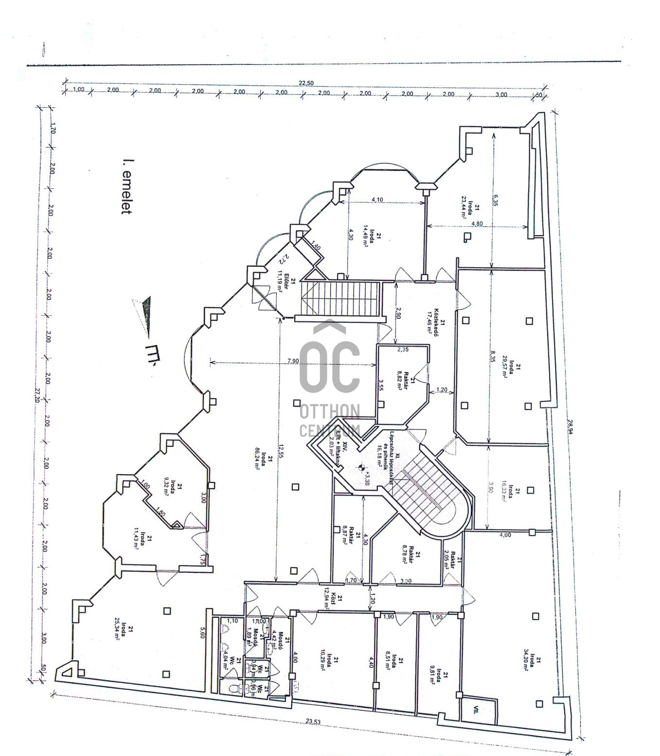
- 382m²
- 1. emelet








Teljes emelet 382 m2-en a Margit híd közelében Budán.
Önálló első emeleti ingatlant kínálunk eladásra, amely közvetlen utcai bejárattal rendelkezik. Az irodaként funkcionáló és jelenleg is bérbeadott ingatlan központjában egy 80 m2-es, tanfolyamok, továbbképzések és előadások megtartására alkalmas teret alakítottak ki, amelyet körbevesznek a részben belső udvarra, részben az utca felé néző irodák,illetve kiszolgáló egységek. (konyha, mosdók, tároló, szerverszoba stb) Az épület pillérvázas szerkezetének köszönhetően a belső tér igény szerint alakítható.
A nagy ablakfelületek természetes fényt biztosítanak , illetve a 3 rétegű üvegezésnek köszönhetően kiváló a hang és hőszigetelés.
Az iroda fűtését kondenzációs gázkazán biztosítja. Valamennyi utcafronti helyiség klimatizált. Az ingatlan önálló mérőórákkal rendelkezik. Kaputelefon és központi riasztórendszer is kiépítésre került. A szobákban több munkaállomáshoz is informatikai csatlakozás van kiépítve.
Tömegközlekedés kiváló, több busz(86,160,260) és villamos (4-es,6-os) pár lépésre található. 2 villamosmegállónyira a Mammut bevásárlóközpont és a Millenáris Park, a Duna felé pedig a Margit híd sétatávolságban van . Parkolni a környező utcákban lehet.
Cégközpontnak, ügyfélközpontnak,irodának,oktatási központnak, bemutatóteremnek egyaránt alkalmas, akár nagy ügyfélforgalom lebonyolításával is. Jelenleg bérbe van adva és a bérlő szívesen marad.
A vételár nettó, plusz ÁFA értendő!!!
Ha hosszútávon értékálló ingatlanba fektetne, vagy ide költöztetné vállalkozását,érdemes mérlegelnie ezt a lehetőséget. További információkkal kapcsolatban várjuk megtisztelő érdeklődését!
A nagy ablakfelületek természetes fényt biztosítanak , illetve a 3 rétegű üvegezésnek köszönhetően kiváló a hang és hőszigetelés.
Az iroda fűtését kondenzációs gázkazán biztosítja. Valamennyi utcafronti helyiség klimatizált. Az ingatlan önálló mérőórákkal rendelkezik. Kaputelefon és központi riasztórendszer is kiépítésre került. A szobákban több munkaállomáshoz is informatikai csatlakozás van kiépítve.
Tömegközlekedés kiváló, több busz(86,160,260) és villamos (4-es,6-os) pár lépésre található. 2 villamosmegállónyira a Mammut bevásárlóközpont és a Millenáris Park, a Duna felé pedig a Margit híd sétatávolságban van . Parkolni a környező utcákban lehet.
Cégközpontnak, ügyfélközpontnak,irodának,oktatási központnak, bemutatóteremnek egyaránt alkalmas, akár nagy ügyfélforgalom lebonyolításával is. Jelenleg bérbe van adva és a bérlő szívesen marad.
A vételár nettó, plusz ÁFA értendő!!!
Ha hosszútávon értékálló ingatlanba fektetne, vagy ide költöztetné vállalkozását,érdemes mérlegelnie ezt a lehetőséget. További információkkal kapcsolatban várjuk megtisztelő érdeklődését!
Regisztrációs szám
UZ015983
Az ingatlan adatai
Értékesités
eladó
Jogi státusz
használt
Jelleg
üzleti célú
Típus
épületrész
Építési mód
tégla
Méret
382 m²
Föld feletti nettó méret
382 m²
Belmagasság
300 cm
Panoráma
városi panoráma
Állapot
Jó
Homlokzat állapota
Jó
Lépcsőház állapota
Jó
Építés éve
1990
Közös költség
52096
Víz
Van
Gáz
Van
Villany
Van
Csatorna
Van
Lift
van
Vízpart távolsága
200 méterre
Lehetséges funkciók
iroda, bemutatóterem, egészségügyi központ, oktatási központ
Láthatóság
Nagy gyalogosforgalmú utcában jól látható
Megközelíthetőseg
Nagy gyalogosforgalmú utcára nyíló bejárat
Hasznosítás
bérbe adott
Havi bérleti díj
700000

Ruczek János
Hitelszakértő