568 579 Ft
1 470 €
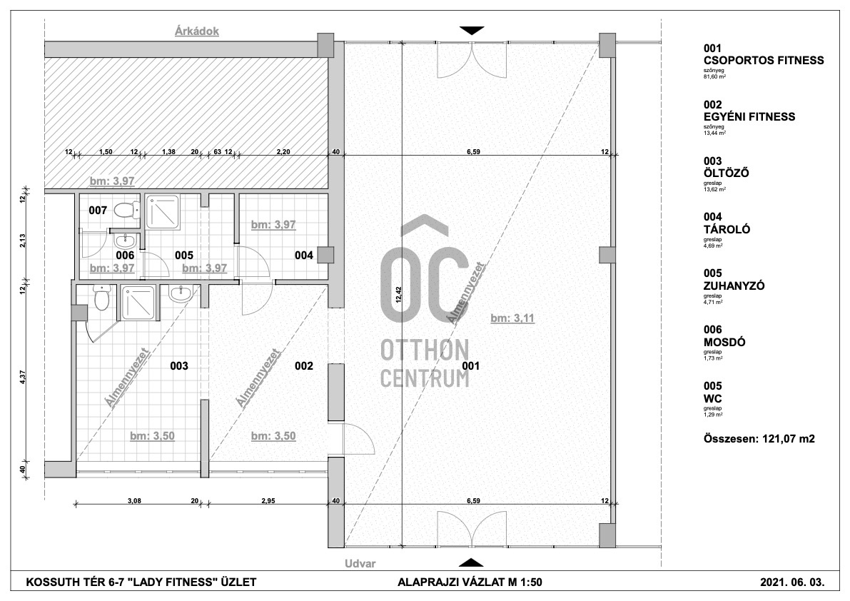
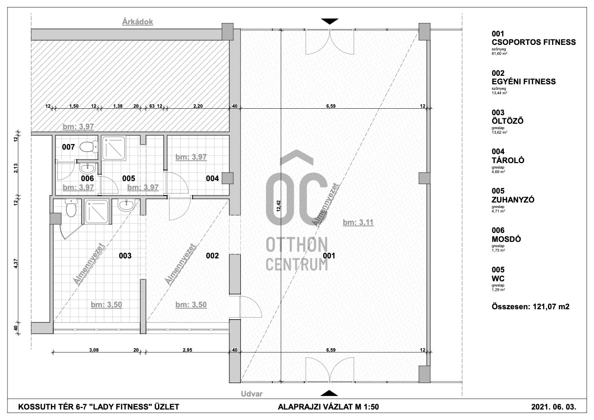
- 121m²
- földszint





Üzlet a Lordok aljában
Vállakozni kívánók figyelmébe ajánlom ezt az ingatlant, elsősorban olyanoknak akiknek fontos a lokáció! Ez az ingatlan a Kossuth téren lévő Lordok házának a passage részén van, nagy átmenőforgalommal rendelkezik, jó állapotú bérlemény.
Az ingatlan alkalmas:
- edzőteremnek(az is volt régebben)
- kiskereskedelmi egységnek
- irodának
Az ingatlan a Kikfor Kft tulajdona, megtekintés miatt hívjon bizalommal!
Az ingatlan alkalmas:
- edzőteremnek(az is volt régebben)
- kiskereskedelmi egységnek
- irodának
Az ingatlan a Kikfor Kft tulajdona, megtekintés miatt hívjon bizalommal!
Regisztrációs szám
UZ013995
Az ingatlan adatai
Értékesités
kiadó
Jogi státusz
használt
Jelleg
üzleti célú
Típus
épületrész
Építési mód
csúsztatott zsalus
Méret
121 m²
Föld feletti nettó méret
121 m²
Fűtés
távfűtés
Belmagasság
400 cm
Állapot
Átlagos
Homlokzat állapota
Jó
Lépcsőház állapota
Jó
Építés éve
1970
Víz
Van
Gáz
Van
Villany
Van
Csatorna
Van
Lehetséges funkciók
kiskereskedelem, iroda, iroda és bemutatóterem, vagy üzlet, iroda és raktár, bemutatóterem, bemutatóterem és szervíz, vagy raktár, sportközpont, egészségügyi központ, oktatási központ
Láthatóság
Mellékutcában utcafronton lévő
Megközelíthetőseg
Mellékutcára nyíló bejárat
Hasznosítás
üres