350 000 000 Ft
901 000 €
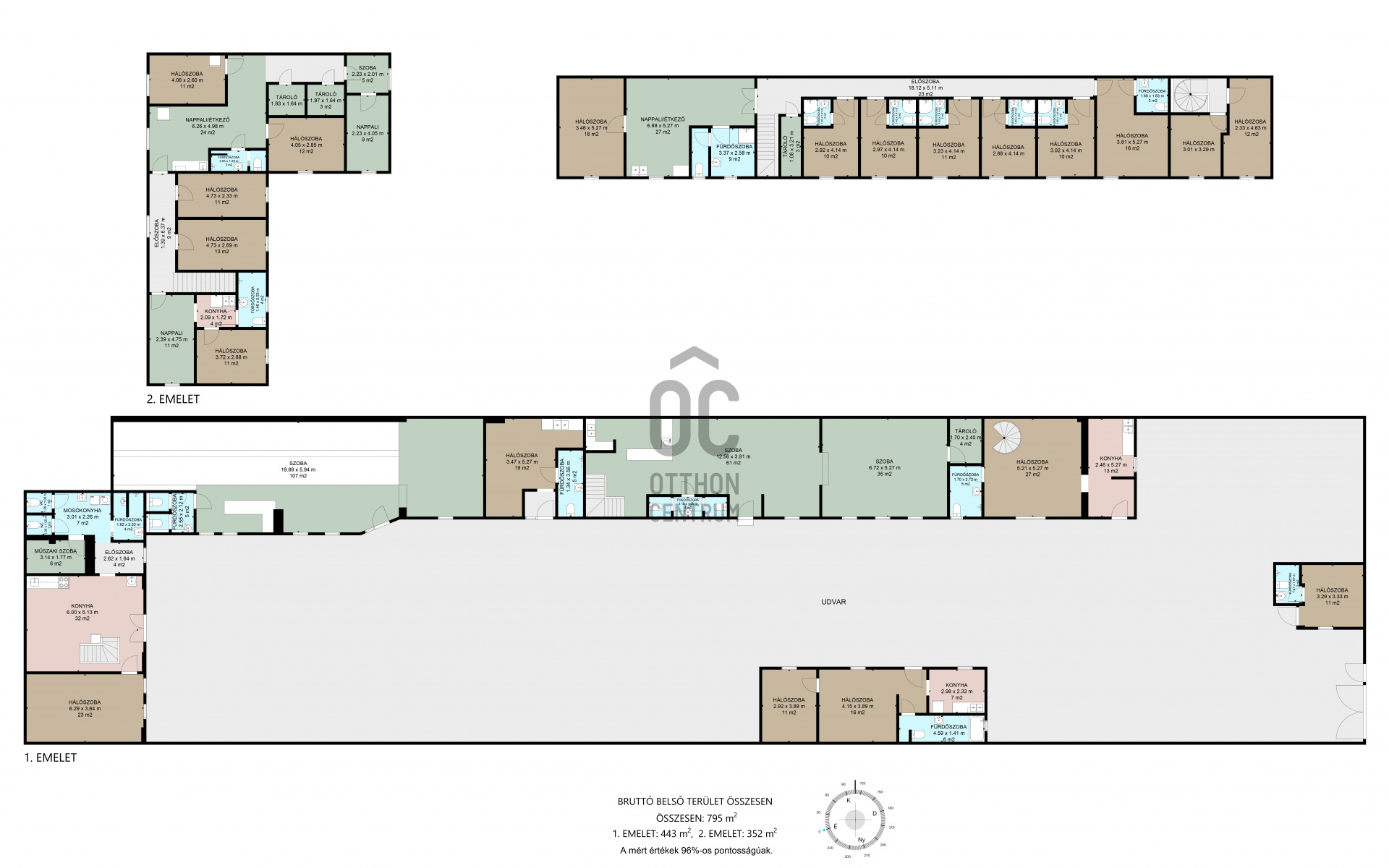
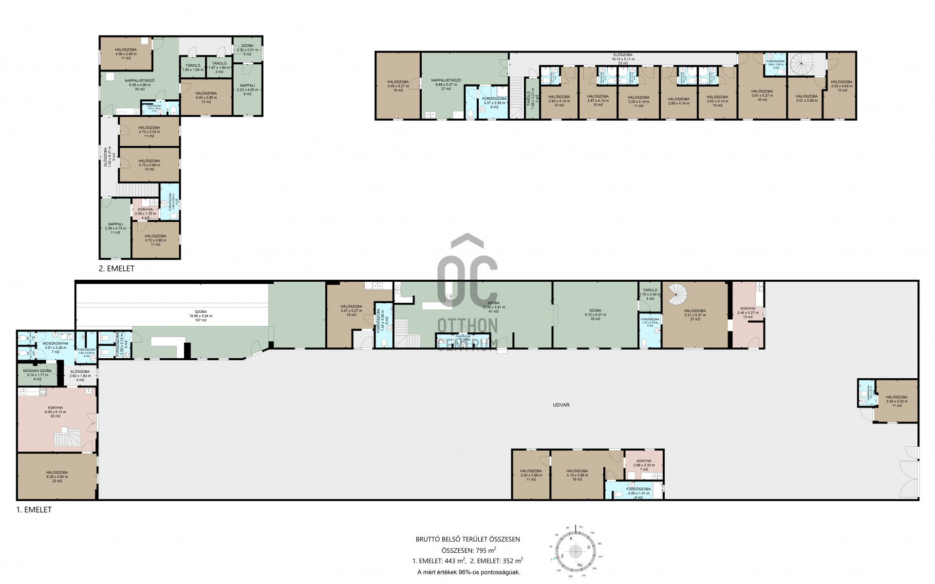
- 795m²

































For sale in Újpest, a country-style guesthouse!
On nearly 800 square meters, accommodation can be provided for up to 40-45 people, with apartments available alongside the rooms.
The apartments vary in size and are equipped with kitchens and bathrooms.
Guests can enjoy the two-lane bowling alley and the well-maintained environment with a Wild West atmosphere.
The area is easily accessible but located on a quiet side street near the Szusza Ferenc Stadium.
UTILIZATION: Due to its excellent accessibility, the property is suitable for various purposes such as a GUESTHOUSE, WORKER ACCOMMODATION, OFFICE, or for other private or business-related events.
AREA: Metro, long-distance bus, and Újpest Center are within a 5-minute proximity.
Feel free to call anytime if you have any questions.
The apartments vary in size and are equipped with kitchens and bathrooms.
Guests can enjoy the two-lane bowling alley and the well-maintained environment with a Wild West atmosphere.
The area is easily accessible but located on a quiet side street near the Szusza Ferenc Stadium.
UTILIZATION: Due to its excellent accessibility, the property is suitable for various purposes such as a GUESTHOUSE, WORKER ACCOMMODATION, OFFICE, or for other private or business-related events.
AREA: Metro, long-distance bus, and Újpest Center are within a 5-minute proximity.
Feel free to call anytime if you have any questions.
Regisztrációs szám
UZ012346
Az ingatlan adatai
Értékesités
eladó
Jogi státusz
használt
Jelleg
üzleti célú
Típus
teljes épület
Építési mód
tégla
Méret
795 m²
Telek méret
1 312 m²
Föld feletti nettó méret
1 360 m²
Fűtés
Gáz cirkó
Belmagasság
260 cm
Lakáson belüli szintszám
2
Állapot
Jó
Homlokzat állapota
Jó
Víz
Van
Gáz
Van
Villany
Van
Csatorna
Van
Lehetséges funkciók
vendéglátóipari egység, iroda, iroda és raktár, bemutatóterem és szervíz, vagy raktár, panzió, hostel, egészségügyi központ, oktatási központ
Hasznosítás
tulajdosnos használja

Korcsog Melinda
Hitelszakértő