Elérhető Otthon Start hitellel
Eladó újépítésű ikerház, U0049251
Siófok, Sóstó

114 900 000 Ft

301 000 €

  • 90,2m²
  • 4 szoba

Discover your dream home in Siófok Sóstó – a new, spacious 4-room house is waiting for you!

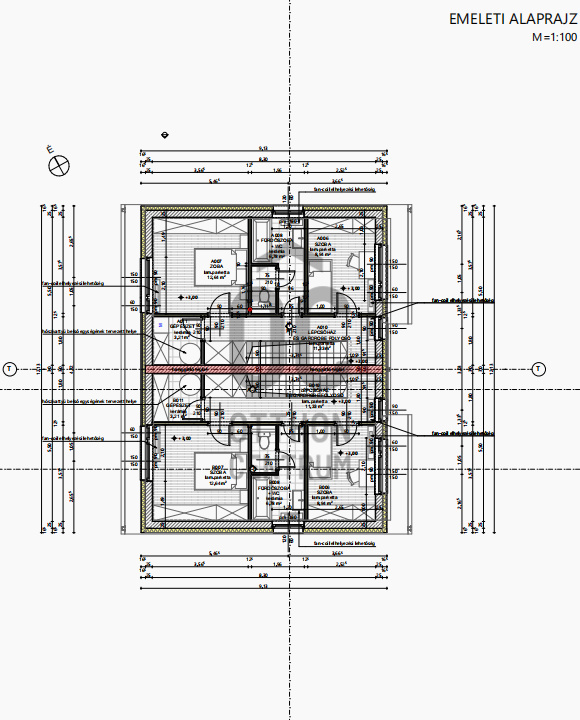
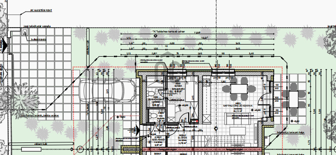
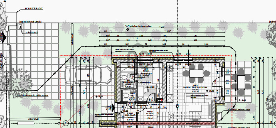
We offer you a truly special opportunity if you are currently looking for a new home or investment option in the city of Siófok. In our planning, we took into account the application of renewable energy systems and environmentally friendly solutions. Our modern, premium-quality duplex house (one building with two residential units) located in the Sóstó district has everything you could possibly need. The property has a floor area of 90.2 square meters, which includes four spacious rooms and two bathrooms. In this bright, minimalist-designed home, every detail serves comfort and functionality, as the American kitchen and the spacious living room provide the perfect space for friendly gatherings or family moments. In shaping the building's mass and layout, we aimed for a symmetrical design for the two residential units. The communal areas (living room, dining room, kitchen) are located on the ground floor, along with a guest room/office that has its own bathroom and a separate toilet. The flooring can be chosen according to taste within a specified budget by the contractor. On the upper floor, two additional rooms and a bathroom are planned. The ground floor living room connects to the courtyard, which features a partially covered terrace. A fence is planned to be placed between the courtyard areas belonging to the two residences. The house is situated on a 508 square meter plot, surrounded by a well-maintained garden. From the 11 square meter terrace, there is a pleasant panorama of the surrounding landscape, where the proximity to Lake Balaton and the quiet neighborhood guarantee a peaceful life. The garden is 190.5 square meters and includes a carport, which is part of the purchase price. The property is newly built, and its heating is powered by renewable energy sources: outdoor H-tariff heat pump heating, with fan coils and underfloor heating. Solar panel installation is optional. The aluminum electric shutters are not only practical but also part of a modern lifestyle (equipped with mosquito nets). Among the advantages of the area, excellent transportation deserves mention, allowing you to easily reach the city center. A wide range of public transportation options is available, so you can travel easily by car or bus. Zoning classification: ÜH-1-sz (Weekend house recreational area). The Sóstó district is quiet and safe, making it an ideal choice if you are looking for both the proximity to nature and the advantages of urban life. This property, which is free of encumbrances, is also suitable for moving in with pets, so if you have a favorite, they are welcome in your new home. Thanks to its unique design and modern solutions, this house is not just a property but an embodiment of a lifestyle. Don't hesitate to contact us if you have any questions! There is also an opportunity to view the property so you can personally experience this special atmosphere. Don’t miss out on this unparalleled opportunity!

Regisztrációs szám

U0049251

Az ingatlan adatai

Értékesités
eladó
Jogi státusz
új
Jelleg
ház
Építési mód
tégla
Méret
90,2 m²
Bruttó méret
103,7 m²
Telek méret
508 m²
Terasz / erkély mérete
10,5 m²
Kert méret
190 m²
Fűtés
megújuló
Belmagasság
265 cm
Lakáson belüli szintszám
1
Tájolás
Dél-kelet
Panoráma
Zöldre néző panoráma
Állapot
Kiváló
Homlokzat állapota
Kiváló
Környék
csendes, jó közlekedés, zöld
Építés éve
2026
Fürdőszobák száma
2
Társaház kert
igen
Víz
Van
Villany
Van
Csatorna
Van
Vízpart távolsága
több mint 500 méterre

Helyiségek

szoba
8.46 m²
fürdőszoba
3.56 m²
nappali-konyha
26.12 m²
előszoba
4.78 m²
wc-kézmosó
1.31 m²
szoba
9 m²
szoba
12.7 m²
fürdőszoba
6.8 m²
közlekedő
11.33 m²
tároló
3.21 m²
terasz
12.25 m²
egyéb
3.07 m²
kocsibeálló
25 m²
kocsibeálló
25 m²

Irodánk kínálatából - Siófok - Petőfi sétány

eladó sorház

Index image
Elérhető Otthon Start hitellel
25

eladó újépítésű ikerház

Index image
Elérhető Otthon Start hitellel
14

eladó családi ház

Index image
Elérhető Otthon Start hitellel
31

eladó lakás

Index image
Elérhető Otthon Start hitellel
20

eladó családi ház

Index image
Elérhető Otthon Start hitellel
23

eladó ikerház

Index image
Elérhető Otthon Start hitellel
20