Elérhető Otthon Start hitellel
Eladó újépítésű családi ház,
U0049215
Debrecen, Kerekes-telep
139 900 000 Ft
363 000 €
- 120m²
- 4 szoba
Új építésű önálló családi ház eladó Debrecen Kerekestelepen
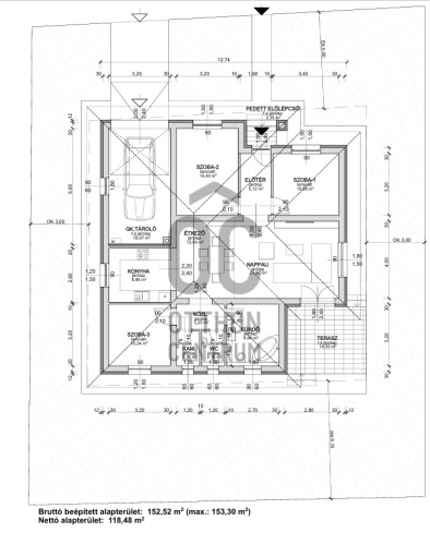
Debrecen Kerekestelep városrészében, csendes, kövezett zsákutcában kínálunk megvételre egy 3 különnyíló szoba + amerikai konyha-nappalis önálló családi házat, 510 m²-es telken, 120 m² hasznos alapterülettel.
Az ingatlan modern műszaki tartalommal és kiváló hőszigeteléssel készül, energiatakarékos megoldásokkal.
Műszaki jellemzők:
-Porotherm 30 tégla
-Padlófűtés minden helyiségben
-A szobákban padlófűtés mellett radiátor is
-Gáz-cirkó fűtés
-3 rétegű hőszigetelt nyílászárók
-12 cm grafitos külső homlokzati szigetelés
-12 cm padlószigetelés
-30 cm födémszigetelés
-Elektromos garázskapu
-Riasztórendszer vezetékelése előkészítve
Az ár tartalmazza:
-2 db klímaberendezés
-Nemesvakolattal ellátott homlokzat
-Térkövezett udvari felületek
-Burkolt terasz
Az ingatlan várhatóan 2026 júniusában készül el, így ideális választás azok számára, akik új építésű, korszerű otthont keresnek nyugodt környezetben.
Bővebb információért vagy megtekintésért keressen bátran!
Az ingatlan modern műszaki tartalommal és kiváló hőszigeteléssel készül, energiatakarékos megoldásokkal.
Műszaki jellemzők:
-Porotherm 30 tégla
-Padlófűtés minden helyiségben
-A szobákban padlófűtés mellett radiátor is
-Gáz-cirkó fűtés
-3 rétegű hőszigetelt nyílászárók
-12 cm grafitos külső homlokzati szigetelés
-12 cm padlószigetelés
-30 cm födémszigetelés
-Elektromos garázskapu
-Riasztórendszer vezetékelése előkészítve
Az ár tartalmazza:
-2 db klímaberendezés
-Nemesvakolattal ellátott homlokzat
-Térkövezett udvari felületek
-Burkolt terasz
Az ingatlan várhatóan 2026 júniusában készül el, így ideális választás azok számára, akik új építésű, korszerű otthont keresnek nyugodt környezetben.
Bővebb információért vagy megtekintésért keressen bátran!
Regisztrációs szám
U0049215
Az ingatlan adatai
Értékesités
eladó
Jogi státusz
új
Jelleg
ház
Építési mód
tégla
Méret
120 m²
Bruttó méret
152 m²
Telek méret
510 m²
Terasz / erkély mérete
14 m²
Fűtés
Gáz cirkó
Belmagasság
270 cm
Tájolás
Kelet
Állapot
Kiváló
Homlokzat állapota
Kiváló
Környék
csendes, jó közlekedés
Építés éve
2026
Fürdőszobák száma
1
Garázs
Benne van az árban
Garázs férőhely
1
Víz
Van
Gáz
Van
Villany
Van
Csatorna
Van
Helyiségek
szoba
14 m²
szoba
11 m²
szoba
10 m²
konyha
9 m²
nappali-étkező
33 m²
fürdőszoba
9 m²
wc
2 m²
kamra
2 m²
előszoba
5 m²
terasz
14 m²
garázs
19 m²
Czellér András
Hitelszakértő