Elérhető Otthon Start hitellel
Eladó újépítésű családi ház, U0049121
Cegléd

70 000 000 Ft

184 000 €

  • 76,7m²
  • 4 szoba
Felező megbízás

Eladó tóra néző új építésű családi ház Cegléden!!!

Eladó Cegléden egy új építésű 2 szintes családi ház a horgász tavaknál.

Az ingatlan főbb jellemzői:
- hasznos alapterület: 78 nm
- telek mérete: 305 nm
- sávalapozás
- 30-as tégla falazat
- 10 cm-es válaszfalak
- fafödém
- tető: piros színű kerámia cserép
- fehér színű műanyag nyílászárók
- meleg padlós helyiségek laminált padló burkolatot kapnak, a többi helyiségben hidegburkolat
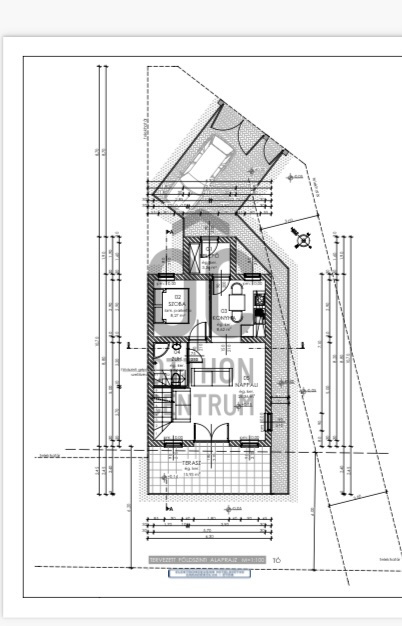
- földszinten: nappali, konyha, szoba, előszoba, zuhanyzó
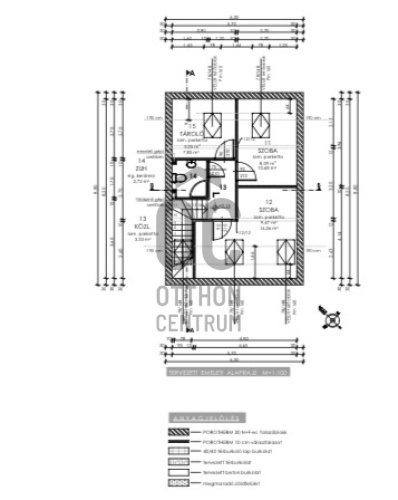
- emelet: 2 szoba, közlekedő, zuhanyzó, tároló

Irodánkban teljes körű ügyintézéssel várjuk bankfüggetlen tanácsadónknál.
A hirdetésben szereplő információk a megbízótól származnak, pontosságukért felelősséget nem vállalunk.

Regisztrációs szám

U0049121

Az ingatlan adatai

Értékesités
eladó
Jogi státusz
új
Jelleg
ház
Építési mód
tégla
Méret
76,7 m²
Bruttó méret
85 m²
Telek méret
305 m²
Fűtés
elektromos, infra
Belmagasság
265 cm
Lakáson belüli szintszám
1
Tájolás
Dél
Állapot
Kiváló
Homlokzat állapota
Kiváló
Építés éve
2024
Fürdőszobák száma
2
Víz
Van
Villany
Van
Csatorna
Van

Helyiségek

nappali
20.4 m²
konyha
8.84 m²
szoba
11.22 m²
előszoba
5.59 m²
zuhanyzó
3.6 m²
szoba
8.26 m²
szoba
9.7 m²
zuhanyzó
2.72 m²
közlekedő
3.33 m²
tároló
5.05 m²

Irodánk kínálatából - Cegléd - Szolnoki út

for sale family house

Index image
data_sheet.details.realestate.section.main.otthonstart_flag.label
11

for sale apartment

Index image
data_sheet.details.realestate.section.main.otthonstart_flag.label
30

for sale family house

Index image
data_sheet.details.realestate.section.main.otthonstart_flag.label
27

for sale family house

Index image
data_sheet.details.realestate.section.main.otthonstart_flag.label
27

for sale family house

Index image
data_sheet.details.realestate.section.main.otthonstart_flag.label
21