152 000 000 Ft
401 000 €
- 88,4m²
- 5 szoba
ÚJÉPÍTÉSŰ, HŰSZIVATTYÚS IKERHÁZ MINDKÉT LAKÁSA ELADÓ!
ÁLLAMI TÁMOGATÁS, (2,6 M Ft)
ÁFA VISSZAIGÉNYLÉS (5%)
ILLETÉKMENTESSÉG (4 %)
BABAVÁRÓ ÉS TÁMOGATOTT CSOK HITEL.
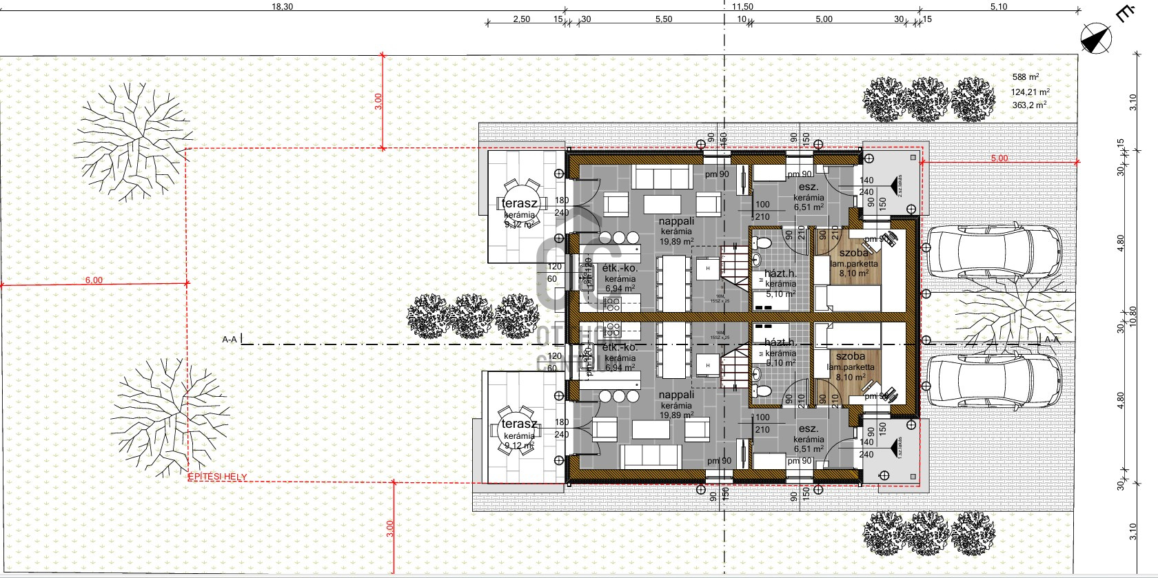
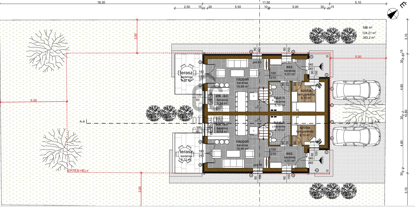
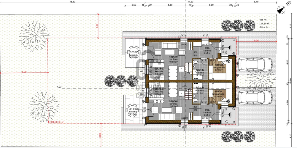
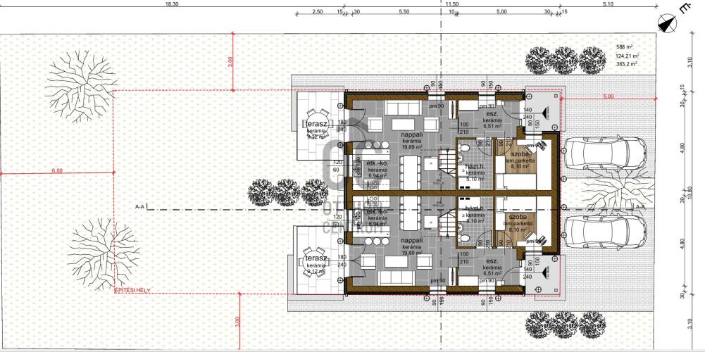
Eladó Budatétényben egy kétszintes, nettó 88,4(bruttó 110) nm-es N + 4 szobás iker ház, 588 nm-es telken(1 számú lakás).
A ház 30-as POROTHERM téglából épül, 15 cm-es DRYVIT szigeteléssel. A nyílászárók háromrétegű üvegezésűek.
A fűtést hőszivattyú (6 KW) biztosítja, padlófűtés hőleadással.
A lakások kulcsrakész állapotban kerülnek átadásra. A burkolatokat, szanitereket, valamint a beltéri ajtókat az új tulajdonos választhatja ki. A parkolásra felszíni kocsibeálló áll rendelkezésre.
1. Lakás: nettó 88,4(bruttó 110) nm-es N + 4 szobás , a hozzá tartozó telekrész ~230 nm Ára: 152M Ft
2. Lakás: nettó 88,4(bruttó 110) nm-es N + 4 szobás , a hozzá tartozó telekrész ~230 nm Ára: 152M Ft
Az infrastruktúrája jó, óvoda, iskola, bevásárlási lehetőség gyalogosan pár perc alatt elérhető.
Valamint a buszmegálló is pár perc sétatávolságra található.
Várható átadás 2026.Nyár.
Az Otthon Centrum irodáiban hitel tanácsadó segíti az igénylés teljes folyamatát, hitel felvétel esetén megkeresi az Önnek legmegfelelőbb ajánlatot a bankok kínálatából.
Vegye igénybe ingyenes szolgáltatásainkat!
Az ingatlan rugalmasan nézhető. Hívjon, egyeztessünk időpontot.
ÁFA VISSZAIGÉNYLÉS (5%)
ILLETÉKMENTESSÉG (4 %)
BABAVÁRÓ ÉS TÁMOGATOTT CSOK HITEL.
Eladó Budatétényben egy kétszintes, nettó 88,4(bruttó 110) nm-es N + 4 szobás iker ház, 588 nm-es telken(1 számú lakás).
A ház 30-as POROTHERM téglából épül, 15 cm-es DRYVIT szigeteléssel. A nyílászárók háromrétegű üvegezésűek.
A fűtést hőszivattyú (6 KW) biztosítja, padlófűtés hőleadással.
A lakások kulcsrakész állapotban kerülnek átadásra. A burkolatokat, szanitereket, valamint a beltéri ajtókat az új tulajdonos választhatja ki. A parkolásra felszíni kocsibeálló áll rendelkezésre.
1. Lakás: nettó 88,4(bruttó 110) nm-es N + 4 szobás , a hozzá tartozó telekrész ~230 nm Ára: 152M Ft
2. Lakás: nettó 88,4(bruttó 110) nm-es N + 4 szobás , a hozzá tartozó telekrész ~230 nm Ára: 152M Ft
Az infrastruktúrája jó, óvoda, iskola, bevásárlási lehetőség gyalogosan pár perc alatt elérhető.
Valamint a buszmegálló is pár perc sétatávolságra található.
Várható átadás 2026.Nyár.
Az Otthon Centrum irodáiban hitel tanácsadó segíti az igénylés teljes folyamatát, hitel felvétel esetén megkeresi az Önnek legmegfelelőbb ajánlatot a bankok kínálatából.
Vegye igénybe ingyenes szolgáltatásainkat!
Az ingatlan rugalmasan nézhető. Hívjon, egyeztessünk időpontot.
Regisztrációs szám
U0049084
Az ingatlan adatai
Értékesités
eladó
Jogi státusz
új
Jelleg
ház
Építési mód
tégla
Méret
88,4 m²
Bruttó méret
110 m²
Telek méret
588 m²
Terasz / erkély mérete
13 m²
Fűtés
hőszivattyú
Belmagasság
270 cm
Lakáson belüli szintszám
2
Tájolás
Dél
Állapot
Kiváló
Homlokzat állapota
Kiváló
Környék
csendes, jó közlekedés, zöld, központi
Építés éve
2026
Fürdőszobák száma
2
Víz
Van
Gáz
Utcán
Villany
Van
Csatorna
Van
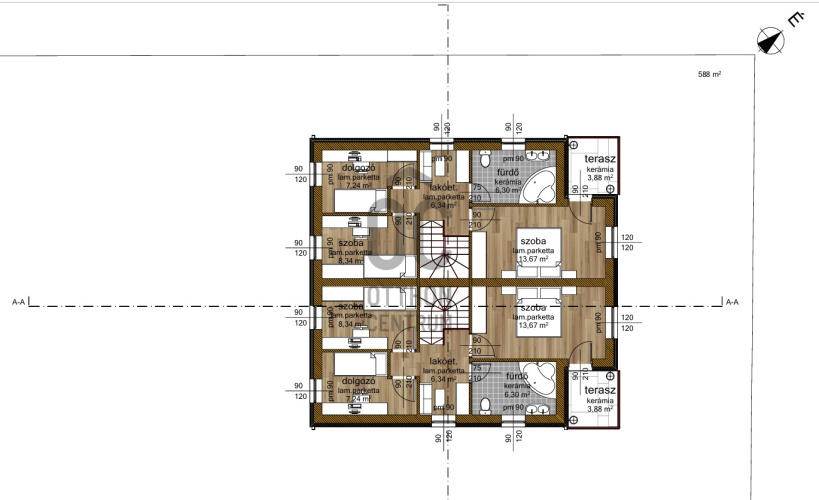
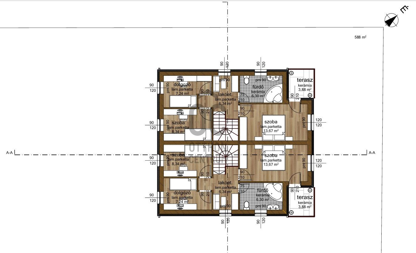
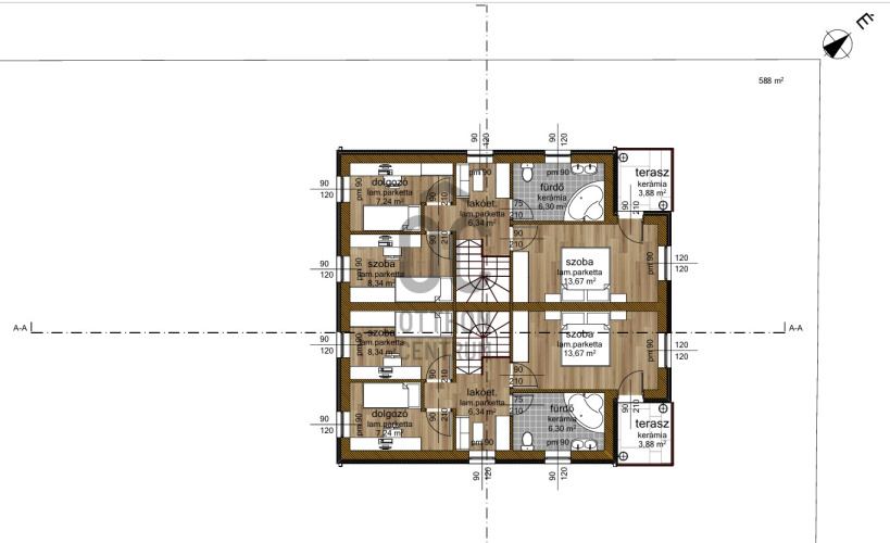
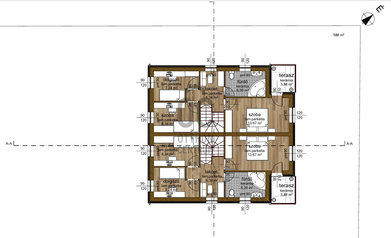
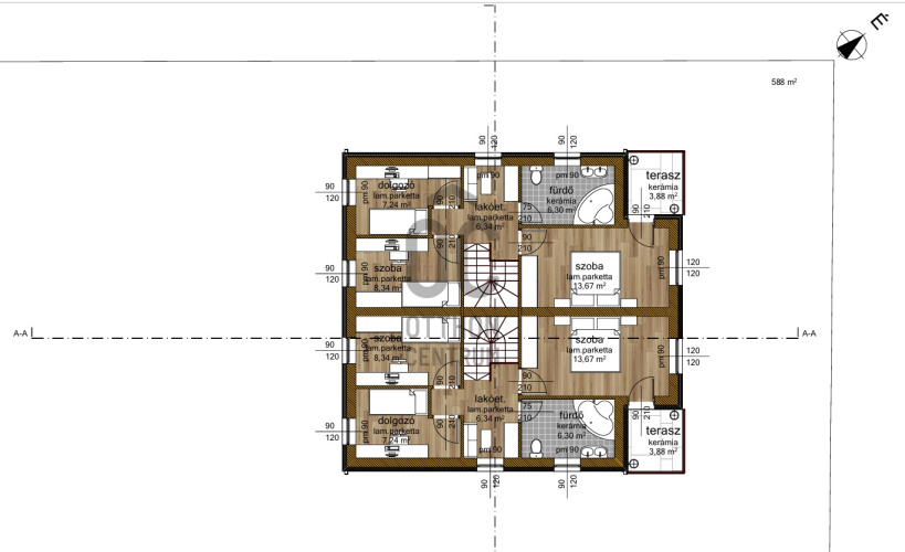
Helyiségek
előszoba
6.51 m²
háztartási helyiség
5.1 m²
szoba
8.1 m²
konyha-étkező
6.94 m²
nappali
19.9 m²
terasz
9.12 m²
közlekedő
6.34 m²
szoba
7.24 m²
szoba
8.34 m²
szoba
13.67 m²
fürdőszoba-wc
6.3 m²
erkély
3.9 m²
Váczi Zsófia
Hitelszakértő