Eladó újépítésű lakás, U0049011
Budapest XV. kerület, Pestújhely

147 500 000 Ft

383 000 €

  • 142m²
  • 6 szoba
  • 1. emelet
Kiemelt megbízás

**Rare opportunity in Pestújhely – Newly built apartment at a competitive price per square meter!**

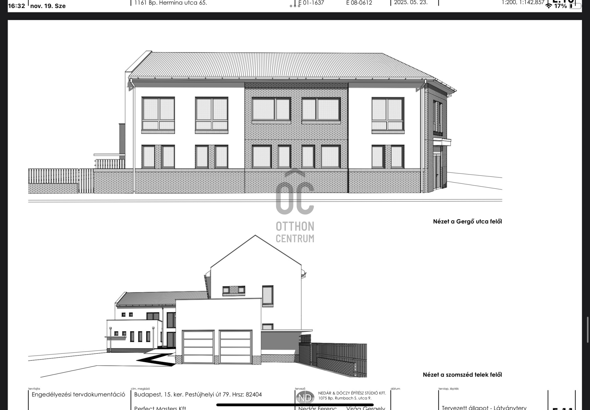
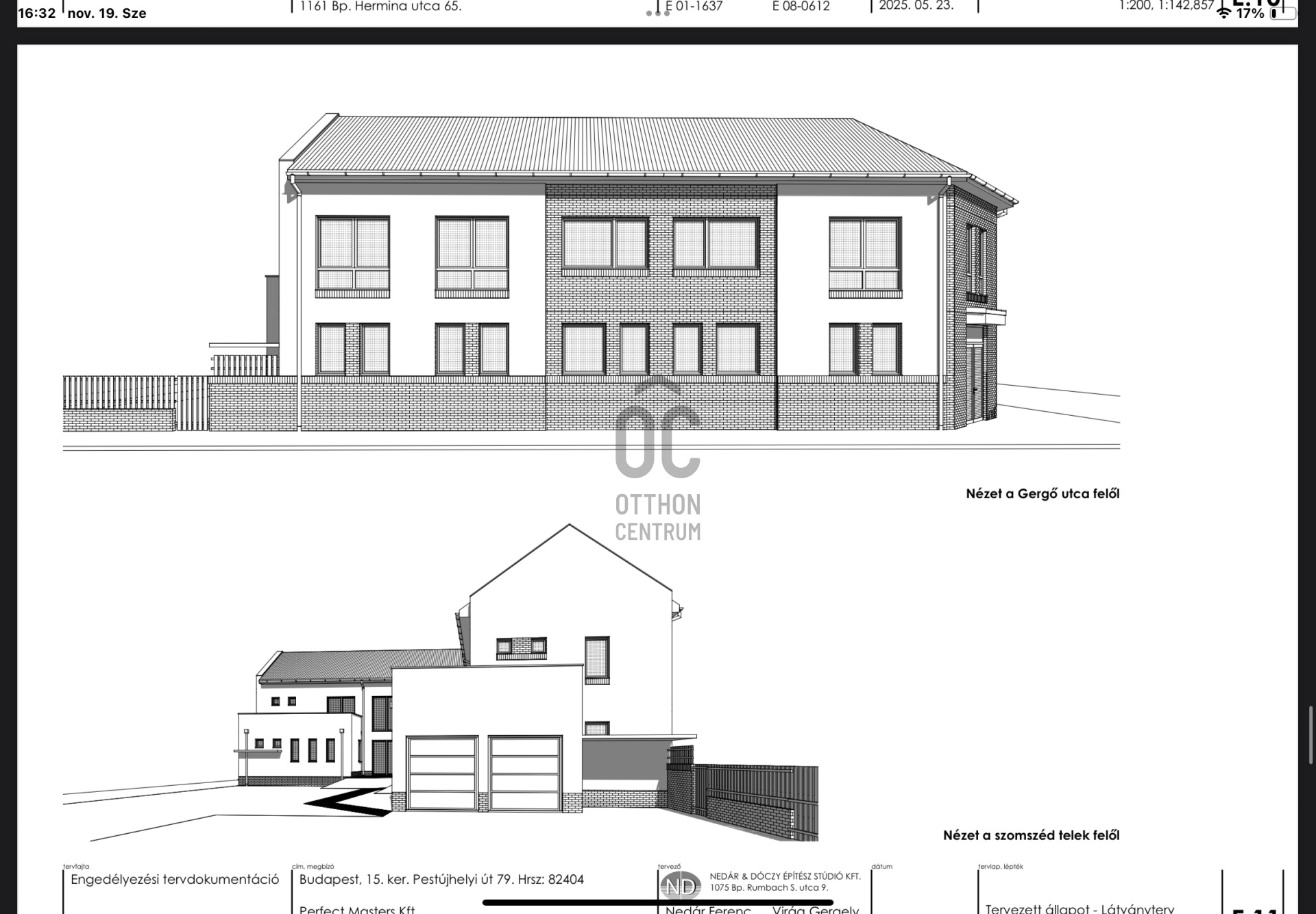
Here is the translated text in English: Available now! For sale in Pestújhely is a 142 m², living room + 5 room, newly built, two-story apartment on the first floor with a large 16.91 m² balcony, in a building with only 4 apartments! Located in one of the most desirable areas of the XV district, the property features bright, elegant, modern interiors and an excellent layout. Layout – Thoughtful, family-friendly design Lower level (88.5 m²): Spacious living room with American kitchen 3 separately accessible rooms Bathroom Toilet with washbasin 16.91 m² balcony with a beautiful suburban panorama Upper level: 2 separately accessible rooms Bathroom with toilet The apartment is an ideal choice for larger families looking for a quality, long-term home. ✨ Premium technical content – without compromises Modern engineering: Heat pump floor and ceiling heating Ceiling cooling + fan-coil system Ariston smart hot water system AA–B energy classification → low utility costs, maximum comfort Quality building materials: Triple-glazed VEKA windows 12 cm Dryvit facade insulation + 25 cm attic insulation Silka soundproof walls → excellent sound insulation Modern, elegant tiles and interior doors Clean, modern architectural style The property is free of encumbrances and newly built. 3% financing option available. The buyer can flexibly decide on tiles, sanitary ware, and painting. Available for possession by the end of 2026. Excellent location – everything at hand School, kindergarten, shops, medical office – just a few minutes' walk Quiet, organized, safe street Excellent public transport → quick access to the city center An ideal suburban atmosphere and a central location are a rare combination. Additional options The apartment includes – and must be purchased: Closed garage: 8 million HUF or Parking space: 4 million HUF Own, separate, lockable storage: 4 million HUF This apartment is not just a modern, comfortable home, but also a high-technical content, value-retaining investment in the best part of Pestújhely. For inquiries or to arrange a viewing, I look forward to your call! Krasznai Izabella – Home Advisor

Regisztrációs szám

U0049011

Az ingatlan adatai

Értékesités
eladó
Jogi státusz
új
Jelleg
lakás
Építési mód
tégla
Méret
142 m²
Bruttó méret
160 m²
Terasz / erkély mérete
16,9 m²
Fűtés
hőszivattyú
Belmagasság
260 cm
Lakáson belüli szintszám
2
Tájolás
Dél-nyugat
Lépcsőház típusa
zárt lépcsőház
Állapot
Kiváló
Homlokzat állapota
Kiváló
Lépcsőház állapota
Kiváló
Környék
csendes, jó közlekedés, zöld
Építés éve
2026
Fürdőszobák száma
2
Fekvés
utcai
Garázs
Kötelezően vásárolandó
Víz
Van
Villany
Van
Csatorna
Van
Kertkapcsolatos
igen
Tároló
Kötelezően vásárolandó

Helyiségek

előszoba
228 m²
wc-kézmosó
3.94 m²
szoba
11.35 m²
nappali-konyha
33.09 m²
közlekedő
8.17 m²
szoba
11.51 m²
szoba
12.33 m²
fürdőszoba-wc
5.64 m²
erkély
16.91 m²
garázs
13 m²
tároló
4 m²
Zaracsi Szilvia
Zaracsi Szilvia

Hitelszakértő

Irodánk kínálatából - XVI. kerület - Csömöri út

for sale semi-detached house

Index image
data_sheet.details.realestate.section.main.otthonstart_flag.label
20

for sale apartment

Index image
25

for sale new construction apartment

Index image
8

for sale new construction apartment

Index image
8