Elérhető Otthon Start hitellel
Eladó újépítésű családi ház,
U0049006
Dunaharaszti
49 900 000 Ft
132 000 €
- 83m²
- 3 szoba
Dunaharasztin 450 m2-es saroktelken befejezésre váró családi ház ELADÓ!
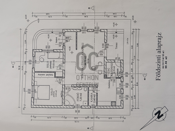
Dunaharasztin befejezésre váró br. 99,66 m2-es, nettó 83,01 m2-es, nappali + 2 hálószobás családi ház kerül most értékesítésre!
Tervezett főbb paraméterek:
Nappali-konyha-étkező: 45 m2
Szoba: 15 m2
Szoba: 10 m2
Fürdő, kamra, kazánház, teraszok
Az ingatlan túlnyomó részt, koszorúig készült el.
Közművek: víz, csatorna, villany bevezetve, gáz az utcán.
Tervezett műszaki adatok:
- porotherm 30-as tégla falazat
- gázcirkó fűtés
- mediterrán cserépfedés
- 5 légkamrás műanyag, hőszigetelő ablakok
- fa tetőszerkezet
A befejezési munkálatokban, a tulajdonos, igény esetén segítséget tud nyújtani!
A telek LKe-3-as besorolású 30 %-os beépíthetőséggel, akár nagyobb ingatlan is kivitelezhető rá!
További információkért kérem keressen!
Tervezett főbb paraméterek:
Nappali-konyha-étkező: 45 m2
Szoba: 15 m2
Szoba: 10 m2
Fürdő, kamra, kazánház, teraszok
Az ingatlan túlnyomó részt, koszorúig készült el.
Közművek: víz, csatorna, villany bevezetve, gáz az utcán.
Tervezett műszaki adatok:
- porotherm 30-as tégla falazat
- gázcirkó fűtés
- mediterrán cserépfedés
- 5 légkamrás műanyag, hőszigetelő ablakok
- fa tetőszerkezet
A befejezési munkálatokban, a tulajdonos, igény esetén segítséget tud nyújtani!
A telek LKe-3-as besorolású 30 %-os beépíthetőséggel, akár nagyobb ingatlan is kivitelezhető rá!
További információkért kérem keressen!
Regisztrációs szám
U0049006
Az ingatlan adatai
Értékesités
eladó
Jogi státusz
új
Jelleg
ház
Építési mód
tégla
Méret
83 m²
Bruttó méret
99,6 m²
Telek méret
450 m²
Fűtés
egyéb
Belmagasság
270 cm
Tájolás
Dél-nyugat
Állapot
Jó
Homlokzat állapota
Jó
Építés éve
2011
Fürdőszobák száma
1
Víz
Van
Gáz
Utcán
Villany
Van
Csatorna
Van
Helyiségek
nappali-konyha
44.75 m²
kazánház
3.78 m²
fürdőszoba-wc
7.2 m²
kamra
2.4 m²
hálószoba
14.85 m²
hálószoba
10.03 m²
Joó Krisztina
Hitelszakértő