Elérhető Otthon Start hitellel
Eladó újépítésű ikerház,
U0049004
Dömsöd
49 900 000 Ft
130 000 €
- 64m²
- 3 szoba
Dömsödön eladó
• újépítésű
• ikerház első fele
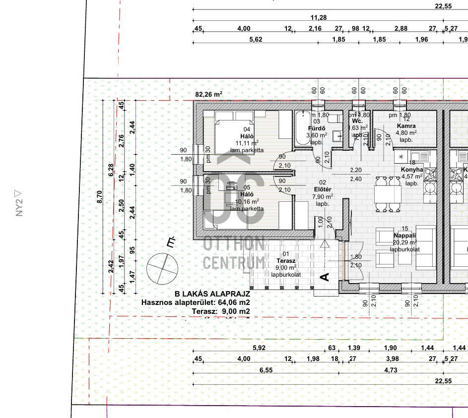
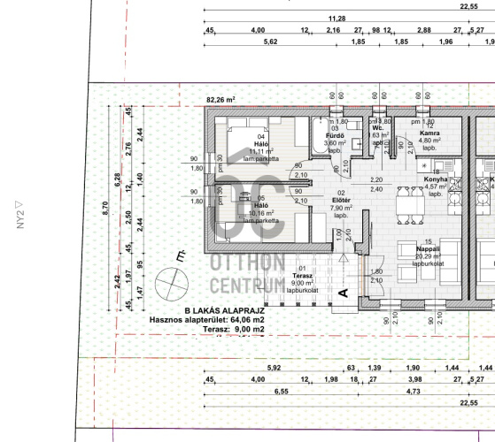
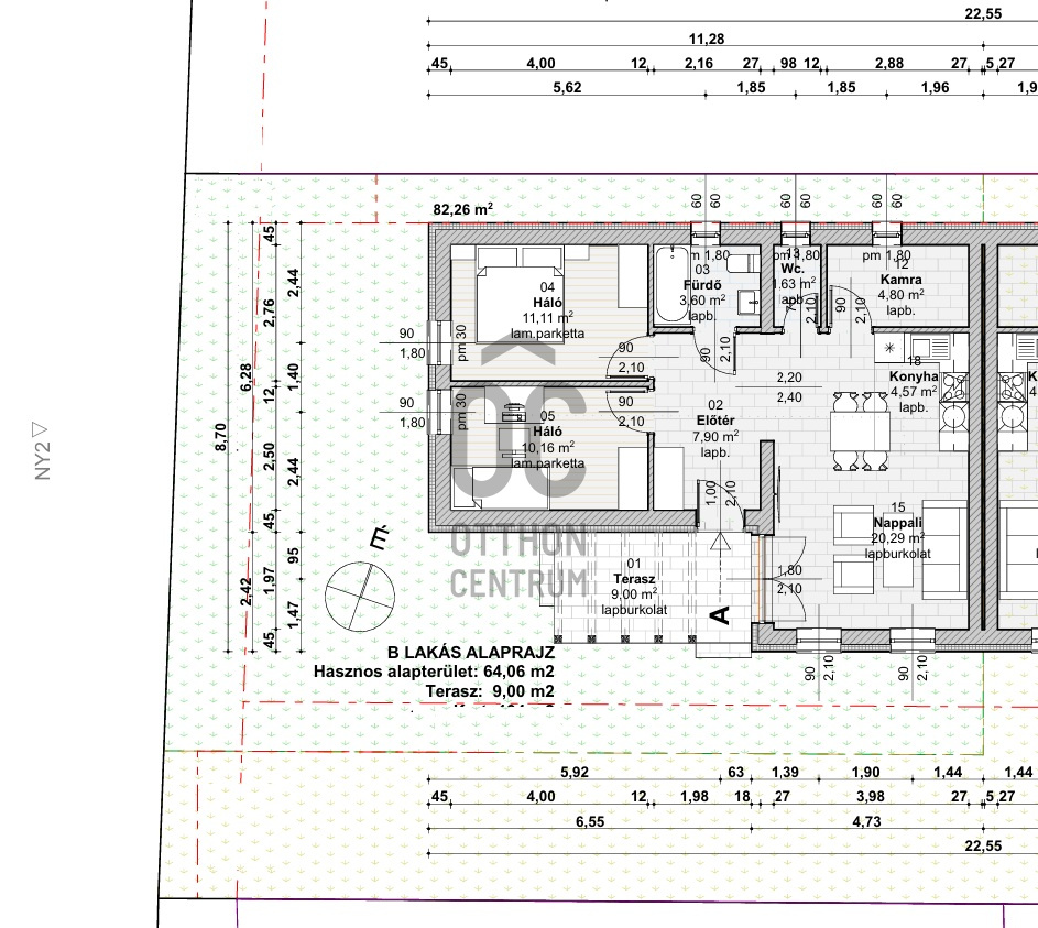
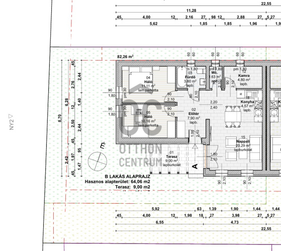
• nettó 64 m2, bruttó 82.26 m2
• amerikai konyhás nappali + 2 hálószoba
• fűtés: hőszivattyú + padlófűtés
• 10 cm grafitos szigetelés
• választható burkolatok: hidegburkolatok: 4.500 Ft/nm-ig. (30x30 sztender méretig),
meleg burkolatok: 3.500 Ft/nm-ig
• telek: 276 m2
• terasz: 9 m2
Átadás: 2026 nyár
• újépítésű
• ikerház első fele
• nettó 64 m2, bruttó 82.26 m2
• amerikai konyhás nappali + 2 hálószoba
• fűtés: hőszivattyú + padlófűtés
• 10 cm grafitos szigetelés
• választható burkolatok: hidegburkolatok: 4.500 Ft/nm-ig. (30x30 sztender méretig),
meleg burkolatok: 3.500 Ft/nm-ig
• telek: 276 m2
• terasz: 9 m2
Átadás: 2026 nyár
Regisztrációs szám
U0049004
Az ingatlan adatai
Értékesités
eladó
Jogi státusz
új
Jelleg
ház
Építési mód
tégla
Méret
64 m²
Bruttó méret
82,2 m²
Telek méret
276,2 m²
Terasz / erkély mérete
9 m²
Kert méret
194 m²
Fűtés
hőszivattyú
Belmagasság
260 cm
Tájolás
Dél-kelet
Állapot
Kiváló
Homlokzat állapota
Kiváló
Környék
csendes
Építés éve
2025
Fürdőszobák száma
1
Társaház kert
igen
Víz
Van
Villany
Van
Csatorna
Van
Helyiségek
nappali-konyha
24.86 m²
hálószoba
11.11 m²
hálószoba
10.16 m²
előszoba
7.9 m²
fürdőszoba-wc
3.6 m²
wc
1.63 m²
kamra
4.8 m²
terasz
9 m²
Joó Krisztina
Hitelszakértő