Elérhető Otthon Start hitellel
Eladó újépítésű családi ház,
U0048906
Érd, Dombosváros
139 900 000 Ft
361 000 €
- 128m²
- 4 szoba
ÉRD DOMBVÁROS RÉSZÉN ÚJÉPÍTÉSŰ, HŰSZIVATTYÚS CSALÁDI HÁZ ELADÓ!
3%-OS HITEL
ÁLLAMI TÁMOGATÁS, (2,6 M Ft)
ÁFA VISSZAIGÉNYLÉS (5%)
ILLETÉKMENTESSÉG (4 %)
BABAVÁRÓ ÉS TÁMOGATOTT CSOK HITEL.
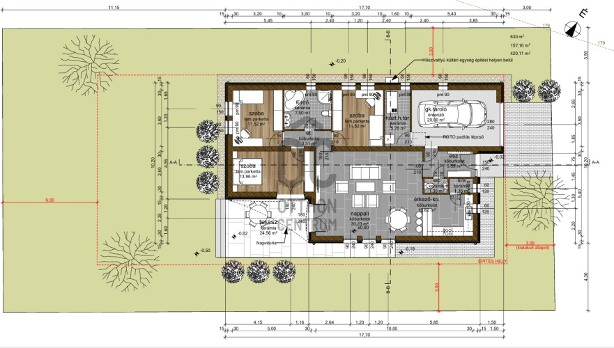
Eladó egy földszintes, nettó 128(bruttó 157) nm-es N + 3 szobás családi ház, 630 nm-es telken.
A ház 30-as POROTHERM téglából épül, 15 cm-es DRYVIT szigeteléssel.
A nyílászárók háromrétegű üvegezésűek, redőnnyel, szúnyoghálóval felszereltek.
A fűtést hőszivattyú (6 KW) biztosítja, padlófűtés hőleadással.
A ház hűtésére egy 3,5 KW-os(hűtő-fűtő)klíma fog gondoskodni.
A ház kulcsrakész állapotban kerül átadásra. A burkolatokat, szanitereket, valamint a beltéri ajtókat az új tulajdonos választhatja ki. A parkolásra egyállású garázs valamint egy felszíni kocsibeálló áll majd rendelkezésre.
Az infrastruktúrája jó, óvoda, iskola, bevásárlási lehetőség autóva pár perc alatt elérhető.
Valamint a buszmegálló 10 perc sétatávolságra található (Kelenföld- Érd, Városközpont)
Átadás 2025.Év vége.
Ha megfelelő lehet az Ön részére ez az ingatlan, kérem hívjon, egyeztessünk időpontot.
Az Otthon Centrum irodáiban hitel tanácsadó segíti az igénylés teljes folyamatát, hitel felvétel esetén megkeresi az Önnek legmegfelelőbb ajánlatot a bankok kínálatából.
Vegye igénybe ingyenes szolgáltatásainkat!
ÁLLAMI TÁMOGATÁS, (2,6 M Ft)
ÁFA VISSZAIGÉNYLÉS (5%)
ILLETÉKMENTESSÉG (4 %)
BABAVÁRÓ ÉS TÁMOGATOTT CSOK HITEL.
Eladó egy földszintes, nettó 128(bruttó 157) nm-es N + 3 szobás családi ház, 630 nm-es telken.
A ház 30-as POROTHERM téglából épül, 15 cm-es DRYVIT szigeteléssel.
A nyílászárók háromrétegű üvegezésűek, redőnnyel, szúnyoghálóval felszereltek.
A fűtést hőszivattyú (6 KW) biztosítja, padlófűtés hőleadással.
A ház hűtésére egy 3,5 KW-os(hűtő-fűtő)klíma fog gondoskodni.
A ház kulcsrakész állapotban kerül átadásra. A burkolatokat, szanitereket, valamint a beltéri ajtókat az új tulajdonos választhatja ki. A parkolásra egyállású garázs valamint egy felszíni kocsibeálló áll majd rendelkezésre.
Az infrastruktúrája jó, óvoda, iskola, bevásárlási lehetőség autóva pár perc alatt elérhető.
Valamint a buszmegálló 10 perc sétatávolságra található (Kelenföld- Érd, Városközpont)
Átadás 2025.Év vége.
Ha megfelelő lehet az Ön részére ez az ingatlan, kérem hívjon, egyeztessünk időpontot.
Az Otthon Centrum irodáiban hitel tanácsadó segíti az igénylés teljes folyamatát, hitel felvétel esetén megkeresi az Önnek legmegfelelőbb ajánlatot a bankok kínálatából.
Vegye igénybe ingyenes szolgáltatásainkat!
Regisztrációs szám
U0048906
Az ingatlan adatai
Értékesités
eladó
Jogi státusz
új
Jelleg
ház
Építési mód
tégla
Méret
128 m²
Bruttó méret
157 m²
Telek méret
630 m²
Terasz / erkély mérete
25 m²
Fűtés
values.realestate.futes.27
Belmagasság
270 cm
Tájolás
Dél
Állapot
Kiváló
Homlokzat állapota
Kiváló
Környék
csendes, jó közlekedés, zöld
Építés éve
2025
Fürdőszobák száma
1
Garázs férőhely
1
Víz
Van
Gáz
Utcán
Villany
Van
Csatorna
Van
Helyiségek
előszoba
5.58 m²
wc-kézmosó
1.35 m²
konyha-étkező
15.62 m²
kamra
1.35 m²
háztartási helyiség
5.76 m²
nappali
30.23 m²
közlekedő
3.31 m²
szoba
11.52 m²
szoba
13.96 m²
szoba
11.52 m²
fürdőszoba-wc
7.5 m²
terasz
25 m²
Váczi Zsófia
Hitelszakértő