data_sheet.details.realestate.section.main.otthonstart_flag.label
For sale family house,
H511696
Gyömrő
99,000,000 Ft
261,000 €
- 125m²
- 4 Rooms
Földszintes, N+3 szoba, dupla garázs, jó helyen, nagy telekkel!
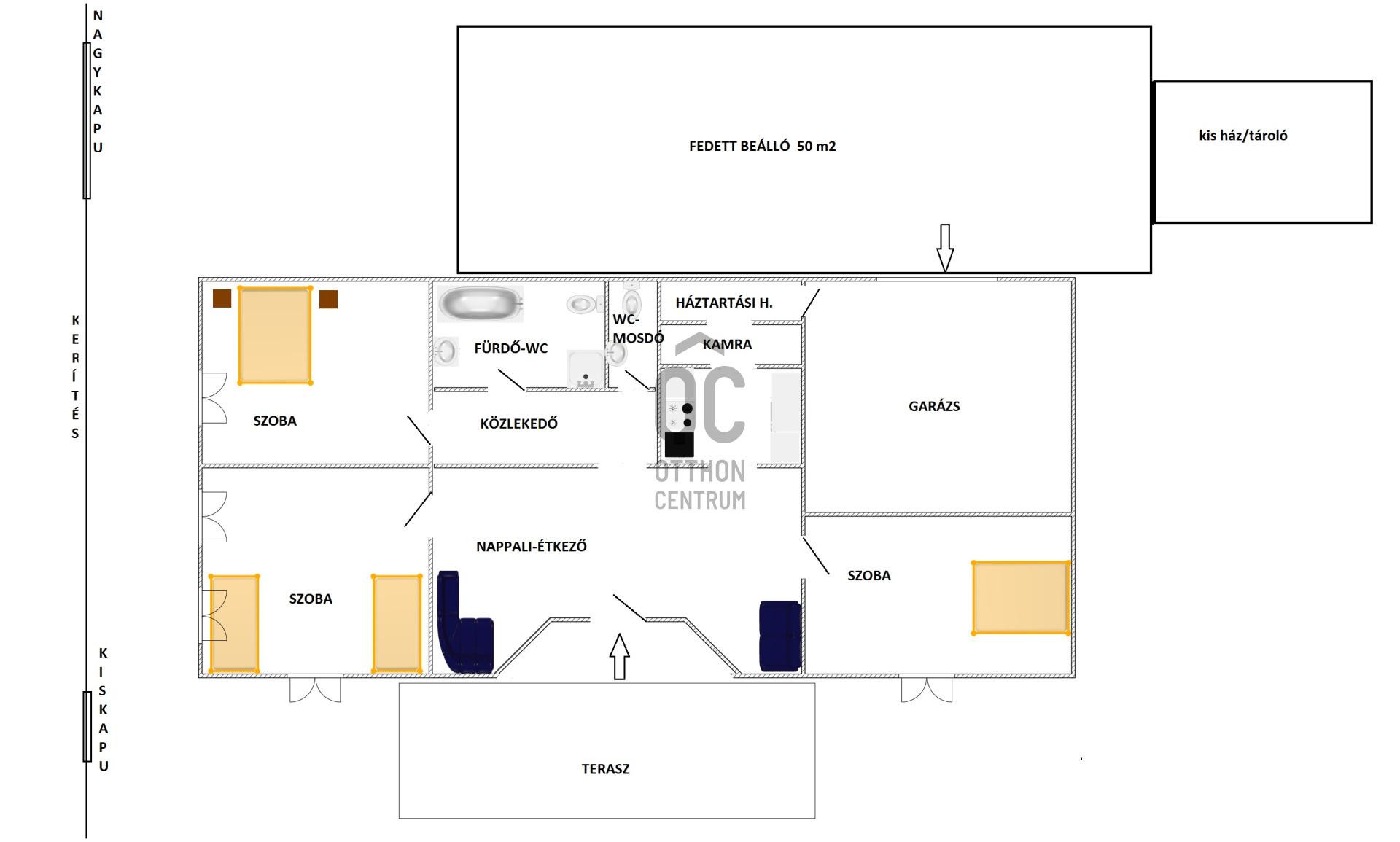
Gyömrő egyik legjobb helyén eladó egy földszintes, nappali plusz 3 szobás, dupla garázsos családi ház nagy telekkel.
Az ingatlan: egy csaknem 1200 nm-es, összközműves, parkosított telek és a rajta álló 142 nm -es, cseréptetős ház.(és még sokminden más is)
A telken álló, többségében örökzöld fákat és bokrokat, még az első, kertészmérnök tulajdonos ültette.. -fúrt kút is rendelkezésre áll!
A főépületen kívül, van egy nettó 15 nm -es kis téglaház is amely jelenleg tárolóként működik, ezenkívül egy kerti grillsütőhely szaletli is.
A falazat 40 cm-es ytong tégla plusz 5 cm dryvit szigetelés, a fűtés és a melegvíz előállítása Vailant gáz-cirkó kazánról történik, mindenhol van padlófűtés, sőt a szobákban még radiátor is, a nyílászárók közül az ablakok hőszigetelt üvegezésűek és a ház jellegéhez megfelelően fából készültek, a hűtéshez minden helyiségben légkondcionáló került felszerelésre.
Az utcáról egy távirányítású kapun juthatunk be egy térburkolattal ellátott 50 nm-es!!, polkarbonát tetővel fedett részre, innen megközelíthető egy 10 nm-es pince és
ugyancsak itt tudunk behajtani a kétállásos, fűtött, 26 nm-es garázsba is.(amelyből pedig bevásárlást követően praktikusan megközelíthető a ház kamrája, illetve konyhája)
A lakás jó tájolású, kompakt, világos, energetikailag is jó, 3 nagy méretű szoba (16,18 és 19 nm)konyha, fürdőszoba-wc, külön wc és mosdó, közlekedő, kamra, háztartási helyiségekből áll.
Az ingatlan az autópályák és Budapest közelségében, jó megközelíthető helyen fekszik, a városon belüli megközelíthetősége akár gyalogosan is kiváló.
A környék kertvárosi, csendes és zöld, a kert hatalmas, az ingatlan biztonságát speciális risztók és érzékelők is fokozzák.
Gyalogosan is gyorsan, 10-12 percen belül elérhető: Óvoda, Iskola, Gimnázium, Művelődési ház, Vasút állomás, Orvosi rendelő, Tófürdő, Városháza, Szabadság-Tér.
Az ingatlan: egy csaknem 1200 nm-es, összközműves, parkosított telek és a rajta álló 142 nm -es, cseréptetős ház.(és még sokminden más is)
A telken álló, többségében örökzöld fákat és bokrokat, még az első, kertészmérnök tulajdonos ültette.. -fúrt kút is rendelkezésre áll!
A főépületen kívül, van egy nettó 15 nm -es kis téglaház is amely jelenleg tárolóként működik, ezenkívül egy kerti grillsütőhely szaletli is.
A falazat 40 cm-es ytong tégla plusz 5 cm dryvit szigetelés, a fűtés és a melegvíz előállítása Vailant gáz-cirkó kazánról történik, mindenhol van padlófűtés, sőt a szobákban még radiátor is, a nyílászárók közül az ablakok hőszigetelt üvegezésűek és a ház jellegéhez megfelelően fából készültek, a hűtéshez minden helyiségben légkondcionáló került felszerelésre.
Az utcáról egy távirányítású kapun juthatunk be egy térburkolattal ellátott 50 nm-es!!, polkarbonát tetővel fedett részre, innen megközelíthető egy 10 nm-es pince és
ugyancsak itt tudunk behajtani a kétállásos, fűtött, 26 nm-es garázsba is.(amelyből pedig bevásárlást követően praktikusan megközelíthető a ház kamrája, illetve konyhája)
A lakás jó tájolású, kompakt, világos, energetikailag is jó, 3 nagy méretű szoba (16,18 és 19 nm)konyha, fürdőszoba-wc, külön wc és mosdó, közlekedő, kamra, háztartási helyiségekből áll.
Az ingatlan az autópályák és Budapest közelségében, jó megközelíthető helyen fekszik, a városon belüli megközelíthetősége akár gyalogosan is kiváló.
A környék kertvárosi, csendes és zöld, a kert hatalmas, az ingatlan biztonságát speciális risztók és érzékelők is fokozzák.
Gyalogosan is gyorsan, 10-12 percen belül elérhető: Óvoda, Iskola, Gimnázium, Művelődési ház, Vasút állomás, Orvosi rendelő, Tófürdő, Városháza, Szabadság-Tér.
Registration Number
H511696
Property Details
Sales
for sale
Legal Status
used
Character
house
Construction Method
brick
Net Size
125 m²
Gross Size
146 m²
Plot Size
1,173 m²
Size of Terrace / Balcony
18 m²
Garden Size
1,000 m²
Heating
Gas circulator
Ceiling Height
260 cm
Orientation
South-West
Condition
Good
Condition of Facade
Good
Basement
Independent
Neighborhood
quiet, green
Year of Construction
2003
Number of Bathrooms
1
Condominium Garden
yes
Garage
Included in the price
Garage Spaces
2
Number of Covered Parking Spots
3
Water
Available
Gas
Available
Electricity
Available
Sewer
Available
Storage
Independent
Rooms
open-plan living and dining room
20 m²
room
16 m²
room
19 m²
room
18 m²
bathroom-toilet
8 m²
toilet-washbasin
1 m²
corridor
8 m²
kitchen
6 m²
pantry
2.5 m²
utility room
2.5 m²
garage
26 m²
storage
15 m²
cellar
11 m²
Váczi Zsófia
Credit Expert