Elérhető Otthon Start hitellel
Eladó családi ház,
H511696
Gyömrő
99 000 000 Ft
261 000 €
- 125m²
- 4 szoba
Földszintes, N+3 szoba, dupla garázs, jó helyen, nagy telekkel!
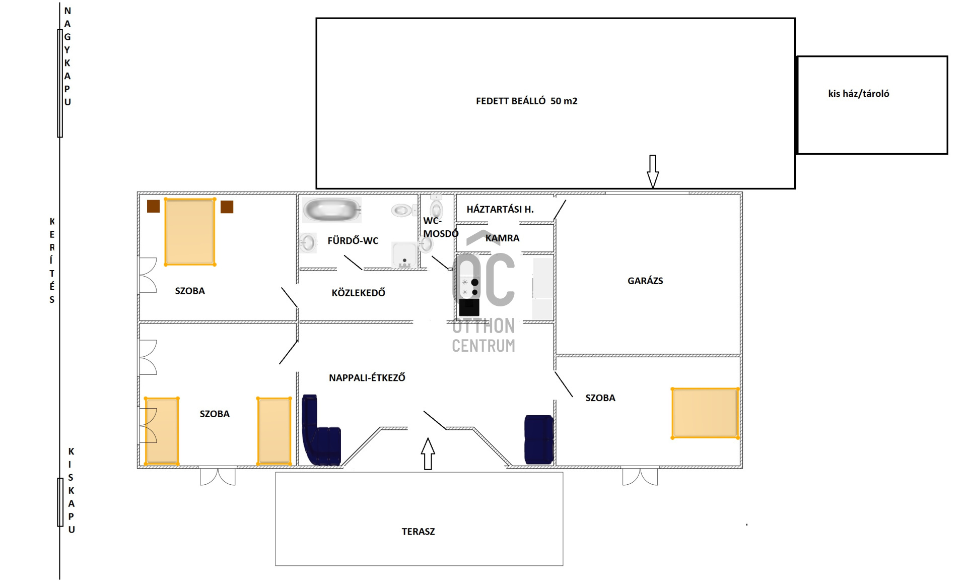
Gyömrő egyik legjobb helyén eladó egy földszintes, nappali plusz 3 szobás, dupla garázsos családi ház nagy telekkel.
Az ingatlan: egy csaknem 1200 nm-es, összközműves, parkosított telek és a rajta álló 142 nm -es, cseréptetős ház.(és még sokminden más is)
A telken álló, többségében örökzöld fákat és bokrokat, még az első, kertészmérnök tulajdonos ültette.. -fúrt kút is rendelkezésre áll!
A főépületen kívül, van egy nettó 15 nm -es kis téglaház is amely jelenleg tárolóként működik, ezenkívül egy kerti grillsütőhely szaletli is.
A falazat 40 cm-es ytong tégla plusz 5 cm dryvit szigetelés, a fűtés és a melegvíz előállítása Vailant gáz-cirkó kazánról történik, mindenhol van padlófűtés, sőt a szobákban még radiátor is, a nyílászárók közül az ablakok hőszigetelt üvegezésűek és a ház jellegéhez megfelelően fából készültek, a hűtéshez minden helyiségben légkondcionáló került felszerelésre.
Az utcáról egy távirányítású kapun juthatunk be egy térburkolattal ellátott 50 nm-es!!, polkarbonát tetővel fedett részre, innen megközelíthető egy 10 nm-es pince és
ugyancsak itt tudunk behajtani a kétállásos, fűtött, 26 nm-es garázsba is.(amelyből pedig bevásárlást követően praktikusan megközelíthető a ház kamrája, illetve konyhája)
A lakás jó tájolású, kompakt, világos, energetikailag is jó, 3 nagy méretű szoba (16,18 és 19 nm)konyha, fürdőszoba-wc, külön wc és mosdó, közlekedő, kamra, háztartási helyiségekből áll.
Az ingatlan az autópályák és Budapest közelségében, jó megközelíthető helyen fekszik, a városon belüli megközelíthetősége akár gyalogosan is kiváló.
A környék kertvárosi, csendes és zöld, a kert hatalmas, az ingatlan biztonságát speciális risztók és érzékelők is fokozzák.
Gyalogosan is gyorsan, 10-12 percen belül elérhető: Óvoda, Iskola, Gimnázium, Művelődési ház, Vasút állomás, Orvosi rendelő, Tófürdő, Városháza, Szabadság-Tér.
Az ingatlan: egy csaknem 1200 nm-es, összközműves, parkosított telek és a rajta álló 142 nm -es, cseréptetős ház.(és még sokminden más is)
A telken álló, többségében örökzöld fákat és bokrokat, még az első, kertészmérnök tulajdonos ültette.. -fúrt kút is rendelkezésre áll!
A főépületen kívül, van egy nettó 15 nm -es kis téglaház is amely jelenleg tárolóként működik, ezenkívül egy kerti grillsütőhely szaletli is.
A falazat 40 cm-es ytong tégla plusz 5 cm dryvit szigetelés, a fűtés és a melegvíz előállítása Vailant gáz-cirkó kazánról történik, mindenhol van padlófűtés, sőt a szobákban még radiátor is, a nyílászárók közül az ablakok hőszigetelt üvegezésűek és a ház jellegéhez megfelelően fából készültek, a hűtéshez minden helyiségben légkondcionáló került felszerelésre.
Az utcáról egy távirányítású kapun juthatunk be egy térburkolattal ellátott 50 nm-es!!, polkarbonát tetővel fedett részre, innen megközelíthető egy 10 nm-es pince és
ugyancsak itt tudunk behajtani a kétállásos, fűtött, 26 nm-es garázsba is.(amelyből pedig bevásárlást követően praktikusan megközelíthető a ház kamrája, illetve konyhája)
A lakás jó tájolású, kompakt, világos, energetikailag is jó, 3 nagy méretű szoba (16,18 és 19 nm)konyha, fürdőszoba-wc, külön wc és mosdó, közlekedő, kamra, háztartási helyiségekből áll.
Az ingatlan az autópályák és Budapest közelségében, jó megközelíthető helyen fekszik, a városon belüli megközelíthetősége akár gyalogosan is kiváló.
A környék kertvárosi, csendes és zöld, a kert hatalmas, az ingatlan biztonságát speciális risztók és érzékelők is fokozzák.
Gyalogosan is gyorsan, 10-12 percen belül elérhető: Óvoda, Iskola, Gimnázium, Művelődési ház, Vasút állomás, Orvosi rendelő, Tófürdő, Városháza, Szabadság-Tér.
Regisztrációs szám
H511696
Az ingatlan adatai
Értékesités
eladó
Jogi státusz
használt
Jelleg
ház
Építési mód
tégla
Méret
125 m²
Bruttó méret
146 m²
Telek méret
1 173 m²
Terasz / erkély mérete
18 m²
Kert méret
1 000 m²
Fűtés
Gáz cirkó
Belmagasság
260 cm
Tájolás
Dél-nyugat
Állapot
Jó
Homlokzat állapota
Jó
Pince
Önálló
Környék
csendes, zöld
Építés éve
2003
Fürdőszobák száma
1
Társaház kert
igen
Garázs
Benne van az árban
Garázs férőhely
2
Fedett beállók száma
3
Víz
Van
Gáz
Van
Villany
Van
Csatorna
Van
Tároló
Önálló
Helyiségek
nappali-étkező
20 m²
szoba
16 m²
szoba
19 m²
szoba
18 m²
fürdőszoba-wc
8 m²
wc-kézmosó
1 m²
közlekedő
8 m²
konyha
6 m²
kamra
2.5 m²
háztartási helyiség
2.5 m²
garázs
26 m²
tároló
15 m²
pince
11 m²
Váczi Zsófia
Hitelszakértő