Elérhető Otthon Start hitellel
Eladó újépítésű ikerház,
U0048896
Kiskunlacháza
70 000 000 Ft
184 000 €
- 72m²
- 4 szoba
Kiskunlacháza újépítésű ikerház
1 HÓNAPON BELÜL KÖLTÖZHETŐ
HÁZ:
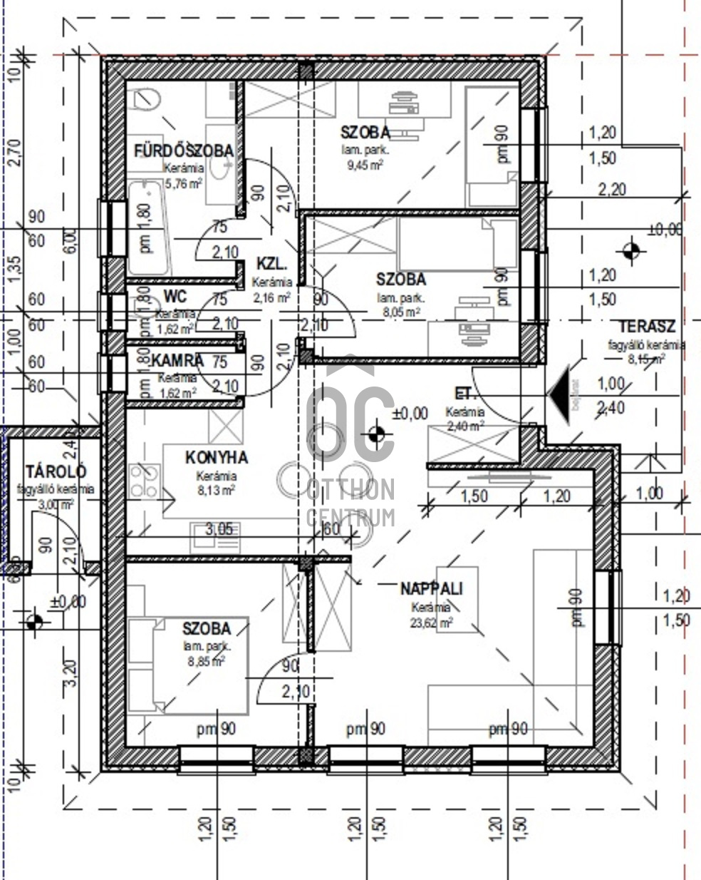
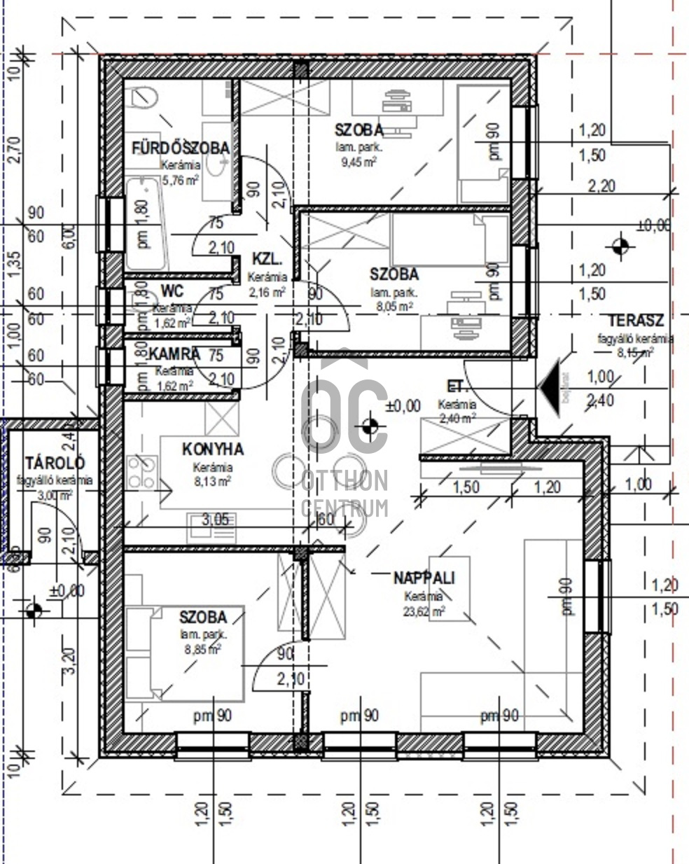
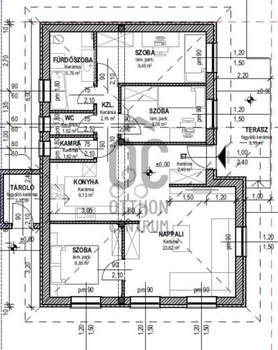
- br. 85 nm, nettó 72 nm nappali + 3 szoba
- 2025-ben épül
- minőségi anyagokból
- Porotherm tégla + dryvit szigetelés (12 cm ), Bramac tetőcserép
- biztonsági bejárati ajtó, 3 rétegű műanyag nyílászárók
- hőszívattyús fűtésrendszer - padlófűtés
- remek elosztású , napfényes
TELEK:
- 320 nm telek
- autóbeálló, járdák
- körbekerítve
Elhelyezkedés:
- Budapesttől 30 percre
- központi elhelyezkedés
- Éttermek, bevásárlási lehetőség, óvoda, iskola valamint a busz kényelmes sétával elérhető
HITEL ÉS CSOK igényelhető! Minden hivatalos ügyintézésben segítünk!
20 %-TÓL MÁR MOST FOGLALHATÓ!
ÁTADÁS: 2025.12 vége
1 HÓNAPON BELÜL KÖLTÖZHETŐ
HÁZ:
- br. 85 nm, nettó 72 nm nappali + 3 szoba
- 2025-ben épül
- minőségi anyagokból
- Porotherm tégla + dryvit szigetelés (12 cm ), Bramac tetőcserép
- biztonsági bejárati ajtó, 3 rétegű műanyag nyílászárók
- hőszívattyús fűtésrendszer - padlófűtés
- remek elosztású , napfényes
TELEK:
- 320 nm telek
- autóbeálló, járdák
- körbekerítve
Elhelyezkedés:
- Budapesttől 30 percre
- központi elhelyezkedés
- Éttermek, bevásárlási lehetőség, óvoda, iskola valamint a busz kényelmes sétával elérhető
HITEL ÉS CSOK igényelhető! Minden hivatalos ügyintézésben segítünk!
20 %-TÓL MÁR MOST FOGLALHATÓ!
ÁTADÁS: 2025.12 vége
Regisztrációs szám
U0048896
Az ingatlan adatai
Értékesités
eladó
Jogi státusz
új
Jelleg
ház
Építési mód
tégla
Méret
72 m²
Bruttó méret
80 m²
Telek méret
320 m²
Fűtés
hőszivattyú
Belmagasság
270 cm
Tájolás
Dél-nyugat
Állapot
Kiváló
Homlokzat állapota
Kiváló
Építés éve
2025
Fürdőszobák száma
1
Víz
Van
Gáz
Utcán
Villany
Van
Csatorna
Van
Helyiségek
előszoba
3 m²
nappali-konyha
32 m²
szoba
10 m²
szoba
9 m²
szoba
8 m²
wc
2 m²
kamra
2 m²
terasz
8 m²
Joó Krisztina
Hitelszakértő