Elérhető Otthon Start hitellel
Eladó újépítésű ikerház,
U0048712
Gyál
126 990 000 Ft
326 000 €
- 136,8m²
- 5 szoba
Megvételre kínálunk Gyálon csendes kis utcában ikerház felét.
A 2 lakásos lakóépület saját garázzsal és saját kert résszel rendelkezik.
Az építkezés jelen szakaszában igény szerint választható a nappali+3 hálószoba vagy a nappali+ 4 szoba kialakítás, illetve a burkolatok, a beltéri ajtók és a gépesített konyha választható.
Az ingatlan Gyál családi házas, csendes zöldövezetében, 574 m2-es telken helyezkedik el, 136 m2, 201 m2 használatú kerttel.
A ház H tarifás áramellátást kap, energetikai besorolása A+ lesz.
Tervezett átadás: 2025 december.
Az energetika besorolása A+.
Fűtés, hűtés, melegvíz:
Központi levegő–víz hőszivattyús rendszer szolgáltatja a fűtést, hűtést és a használati melegvizet.
Padlófűtés a teljes lakótérben, valamint fan-coil hűtés/fűtés a nappaliban és emeleti szobákban.
Okos vezérlés előkészítve:
Igény esetén helyiségenkénti termosztátos vezérlés és okosotthon rendszer is kialakítható.
Szerkezeti és műszaki adatok:
•Monolit vasbeton lemezalap – biztos, mozgásálló alapozás.
•Külső falak: 30 cm vastag Leier hőszigetelő tégla.
•Válaszfalak: Kiemelkedő hangszigetelésű Silka mészhomok tégla.
•Födémszerkezet: Hang- és tűzgátló tulajdonságokkal, statikai tervek szerint.
•Homlokzati hőszigetelés: 12 cm vastag EPS szigetelés.
•Tető monolit szerkezetű, szigetelés: 20 cm vastag üveggyapot, extra hőmegtartás érdekében.
Szigetelés: 20 cm vastag üveggyapot.
Nyílászárók és árnyékolástechnika:
•Biztonságos, többpontos záródású bejárati ajtók (MABISZ minősítéssel).
•Energiahatékony műanyag ablakok, belső műanyag és külső alumínium párkányokkal.
•Vakolható redőnyszekrények, opcionálisan hőszigetelt alumínium redőnyökkel és szúnyoghálókkal
Rendezett, parkosított saját kert, ideális családi programokhoz, pihenéshez vagy konyhakert kialakításához.
•A kert rendezése a vételár részét képezi.
Garázs és parkolás:
•Minden lakáshoz saját integrált garázs tartozik, közvetlen lakótéri kapcsolattal.
A lakások a CSOK+ feltételeinek megfelelnek.
Amennyiben kérdése lenne, vagy szeretné megtekinteni személyesen is, kérem hívjon bizalommal, várom.
Teljeskörű pénzügyi és jogi háttér-szolgáltatással várom kedves ügyfeleimet.
A 2 lakásos lakóépület saját garázzsal és saját kert résszel rendelkezik.
Az építkezés jelen szakaszában igény szerint választható a nappali+3 hálószoba vagy a nappali+ 4 szoba kialakítás, illetve a burkolatok, a beltéri ajtók és a gépesített konyha választható.
Az ingatlan Gyál családi házas, csendes zöldövezetében, 574 m2-es telken helyezkedik el, 136 m2, 201 m2 használatú kerttel.
A ház H tarifás áramellátást kap, energetikai besorolása A+ lesz.
Tervezett átadás: 2025 december.
Az energetika besorolása A+.
Fűtés, hűtés, melegvíz:
Központi levegő–víz hőszivattyús rendszer szolgáltatja a fűtést, hűtést és a használati melegvizet.
Padlófűtés a teljes lakótérben, valamint fan-coil hűtés/fűtés a nappaliban és emeleti szobákban.
Okos vezérlés előkészítve:
Igény esetén helyiségenkénti termosztátos vezérlés és okosotthon rendszer is kialakítható.
Szerkezeti és műszaki adatok:
•Monolit vasbeton lemezalap – biztos, mozgásálló alapozás.
•Külső falak: 30 cm vastag Leier hőszigetelő tégla.
•Válaszfalak: Kiemelkedő hangszigetelésű Silka mészhomok tégla.
•Födémszerkezet: Hang- és tűzgátló tulajdonságokkal, statikai tervek szerint.
•Homlokzati hőszigetelés: 12 cm vastag EPS szigetelés.
•Tető monolit szerkezetű, szigetelés: 20 cm vastag üveggyapot, extra hőmegtartás érdekében.
Szigetelés: 20 cm vastag üveggyapot.
Nyílászárók és árnyékolástechnika:
•Biztonságos, többpontos záródású bejárati ajtók (MABISZ minősítéssel).
•Energiahatékony műanyag ablakok, belső műanyag és külső alumínium párkányokkal.
•Vakolható redőnyszekrények, opcionálisan hőszigetelt alumínium redőnyökkel és szúnyoghálókkal
Rendezett, parkosított saját kert, ideális családi programokhoz, pihenéshez vagy konyhakert kialakításához.
•A kert rendezése a vételár részét képezi.
Garázs és parkolás:
•Minden lakáshoz saját integrált garázs tartozik, közvetlen lakótéri kapcsolattal.
A lakások a CSOK+ feltételeinek megfelelnek.
Amennyiben kérdése lenne, vagy szeretné megtekinteni személyesen is, kérem hívjon bizalommal, várom.
Teljeskörű pénzügyi és jogi háttér-szolgáltatással várom kedves ügyfeleimet.
Regisztrációs szám
U0048712
Az ingatlan adatai
Értékesités
eladó
Jogi státusz
új
Jelleg
ház
Építési mód
tégla
Méret
136,8 m²
Bruttó méret
136,8 m²
Telek méret
201 m²
Terasz / erkély mérete
10 m²
Fűtés
values.realestate.futes.27
Belmagasság
270 cm
Lakáson belüli szintszám
1
Tájolás
Dél
Állapot
Kiváló
Homlokzat állapota
Kiváló
Építés éve
2025
Fürdőszobák száma
2
Garázs férőhely
1
Víz
Van
Villany
Van
Csatorna
Van
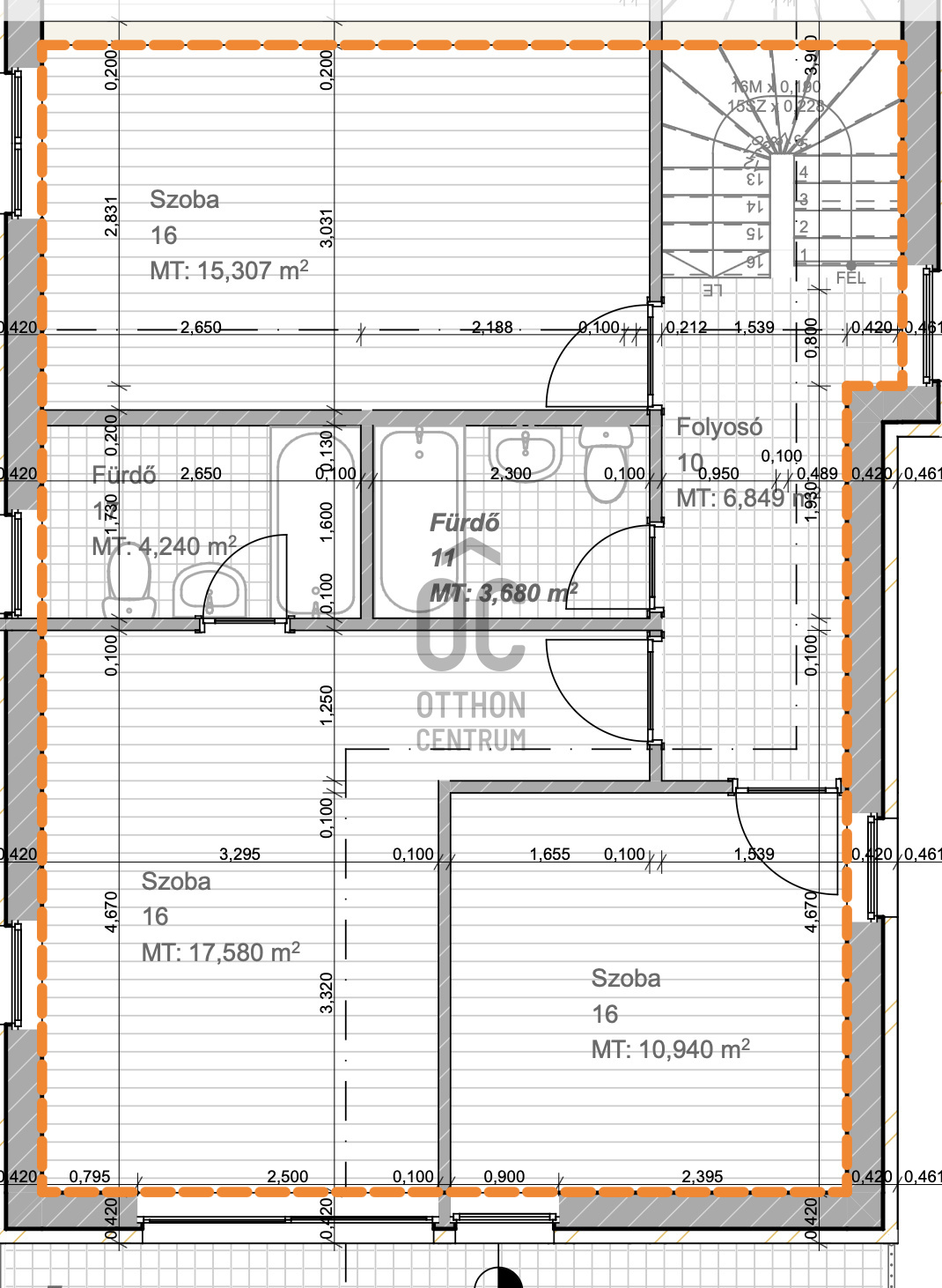
Helyiségek
előszoba
5.5 m²
fürdőszoba-wc
3.6 m²
szoba
10.9 m²
nappali-étkező
29.5 m²
konyha
3 m²
garázs
15.7 m²
közlekedő
6.9 m²
fürdőszoba-wc
3.6 m²
szoba
10.9 m²
gardrób
4.2 m²
szoba
15.3 m²
szoba
17.5 m²
erkély
10 m²
Helembai Dávid
Hitelszakértő