Elérhető Otthon Start hitellel
Eladó újépítésű ikerház,
U0048645
Szigetszentmárton
78 000 000 Ft
199 000 €
- 89,4m²
- 4 szoba







Modern Kétlakásos Újépítésű Otthon – Szigetszentmárton szívében
(Otthon Start hitellel is megvásárolható!)
Főbb jellemzők:
- Épület típusa: földszintes, kétlakásos, társasház
- Telek mérete: 763 m²
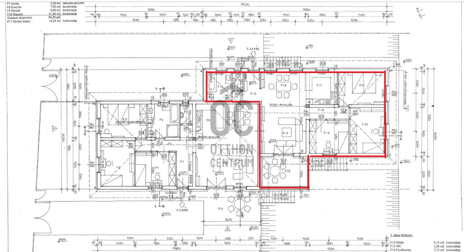
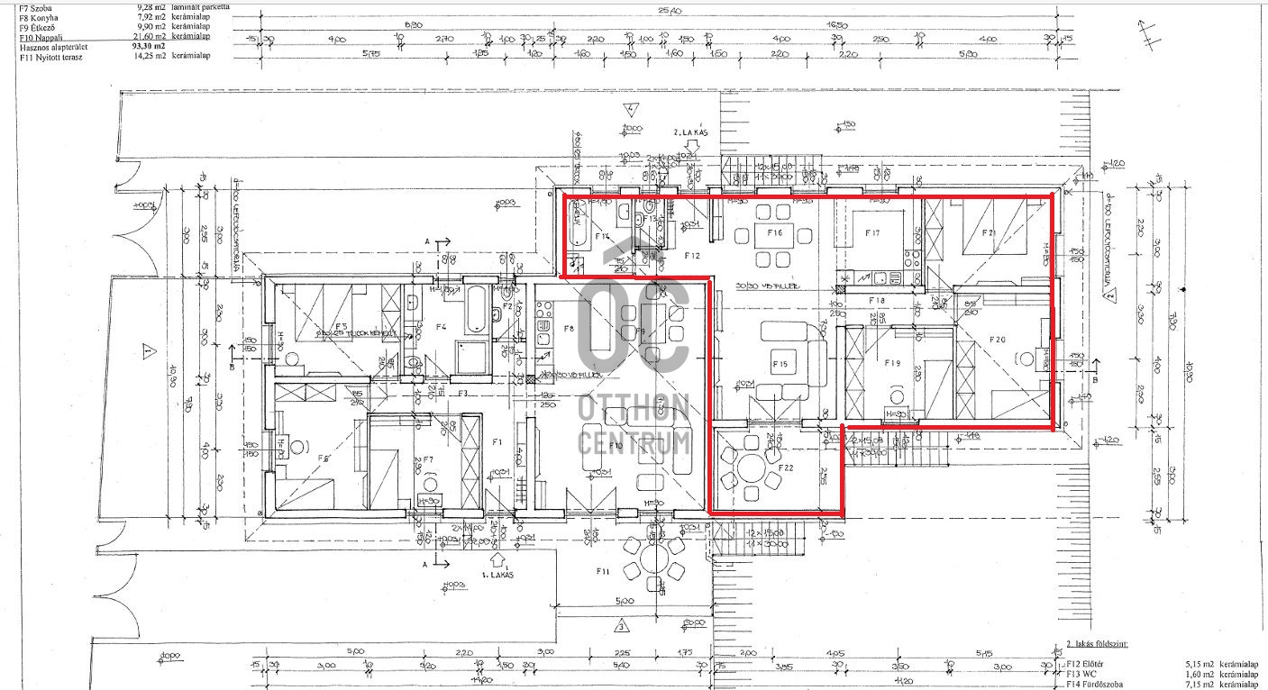
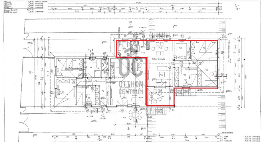
- Hasznos alapterület összesen: 89,45 m² + 10,58 m² nyitott terasz
- Helyiségek lakásonként: nappali–étkező–konyha egy légtérben, 3 hálószoba, fürdőszoba, külön WC, előtér, közlekedő
- Tető: 25° hajlásszögű kontyolt nyeregtető, sötétbarna betoncserép
- Nyílászárók: háromrétegű hőszigetelő üvegezés, fehér műanyag
- Fűtés és HMV: lakásonkénti kondenzációs gázkazán, központi melegvizes fűtés
- Villamos rendszer: modern, energiatakarékos világítás és dugaljrendszer, napelemrendszer kiépíthető
- Szerkezet: vasbeton sávalap, 30 cm-es tégla teherhordó falak, fagerendás födém, 15 cm EPS hőszigetelés
- Gépkocsi elhelyezés: telken belül biztosított
Elhelyezkedés:
Szigetszentmárton hangulatos, nyugodt kis település a Ráckevei-Duna partján, kiváló közlekedési kapcsolatokkal Budapest irányába is. A csendes utca, családias kertvárosi övezet, barátságos lakóközösséggel, zöld környezettel és fejlődő infrastruktúrával.
Ne hagyja ki ezt a kivételes lehetőséget! Vegye fel velünk a kapcsolatot még ma, és biztosítsa új otthonát – akár Otthon Start hitellel is!
- - -
Adatbázisunkban további több ezer ingatlanból választhat, hívjon bizalommal, hogy megtaláljuk a legmegfelelőbbet!
Teljes körű és díjmentes hitel-ügyintézéssel áll rendelkezésére szakértő kollégánk. Kérje személyre szabott ajánlatunkat!
Főbb jellemzők:
- Épület típusa: földszintes, kétlakásos, társasház
- Telek mérete: 763 m²
- Hasznos alapterület összesen: 89,45 m² + 10,58 m² nyitott terasz
- Helyiségek lakásonként: nappali–étkező–konyha egy légtérben, 3 hálószoba, fürdőszoba, külön WC, előtér, közlekedő
- Tető: 25° hajlásszögű kontyolt nyeregtető, sötétbarna betoncserép
- Nyílászárók: háromrétegű hőszigetelő üvegezés, fehér műanyag
- Fűtés és HMV: lakásonkénti kondenzációs gázkazán, központi melegvizes fűtés
- Villamos rendszer: modern, energiatakarékos világítás és dugaljrendszer, napelemrendszer kiépíthető
- Szerkezet: vasbeton sávalap, 30 cm-es tégla teherhordó falak, fagerendás födém, 15 cm EPS hőszigetelés
- Gépkocsi elhelyezés: telken belül biztosított
Elhelyezkedés:
Szigetszentmárton hangulatos, nyugodt kis település a Ráckevei-Duna partján, kiváló közlekedési kapcsolatokkal Budapest irányába is. A csendes utca, családias kertvárosi övezet, barátságos lakóközösséggel, zöld környezettel és fejlődő infrastruktúrával.
Ne hagyja ki ezt a kivételes lehetőséget! Vegye fel velünk a kapcsolatot még ma, és biztosítsa új otthonát – akár Otthon Start hitellel is!
- - -
Adatbázisunkban további több ezer ingatlanból választhat, hívjon bizalommal, hogy megtaláljuk a legmegfelelőbbet!
Teljes körű és díjmentes hitel-ügyintézéssel áll rendelkezésére szakértő kollégánk. Kérje személyre szabott ajánlatunkat!
Regisztrációs szám
U0048645
Az ingatlan adatai
Értékesités
eladó
Jogi státusz
új
Jelleg
ház
Építési mód
tégla
Méret
89,4 m²
Bruttó méret
100,3 m²
Telek méret
763 m²
Terasz / erkély mérete
10,5 m²
Fűtés
Gáz cirkó
Belmagasság
260 cm
Tájolás
Dél-kelet
Állapot
Kiváló
Homlokzat állapota
Kiváló
Környék
csendes, zöld
Építés éve
2025
Fürdőszobák száma
1
Víz
Van
Gáz
Van
Villany
Van
Csatorna
Van
Helyiségek
előszoba
5.15 m²
wc-kézmosó
1.6 m²
fürdőszoba
7.15 m²
nappali
18.2 m²
konyha
8.4 m²
ebédlő
11 m²
közlekedő
3.8 m²
hálószoba
10.15 m²
hálószoba
12 m²
hálószoba
12 m²

Joó Krisztina
Hitelszakértő