Elérhető Otthon Start hitellel
Eladó újépítésű lakás,
U0048489
Nyíregyháza, Belváros
56 020 000 Ft
143 000 €
- 51m²
- 2 szoba
- 1. emelet




Modern, kertkapcsolatos lakás eladó a belváros közelében – prémium kivitelezéssel és személyre szabható belső térrel!
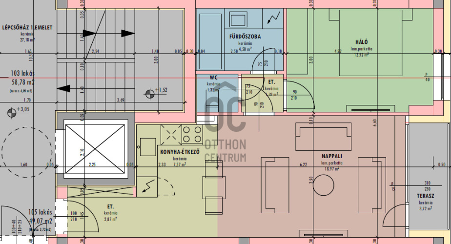
Eladásra kínálunk egy 49,07 m²-es lakást 3,72 m²-es terasszal, mely közvetlen kapcsolatot biztosít a zárt, privát udvari kerthez. Az ingatlan ideális választás mindazok számára, akik a modern technológiát, az energiahatékonyságot és a városközpont közelségét egyaránt fontosnak tartják.
A praktikus elrendezésű lakótérben tágas nappali-étkező-konyha, külön hálószoba, fürdőszoba, külön WC, valamint két előtér található. A leendő tulajdonos saját ízlése szerint választhatja ki a falszíneket, belső ajtókat, burkolatokat, szanitereket és világítótesteket, így a lakás teljes mértékben személyre szabható.
Főbb jellemzők:
- Modern társasház lifttel és teremgarázzsal
- A+ energetikai besorolás a fenntartható és alacsony rezsijű lakhatásért
- Korszerű hőszivattyús fűtés-hűtés rendszer, egész évben optimális hőmérséklettel
- Magas minőségű anyaghasználat és prémium kivitelezés
- Opcionálisan vásárolható teremgarázs beálló vagy tárolóhelyiséges parkoló
Ez a lakás kényelmes otthont kínál pároknak, egyedülállóknak vagy befektetőknek, hiszen elhelyezkedése és modern felszereltsége miatt könnyen kiadható.
Ne maradjon le erről a kivételes lehetőségről – válassza ki álmai otthonát még az építkezés befejezése előtt!
A praktikus elrendezésű lakótérben tágas nappali-étkező-konyha, külön hálószoba, fürdőszoba, külön WC, valamint két előtér található. A leendő tulajdonos saját ízlése szerint választhatja ki a falszíneket, belső ajtókat, burkolatokat, szanitereket és világítótesteket, így a lakás teljes mértékben személyre szabható.
Főbb jellemzők:
- Modern társasház lifttel és teremgarázzsal
- A+ energetikai besorolás a fenntartható és alacsony rezsijű lakhatásért
- Korszerű hőszivattyús fűtés-hűtés rendszer, egész évben optimális hőmérséklettel
- Magas minőségű anyaghasználat és prémium kivitelezés
- Opcionálisan vásárolható teremgarázs beálló vagy tárolóhelyiséges parkoló
Ez a lakás kényelmes otthont kínál pároknak, egyedülállóknak vagy befektetőknek, hiszen elhelyezkedése és modern felszereltsége miatt könnyen kiadható.
Ne maradjon le erről a kivételes lehetőségről – válassza ki álmai otthonát még az építkezés befejezése előtt!
Regisztrációs szám
U0048489
Az ingatlan adatai
Értékesités
eladó
Jogi státusz
új
Jelleg
lakás
Építési mód
tégla
Méret
51 m²
Bruttó méret
53 m²
Terasz / erkély mérete
3,7 m²
Fűtés
hőszivattyú
Belmagasság
270 cm
Lakáson belüli szintszám
1
Tájolás
Kelet
Lépcsőház típusa
zárt lépcsőház
Állapot
Kiváló
Homlokzat állapota
Kiváló
Lépcsőház állapota
Kiváló
Építés éve
2025
Fürdőszobák száma
1
Fekvés
utcai
Garázs
Külön vásárolható
Víz
Van
Villany
Van
Csatorna
Van
Lift
van
Helyiségek
nappali
18.97 m²
konyha-étkező
7.57 m²
hálószoba
12.52 m²
fürdőszoba
4.5 m²
wc
1.32 m²
előszoba
2.87 m²

Czellér András
Hitelszakértő