Elérhető Otthon Start hitellel
Eladó újépítésű sorház,
U0048214
Bocskaikert
74 900 000 Ft
193 000 €
- 76,9m²
- 4 szoba
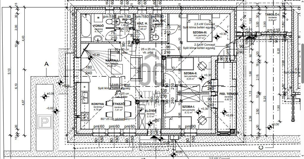
Egyszintes, újépítésű, nappali-amerikai konyha + 3 szobás sorház Bocskaikert központjában eladó!
Bocskaikert központjában új 3 lakásos sorház épül az alábbi paraméterekkel:
-Nappali-amerikai konyha + 3 külön nyíló szoba
-Földszintes kialakítás
-Porotherm 30 falazóblokkból + 15 cm hőszigetelés
-Gázcirkó fűtés, igény szerint padlófűtés
-Betoncserép fedés
-Fedett terasz, épített tároló
-Saját kertrész, gépkocsibeállási lehetőséggel
-Második gépkocsinak van hely az épület előtt
-Klíma, 3 rétegű, hőszigetelt műanyag nyílászárók, minimális rezsi
-Társasház alapító okirattal, önálló helyrajzi számra kerülő lakások, CSOK+ alkalmasak
-A lakóegységek csak a tárolóknál csatlakoznak, ebből fakadóan a lakások teljesen különálló épületek, külön tetőszerkezettel
-Az átgondolt tervezésnek köszönhetően dupla komfortos ingatlanok épülnek, a szülői hálóból külön zuhanyzó és WC nyílik a közös fürdőszoba mellett. A különálló 2. WC mellett még egy háztartási helyiség is helyet kapott.
-A tárolónak vasbeton alap készül, egybe lesz öntve az épülettel, igényesen kerül kivitelezésre
-A középső lakásban a szülői hálóban master bedroom kerül kialakításra, gardrób és fürdő épül, a konyhából pedig egy kamra és háztartási helyiség is nyílik.
Minden helyi célpont kényelmes sétatávolságra található, Debrecen központja még a reggeli csúcsban is 13 perc alatt elérhető.
Az építkezés elkezdődött, 2026. tavaszán költözhető, hitel, CSOK+ igényelhető.
Részletes műszaki tartalommal, megtekintési időponttal kapcsolatban várjuk hívását a hét minden napján!
-Nappali-amerikai konyha + 3 külön nyíló szoba
-Földszintes kialakítás
-Porotherm 30 falazóblokkból + 15 cm hőszigetelés
-Gázcirkó fűtés, igény szerint padlófűtés
-Betoncserép fedés
-Fedett terasz, épített tároló
-Saját kertrész, gépkocsibeállási lehetőséggel
-Második gépkocsinak van hely az épület előtt
-Klíma, 3 rétegű, hőszigetelt műanyag nyílászárók, minimális rezsi
-Társasház alapító okirattal, önálló helyrajzi számra kerülő lakások, CSOK+ alkalmasak
-A lakóegységek csak a tárolóknál csatlakoznak, ebből fakadóan a lakások teljesen különálló épületek, külön tetőszerkezettel
-Az átgondolt tervezésnek köszönhetően dupla komfortos ingatlanok épülnek, a szülői hálóból külön zuhanyzó és WC nyílik a közös fürdőszoba mellett. A különálló 2. WC mellett még egy háztartási helyiség is helyet kapott.
-A tárolónak vasbeton alap készül, egybe lesz öntve az épülettel, igényesen kerül kivitelezésre
-A középső lakásban a szülői hálóban master bedroom kerül kialakításra, gardrób és fürdő épül, a konyhából pedig egy kamra és háztartási helyiség is nyílik.
Minden helyi célpont kényelmes sétatávolságra található, Debrecen központja még a reggeli csúcsban is 13 perc alatt elérhető.
Az építkezés elkezdődött, 2026. tavaszán költözhető, hitel, CSOK+ igényelhető.
Részletes műszaki tartalommal, megtekintési időponttal kapcsolatban várjuk hívását a hét minden napján!
Regisztrációs szám
U0048214
Az ingatlan adatai
Értékesités
eladó
Jogi státusz
új
Jelleg
ház
Építési mód
tégla
Méret
76,9 m²
Bruttó méret
89,9 m²
Telek méret
70 m²
Terasz / erkély mérete
6,8 m²
Fűtés
Gáz cirkó
Belmagasság
270 cm
Tájolás
Nyugat
Állapot
Kiváló
Homlokzat állapota
Kiváló
Környék
jó közlekedés, zöld, központi
Építés éve
2026
Fürdőszobák száma
2
Víz
Van
Gáz
Van
Villany
Van
Csatorna
Van
Tároló
Önálló
Helyiségek
szoba
13.07 m²
szoba
8.05 m²
szoba
8.12 m²
nappali
21.98 m²
konyha
4.79 m²
ebédlő
7.41 m²
előszoba
3.13 m²
fürdőszoba-wc
2.4 m²
háztartási helyiség
1.96 m²
wc
1.26 m²
fürdőszoba
4.76 m²
terasz
6.82 m²
tároló
6.24 m²
Plébán László
Hitelszakértő