Elérhető Otthon Start hitellel
Eladó újépítésű ikerház,
U0048151
Budapest XXII. kerület, Nagytétény
120 000 000 Ft
306 000 €
- 85m²
- 4 szoba
















Nagytétényi új építésű ikerházat kínálunk megvételre, mely kiváló választás lehet mind fiataloknak, mind idősebbeknek.
Az ingatlan XXII. kerület nyugodt "zsákutcájában" egy és két szintes családi házak szomszédságában épül.
A tulajdonos eddig épített ingatlanaihoz hasonlóan itt is a letisztult stílus és a minőségi anyagok felhasználása a jellemző .
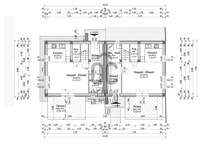
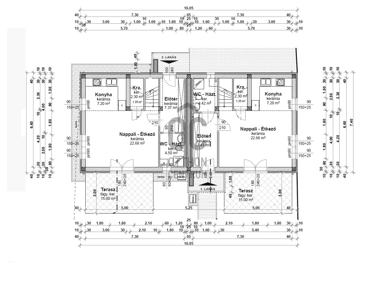
A netto 85 m2-es lakás belső terei az építtető több éves tapasztalatai és hosszú tervezői munka eredményeként kerültek kialakításra, figyelembe véve minden részletet. A lakásban a nappali-étkező-konyha kényelmesen elfér, mely egy nagy 15 m2-es terasszal és a saját kerttel kapcsolódik össze. A földszinten egy 4,5nm-es fürdőszoba és egy kamra is helyet kapott, így biztosítva a kényelmessé életteret az egész család számára. A három hálószoba és a nagy fürdőszoba az emeleti szinten került elhelyezésre.
Az épület kiemelkedő hőszigetelő képességgel rendelkezik, Leier 30 N+F kerámia téglából és 10cm homlokzati szigeteléssel épül.
Fűtése és meleg víz ellátása kondenzációs kazánnal történik, a fűtés hőleadása padlófűtésen keresztűl történik.
Az ingatlan hűtéséről 4db (nappali és 3szoba) légkondicionáló gondoskodik.
A kivitelező elképzelése szerint a szobákban laminált parketta (4.500.-Ft/m2), míg a többi helyiségben kerámia burkolatok (6.000.-Ft/m2) készülnek. A lakás tulajdonosa az egyedi mérőóráknak köszönhetően pontosan annyit fizet, amennyit valóban használ.
A lakások saját kerttel és egy nyitott gépkocsi beállóval rendelkeznek.
Az ingatlan környezete is ideális, hiszen a XXII. kerület fejlődő területén található, a tömegközlekedési eszközök mindössze 5 perc sétára vannak.
Ha Ön is szeretne egy modern otthont, amely minden igényt kielégít, akkor ne habozzon, hívjon most!
Az építkezés elkezdődött, a várható átadás időpontja: 2025 december 31.
Az ingatlan XXII. kerület nyugodt "zsákutcájában" egy és két szintes családi házak szomszédságában épül.
A tulajdonos eddig épített ingatlanaihoz hasonlóan itt is a letisztult stílus és a minőségi anyagok felhasználása a jellemző .
A netto 85 m2-es lakás belső terei az építtető több éves tapasztalatai és hosszú tervezői munka eredményeként kerültek kialakításra, figyelembe véve minden részletet. A lakásban a nappali-étkező-konyha kényelmesen elfér, mely egy nagy 15 m2-es terasszal és a saját kerttel kapcsolódik össze. A földszinten egy 4,5nm-es fürdőszoba és egy kamra is helyet kapott, így biztosítva a kényelmessé életteret az egész család számára. A három hálószoba és a nagy fürdőszoba az emeleti szinten került elhelyezésre.
Az épület kiemelkedő hőszigetelő képességgel rendelkezik, Leier 30 N+F kerámia téglából és 10cm homlokzati szigeteléssel épül.
Fűtése és meleg víz ellátása kondenzációs kazánnal történik, a fűtés hőleadása padlófűtésen keresztűl történik.
Az ingatlan hűtéséről 4db (nappali és 3szoba) légkondicionáló gondoskodik.
A kivitelező elképzelése szerint a szobákban laminált parketta (4.500.-Ft/m2), míg a többi helyiségben kerámia burkolatok (6.000.-Ft/m2) készülnek. A lakás tulajdonosa az egyedi mérőóráknak köszönhetően pontosan annyit fizet, amennyit valóban használ.
A lakások saját kerttel és egy nyitott gépkocsi beállóval rendelkeznek.
Az ingatlan környezete is ideális, hiszen a XXII. kerület fejlődő területén található, a tömegközlekedési eszközök mindössze 5 perc sétára vannak.
Ha Ön is szeretne egy modern otthont, amely minden igényt kielégít, akkor ne habozzon, hívjon most!
Az építkezés elkezdődött, a várható átadás időpontja: 2025 december 31.
Regisztrációs szám
U0048151
Az ingatlan adatai
Értékesités
eladó
Jogi státusz
új
Jelleg
ház
Építési mód
tégla
Méret
85 m²
Bruttó méret
118,8 m²
Telek méret
296 m²
Terasz / erkély mérete
15 m²
Fűtés
Gáz cirkó
Belmagasság
265 cm
Lakáson belüli szintszám
2
Tájolás
Dél
Állapot
Kiváló
Homlokzat állapota
Kiváló
Környék
csendes, jó közlekedés, zöld
Építés éve
2025
Fürdőszobák száma
2
Víz
Van
Gáz
Van
Villany
Van
Csatorna
Van
Helyiségek
előszoba
7.4 m²
fürdőszoba-wc
4.5 m²
nappali-étkező
22.7 m²
konyha
7.2 m²
kamra
7.4 m²
terasz
15 m²
lépcsőház
4.4 m²
szoba
10.4 m²
szoba
11.1 m²
szoba
10.5 m²
fürdőszoba-wc
6.3 m²

Pongó Miklós
Hitelszakértő