299 000 000 Ft
786 000 €
- 224m²
- 6 szoba
Peace of Kertváros, modern home – A family house under construction in the green heart of Sashalom!
Garden city tranquility, modern home - Family house under construction in the green heart of Sashalom!
Are you looking for the perfect family home in one of the friendliest areas of Budapest?
You just found it! The XVI. In a popular part of the district, on the border of Sashalom and Mátyásföld, we offer an independent family house under construction in a quiet, green street.
???? Ideal choice for families:
Quiet garden city environment, yet all important institutions and services are within reach:
✔️ Kindergarten, school, shops nearby
✔️ Excellent public transport
✔️ Family-friendly, safe neighborhood
???? The main features of the property:
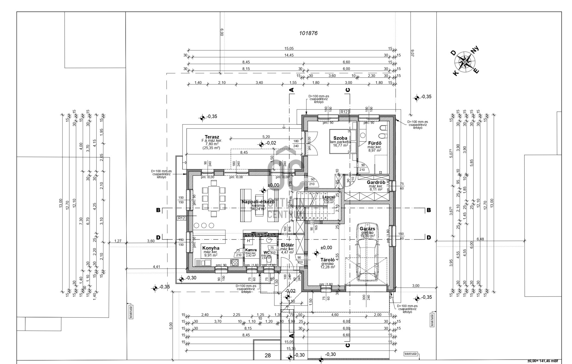
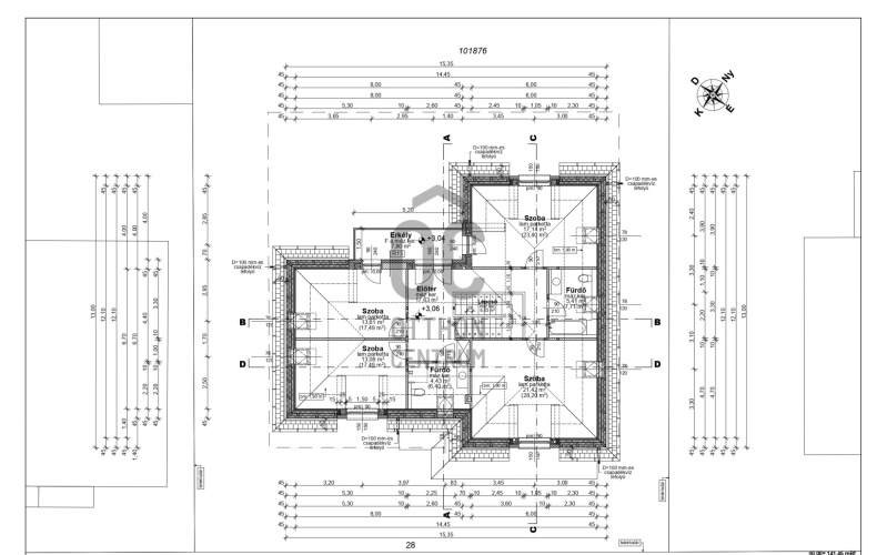
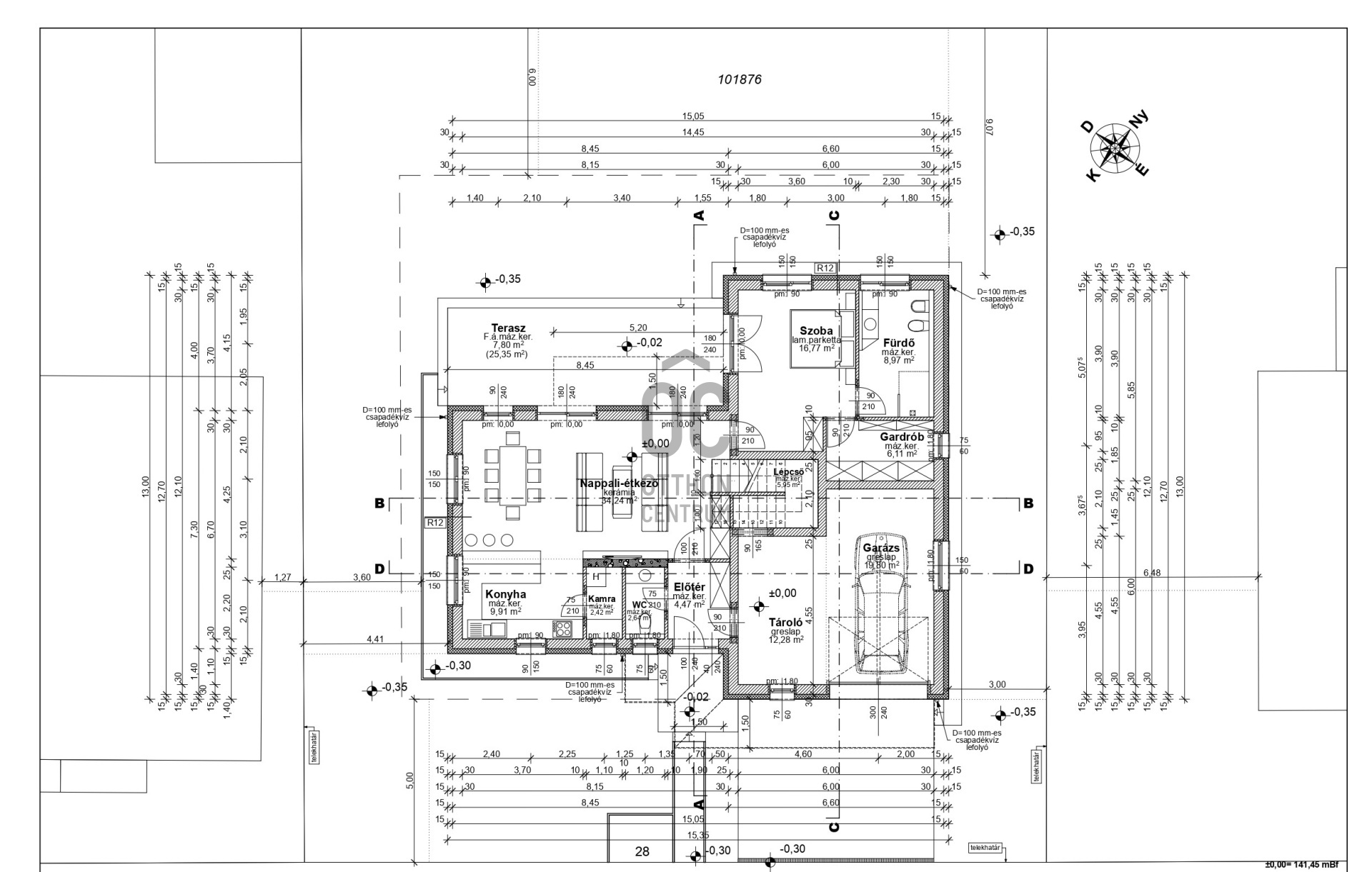
✔️224 m² living space, with a modern, well-thought-out layout
✔️25 m² terrace and balcony, the perfect place for morning coffee or evening relaxation
✔️617 m² independent plot, of which 370 m² green area - private garden that is only yours
✔️Two-level design, separate parents' and children's areas
????️ Spatial design - a home where everyone feels comfortable:
Ground floor:
✔️Spacious living room with American kitchen
✔️Separate room (working or guest room)
✔️Wardrobe, bathroom and guest toilet
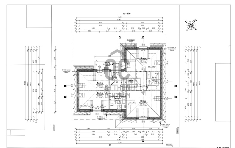
Floor:
✔️4 bedrooms (two larger, one smaller)
✔️2 spacious bathroom
⚙️ Modern, energy-saving technical content:
✔️Heat pump heating
✔️Air conditioning
✔️Heated garage for two cars
✨ Now you can have a say in the details!
The plans are currently at the concept level, so it is possible to make modifications according to individual needs - so your new home can really be shaped according to your ideas.
???? Feel free to contact us for more information or a personal consultation!
Search with confidence for your real estate matters!
Are you looking for the perfect family home in one of the friendliest areas of Budapest?
You just found it! The XVI. In a popular part of the district, on the border of Sashalom and Mátyásföld, we offer an independent family house under construction in a quiet, green street.
???? Ideal choice for families:
Quiet garden city environment, yet all important institutions and services are within reach:
✔️ Kindergarten, school, shops nearby
✔️ Excellent public transport
✔️ Family-friendly, safe neighborhood
???? The main features of the property:
✔️224 m² living space, with a modern, well-thought-out layout
✔️25 m² terrace and balcony, the perfect place for morning coffee or evening relaxation
✔️617 m² independent plot, of which 370 m² green area - private garden that is only yours
✔️Two-level design, separate parents' and children's areas
????️ Spatial design - a home where everyone feels comfortable:
Ground floor:
✔️Spacious living room with American kitchen
✔️Separate room (working or guest room)
✔️Wardrobe, bathroom and guest toilet
Floor:
✔️4 bedrooms (two larger, one smaller)
✔️2 spacious bathroom
⚙️ Modern, energy-saving technical content:
✔️Heat pump heating
✔️Air conditioning
✔️Heated garage for two cars
✨ Now you can have a say in the details!
The plans are currently at the concept level, so it is possible to make modifications according to individual needs - so your new home can really be shaped according to your ideas.
???? Feel free to contact us for more information or a personal consultation!
Search with confidence for your real estate matters!
Regisztrációs szám
U0047906
Az ingatlan adatai
Értékesités
eladó
Jogi státusz
új
Jelleg
ház
Építési mód
tégla
Méret
224 m²
Bruttó méret
236 m²
Telek méret
617 m²
Terasz / erkély mérete
25 m²
Fűtés
hőszivattyú
Belmagasság
265 cm
Lakáson belüli szintszám
2
Tájolás
Dél
Állapot
Kiváló
Homlokzat állapota
Kiváló
Építés éve
2025
Fürdőszobák száma
3
Garázs
Benne van az árban
Víz
Van
Villany
Van
Csatorna
Van
Tároló
Önálló
Helyiségek
bemutatóterem
1 m²
bemutatóterem
1 m²
bemutatóterem
1 m²
bemutatóterem
1 m²
bemutatóterem
1 m²
bemutatóterem
1 m²
bemutatóterem
1 m²
bemutatóterem
1 m²
félszoba
1 m²
Pfeffer Kinga
Hitelszakértő