191 530 000 Ft
498 000 €
- 82m²
- 3 szoba
- 3. emelet
Örökpanorámás, új építésű, prémium mínőségű 3 szobás lakás, hatalmas terasszal Hévíztől csupán néhány percre, ahol természet és nyugalom várja!
Fedezze fel ezt a kivételes lehetőséget, amely egy új, modern lakás formájában kínálja Önnek az otthon melegét Hévíztől és a Balaton partjától pár percre, a festői Nemesbükön, a természetközeli fekvésű Hill Gate Apartmanház részeként.
BEFEKTETŐK FIGYELEM! AZ INGATLAN BRUTTÓ HIRDETÉSI ÁRA 27% ÁFÁT TARTALMAZ, AMELY CÉGES VÁSÁRLÁS ESETÉN VISSZAIGÉNYELHETŐ.
A exkluzív 8 lakásból álló, prémium minőségben megépülő ingatlan a legújabb építési technológiáknak köszönhetően nemcsak esztétikai élményt nyújt, hanem a fenntarthatóság és energiahatékonyság szempontjából is kiemelkedő.
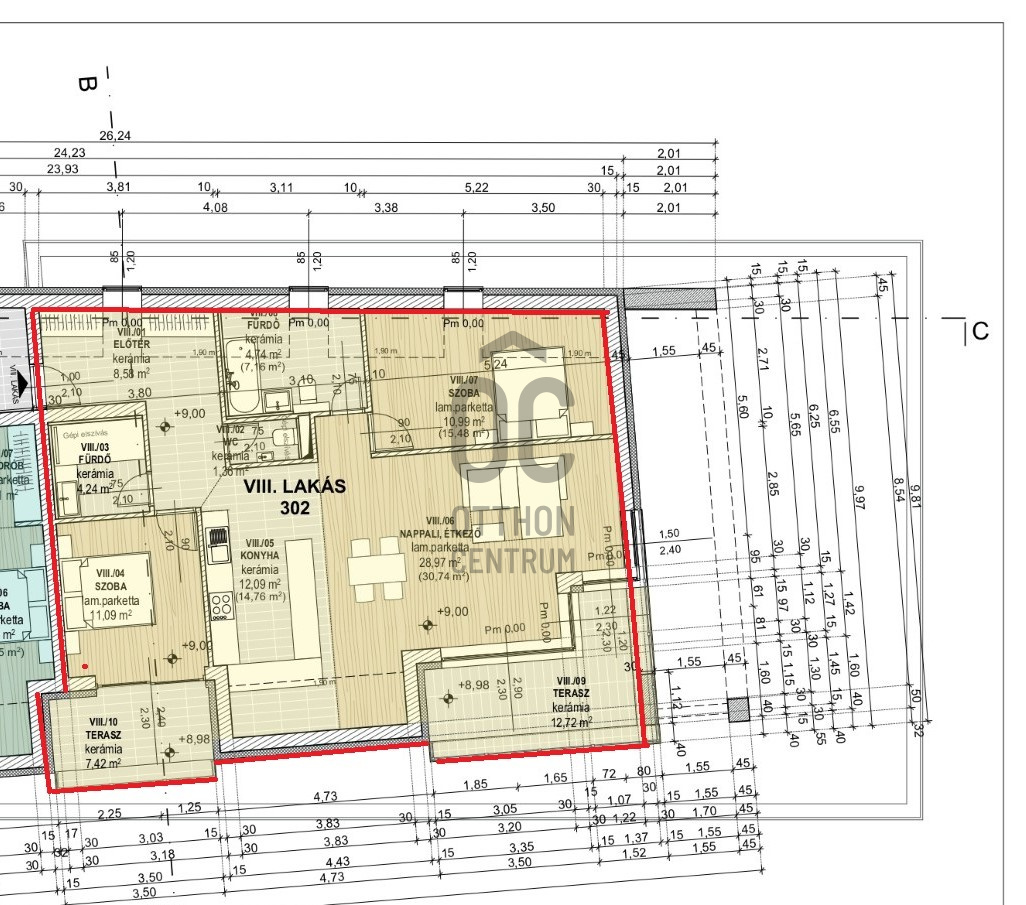
Az 82 nm lakásban három tágas szoba található, amelyek világosak és barátságosak, ideálisak családi életre vagy akár befektetési céllal történő hasznosításra. A lakás két fürdőszobával rendelkezik, így a reggeli rohanások során is kényelmesen elférnek a családtagok. A 20 négyzetméteres teraszról gyönyörű panoráma nyílik a környező tájra, amely tökéletes helyszínt biztosít a pihenéshez, feltöltődéshez.
AZ INGATLAN FŐBB JELLEMZŐI:
- egész évben kiváló megközelítés
- kiváló lokáció ( Hévíz, Keszthely, Balaton Airport, Zala Sprigs Golf Resort Zalacsány a közelben)
- természetközeli fekvés (belterület)
- balatoni örök panoráma és csodás kilátás a Zalai-dombságra illetve a Keszthelyi-hegységre
- 8 lakásból álló, 4 szintes, új építésű tégla épület tetőkerttel, lifttel, fedett parkolóval
- tájképi társasházi kert, tervezett medencével 5.563 nm nagyságú
- várható átadás 2025 december
- egyedi építészeti koncepció, kiválóan élhető, funkcionális üzleti célú lakásokkal
- a földszinten közös wellness részleg kerül kialakításra finn szaunával és jakuzzival és tároló áll rendelkezésre
- itt kap helyet a fedett gépkocsibeálló is
- 82 nm hasznos alapterület
- kettő DK-i tájolású panorámás terasz ( 7,42 nm és 12, 72 nm nagyságban)
KIVÁLÓ BELSŐ ELOSZTÁS, TÁGAS TEREKKEL, PANORÁMÁS KILÁTÁSSAL:
- előtér
- 2 külön nyíló hálószoba
- tágas, nappali/étkező ( 29nm)
- konyha
- 2 fürdőszoba
- külön vendég WC
- 2 külön terasz (20nm)
- a földszinten a lakáshoz tartozik egy fedett gépkocsibeálló amely a vételár részét képezi
MŰSZAKI LEÍRÁS:
- alumínium nyílászárók háromrétegű üveggel
- a leendő tulajdonosok jelenlegi építési fázisban maguk választhatják ki a hideg/meleg burkolatokat bruttó 10.000 Ft/nm árig
- külön mérőórák
- a beépítésre kerülő anyagok nagy múltú gyártók termékeiből készülnek, ez garantálja a magas minőséget
- fűtés norvég NOBU elektromos fűtőpanellel, a fürdőszobában és a nappaliban elektromos padlófűtéssel
- a meleg vizet Ariston villanybojler biztosítja
- klíma, riasztó és napelem előkészítés (!)
- kedvező H tarifa kiépítése
- LEGRAND típusú elektromos szerelvények
- monolit vasbeton födém
- PTH 30 NF, BAUMIT habarcsba rakva, PTH 10 válaszfaltégla
- 30-as SILKA hanggátló tégla a lakások között
- BAUMIT gépi vakolat a belső felületeken, DULUX fehér festés RIGIPS simítás után
- a külső homlokzaton grafit hőszigetelés
Nemesbük egy 700 lakosú rendezett település a világhírű Hévízi-tó szomszédságában. Nemcsak csendes és festői környezetet kínál, hanem a közlekedési lehetőségek terén is kedvező adottságokkal bír. A település jól megközelíthető autóval, hiszen az M7-es autópálya és a a 76-os főút közelsége lehetővé teszi a gyors eljutást Zalaegerszegre, Keszthelyre, Hévízre, Budapest kb . 2 órás autóútra található. A lakás ideális választás lehet mindazok számára, akik a városi élet előnyeit és a természet közelségét is szeretnék élvezni. A környék gazdag kulturális és szabadidős lehetőségekben, hiszen a közeli termálfürdők (Hévíz termál tó, Zalakaros, Kehidakustány) és a természetvédelmi területek számos kikapcsolódási lehetőséget kínálnak. A helyi közösség barátságos és összetartó, így Ön is könnyen beilleszkedhet a környék életébe.
Ez az ingatlan nemcsak egy lakás, hanem egy lehetőség arra, hogy egy olyan különleges, természetközeli otthonra leljen, amely minden igényét kielégíti.
Ha kérdései vannak az ingatlannal vagy a vásárlási folyamattal kapcsolatban, keressen bizalommal!
Az adatok tájékoztató jellegűek.
BEFEKTETŐK FIGYELEM! AZ INGATLAN BRUTTÓ HIRDETÉSI ÁRA 27% ÁFÁT TARTALMAZ, AMELY CÉGES VÁSÁRLÁS ESETÉN VISSZAIGÉNYELHETŐ.
A exkluzív 8 lakásból álló, prémium minőségben megépülő ingatlan a legújabb építési technológiáknak köszönhetően nemcsak esztétikai élményt nyújt, hanem a fenntarthatóság és energiahatékonyság szempontjából is kiemelkedő.
Az 82 nm lakásban három tágas szoba található, amelyek világosak és barátságosak, ideálisak családi életre vagy akár befektetési céllal történő hasznosításra. A lakás két fürdőszobával rendelkezik, így a reggeli rohanások során is kényelmesen elférnek a családtagok. A 20 négyzetméteres teraszról gyönyörű panoráma nyílik a környező tájra, amely tökéletes helyszínt biztosít a pihenéshez, feltöltődéshez.
AZ INGATLAN FŐBB JELLEMZŐI:
- egész évben kiváló megközelítés
- kiváló lokáció ( Hévíz, Keszthely, Balaton Airport, Zala Sprigs Golf Resort Zalacsány a közelben)
- természetközeli fekvés (belterület)
- balatoni örök panoráma és csodás kilátás a Zalai-dombságra illetve a Keszthelyi-hegységre
- 8 lakásból álló, 4 szintes, új építésű tégla épület tetőkerttel, lifttel, fedett parkolóval
- tájképi társasházi kert, tervezett medencével 5.563 nm nagyságú
- várható átadás 2025 december
- egyedi építészeti koncepció, kiválóan élhető, funkcionális üzleti célú lakásokkal
- a földszinten közös wellness részleg kerül kialakításra finn szaunával és jakuzzival és tároló áll rendelkezésre
- itt kap helyet a fedett gépkocsibeálló is
- 82 nm hasznos alapterület
- kettő DK-i tájolású panorámás terasz ( 7,42 nm és 12, 72 nm nagyságban)
KIVÁLÓ BELSŐ ELOSZTÁS, TÁGAS TEREKKEL, PANORÁMÁS KILÁTÁSSAL:
- előtér
- 2 külön nyíló hálószoba
- tágas, nappali/étkező ( 29nm)
- konyha
- 2 fürdőszoba
- külön vendég WC
- 2 külön terasz (20nm)
- a földszinten a lakáshoz tartozik egy fedett gépkocsibeálló amely a vételár részét képezi
MŰSZAKI LEÍRÁS:
- alumínium nyílászárók háromrétegű üveggel
- a leendő tulajdonosok jelenlegi építési fázisban maguk választhatják ki a hideg/meleg burkolatokat bruttó 10.000 Ft/nm árig
- külön mérőórák
- a beépítésre kerülő anyagok nagy múltú gyártók termékeiből készülnek, ez garantálja a magas minőséget
- fűtés norvég NOBU elektromos fűtőpanellel, a fürdőszobában és a nappaliban elektromos padlófűtéssel
- a meleg vizet Ariston villanybojler biztosítja
- klíma, riasztó és napelem előkészítés (!)
- kedvező H tarifa kiépítése
- LEGRAND típusú elektromos szerelvények
- monolit vasbeton födém
- PTH 30 NF, BAUMIT habarcsba rakva, PTH 10 válaszfaltégla
- 30-as SILKA hanggátló tégla a lakások között
- BAUMIT gépi vakolat a belső felületeken, DULUX fehér festés RIGIPS simítás után
- a külső homlokzaton grafit hőszigetelés
Nemesbük egy 700 lakosú rendezett település a világhírű Hévízi-tó szomszédságában. Nemcsak csendes és festői környezetet kínál, hanem a közlekedési lehetőségek terén is kedvező adottságokkal bír. A település jól megközelíthető autóval, hiszen az M7-es autópálya és a a 76-os főút közelsége lehetővé teszi a gyors eljutást Zalaegerszegre, Keszthelyre, Hévízre, Budapest kb . 2 órás autóútra található. A lakás ideális választás lehet mindazok számára, akik a városi élet előnyeit és a természet közelségét is szeretnék élvezni. A környék gazdag kulturális és szabadidős lehetőségekben, hiszen a közeli termálfürdők (Hévíz termál tó, Zalakaros, Kehidakustány) és a természetvédelmi területek számos kikapcsolódási lehetőséget kínálnak. A helyi közösség barátságos és összetartó, így Ön is könnyen beilleszkedhet a környék életébe.
Ez az ingatlan nemcsak egy lakás, hanem egy lehetőség arra, hogy egy olyan különleges, természetközeli otthonra leljen, amely minden igényét kielégíti.
Ha kérdései vannak az ingatlannal vagy a vásárlási folyamattal kapcsolatban, keressen bizalommal!
Az adatok tájékoztató jellegűek.
Regisztrációs szám
U0047733
Az ingatlan adatai
Értékesités
eladó
Jogi státusz
új
Jelleg
lakás
Építési mód
tégla
Méret
82 m²
Bruttó méret
102 m²
Terasz / erkély mérete
20 m²
Belmagasság
265 cm
Lakáson belüli szintszám
2
Tájolás
Dél-kelet
Panoráma
folyóra tóra néző panoráma
Lépcsőház típusa
zárt lépcsőház
Állapot
Kiváló
Homlokzat állapota
Kiváló
Lépcsőház állapota
Kiváló
Környék
csendes, jó közlekedés, zöld
Építés éve
2025
Fürdőszobák száma
2
Fekvés
kertre néző
Társaház kert
igen
Fedett beállók száma
1
Víz
Van
Gáz
Utcán
Villany
Van
Csatorna
Van
Lift
van
Tároló
Közös
Vízpart távolsága
több mint 500 méterre
Helyiségek
közlekedő
7.93 m²
wc-kézmosó
1.75 m²
fürdőszoba-wc
4.03 m²
szoba
11.09 m²
konyha
12.18 m²
nappali-étkező
29.09 m²
szoba
10.8 m²
fürdőszoba-wc
4.73 m²
terasz
12.72 m²
terasz
7.47 m²
kocsibeálló
1 m²
Edve János
Hitelszakértő