300 000 000 Ft
779 000 €
- 145m²
- 4 szoba
ÚJ IKERHÁZAK HARSÁNYLEJTŐN
A III. kerületi Harsánylejtő lakóparkban újabb 4 , panorámás ikerház közül lehet választani - az első vásárlónak kedvezményes áron!
LOKÁCIÓ
Harsánylejtő, Testvérhegy É-K-i lejtője néhány éve kezdett beépülni. Ennek következtében itt csupa új építésű, modern épületek találhatóak, nagy kertekkel, frissen aszfaltozott utcákkal,- egyszóval igen kúltúrált és kellemes a környezet.
A 4 ikerház a lakópark legfelső részén van, ahonnan elvehetetlen kilátás nyílik a környező és távolabbi hegyekre.
Az utca fölött már a Hármashatár-hegy természetvédelmi területe, így a közeli erdő biztosítja a tiszta levegőt, kellemes illatot, madárcsicsergést és megannyi túrázási lehetőséget.
AZ INFRASTRUKTÚRA is egyre jobban kiépül, - a lakópark központjából már tömegközlekedéssel is könnyen bejuthatunk a városközpontba.
A közeli Bécsi úton pedig valamennyi bevásárlási lehetőség megtalálható.
AZ ÉPÜLET jellegében, stílusában illeszkedik a környezethez, - modern , letisztult formavilág jellemzi.
A két ikerfél csupán a garázsnál kapcsolódik egymáshoz, tehát nincsenek közös falak, és valamennyi lakóegység egymástól független utcai bejárattal és szeparált kerttel rendelkezik.
A BELSŐ KIALAKÍTÁSNÁL a funkcionalitás a vezérelv:
- elkülönült nappali szint - háló szint
- tágas terek
- a hatalmas ablakokon és üvegfelületeken keresztül árad be a fény és minden irányban a panorámában gyönyörködhetünk.
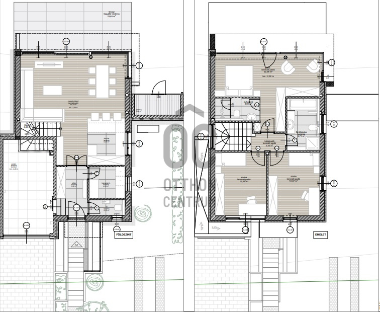
A 2. LAKÓEGYSÉG nettó 145 nm, 23,5 nm terasza van és mintegy mintegy 330 nm kert öleli körbe.
Sajátossága, hogy az emeleten lévő szülőháló mintegy 22 nm, saját fürdőszoba és gardrób kapcsolódik hozzá, és az egybefüggő üvegfelületek miatt akár az ágyból gyönyörködhetünk a kilátásban.
Az alsó szinten, a háztartási helyiség kárára egy kisebb dolgozószoba (vagy kicsit a konyhából elvéve akár nagyobb hálószoba ) is kialakítható.
Kapcsolódik továbbá az épülethez egy kisebb nyúlvány (mintegy 4 nm), ahol akár egy panorámás szauna is elhelyezhető, vagy tárolásra is tökéletes.
A feltüntetett ÁR a KULCSRAKÉSZ állapotra vonatkozik, mely a következőket tartalmazza a teljesség igénye nélkül:
- Hőszivattyús hűtés-fűtés rendszer
- Központi szellőztető rendszer, prémium (Zehnder) típus
- Óriási üvegfelületek, nappaliban emelő-toló kivitelben
- Motoros zsalúzia árnyékoló minden nyílászárón
- Prémium beltéri ajtók
- Magas minőségű beltéri és kültéri hidegburkolatok
- Vinyl padló burkolat
- Hansgrohe csaptelepek
- Duravit szaniterek
- Riasztó rendszer
- Üveg elektromos kapcsolók és dugaljak
Birtokbaadás várható ideje: 2025. 2. negyedév.
REFERENCIA: a lakóparkban az építtető több referencia munkája megtekinthető
LOKÁCIÓ
Harsánylejtő, Testvérhegy É-K-i lejtője néhány éve kezdett beépülni. Ennek következtében itt csupa új építésű, modern épületek találhatóak, nagy kertekkel, frissen aszfaltozott utcákkal,- egyszóval igen kúltúrált és kellemes a környezet.
A 4 ikerház a lakópark legfelső részén van, ahonnan elvehetetlen kilátás nyílik a környező és távolabbi hegyekre.
Az utca fölött már a Hármashatár-hegy természetvédelmi területe, így a közeli erdő biztosítja a tiszta levegőt, kellemes illatot, madárcsicsergést és megannyi túrázási lehetőséget.
AZ INFRASTRUKTÚRA is egyre jobban kiépül, - a lakópark központjából már tömegközlekedéssel is könnyen bejuthatunk a városközpontba.
A közeli Bécsi úton pedig valamennyi bevásárlási lehetőség megtalálható.
AZ ÉPÜLET jellegében, stílusában illeszkedik a környezethez, - modern , letisztult formavilág jellemzi.
A két ikerfél csupán a garázsnál kapcsolódik egymáshoz, tehát nincsenek közös falak, és valamennyi lakóegység egymástól független utcai bejárattal és szeparált kerttel rendelkezik.
A BELSŐ KIALAKÍTÁSNÁL a funkcionalitás a vezérelv:
- elkülönült nappali szint - háló szint
- tágas terek
- a hatalmas ablakokon és üvegfelületeken keresztül árad be a fény és minden irányban a panorámában gyönyörködhetünk.
A 2. LAKÓEGYSÉG nettó 145 nm, 23,5 nm terasza van és mintegy mintegy 330 nm kert öleli körbe.
Sajátossága, hogy az emeleten lévő szülőháló mintegy 22 nm, saját fürdőszoba és gardrób kapcsolódik hozzá, és az egybefüggő üvegfelületek miatt akár az ágyból gyönyörködhetünk a kilátásban.
Az alsó szinten, a háztartási helyiség kárára egy kisebb dolgozószoba (vagy kicsit a konyhából elvéve akár nagyobb hálószoba ) is kialakítható.
Kapcsolódik továbbá az épülethez egy kisebb nyúlvány (mintegy 4 nm), ahol akár egy panorámás szauna is elhelyezhető, vagy tárolásra is tökéletes.
A feltüntetett ÁR a KULCSRAKÉSZ állapotra vonatkozik, mely a következőket tartalmazza a teljesség igénye nélkül:
- Hőszivattyús hűtés-fűtés rendszer
- Központi szellőztető rendszer, prémium (Zehnder) típus
- Óriási üvegfelületek, nappaliban emelő-toló kivitelben
- Motoros zsalúzia árnyékoló minden nyílászárón
- Prémium beltéri ajtók
- Magas minőségű beltéri és kültéri hidegburkolatok
- Vinyl padló burkolat
- Hansgrohe csaptelepek
- Duravit szaniterek
- Riasztó rendszer
- Üveg elektromos kapcsolók és dugaljak
Birtokbaadás várható ideje: 2025. 2. negyedév.
REFERENCIA: a lakóparkban az építtető több referencia munkája megtekinthető
Regisztrációs szám
U0044795
Az ingatlan adatai
Értékesités
eladó
Jogi státusz
új
Jelleg
ház
Építési mód
tégla
Méret
145 m²
Bruttó méret
157 m²
Telek méret
430 m²
Terasz / erkély mérete
23,5 m²
Fűtés
hőszivattyú
Belmagasság
260 cm
Lakáson belüli szintszám
2
Tájolás
Észak-kelet
Állapot
Kiváló
Homlokzat állapota
Kiváló
Környék
csendes, zöld
Építés éve
2023
Fürdőszobák száma
2
Garázs
Benne van az árban
Garázs férőhely
1
Víz
Van
Villany
Van
Csatorna
Van
Tároló
Önálló
Helyiségek
nappali-étkező
34.72 m²
konyha
6.48 m²
háztartási helyiség
4.6 m²
wc-kézmosó
2.15 m²
előszoba
6.2 m²
garázs
18.18 m²
terasz
23.6 m²
hálószoba
22.4 m²
hálószoba
13.47 m²
hálószoba
13.35 m²
fürdőszoba-wc
6.71 m²
fürdőszoba-wc
3.91 m²
közlekedő
2.4 m²
Andrejcsik Nikoletta
Hitelszakértő